兵庫県 上島プロパン株式会社 詳細

プライバシーとつながりを両立した二世帯リノベ

ご両親との同居に伴い、プライバシーと交流の両立を目指した二世帯リノベ。解体で現れた太い桁を活かし、家族が集まりやすいLDKを計画。1階は親世帯個室と将来の介護に備えた準備、2階は若年世帯の生活空間を整え、お互いの暮らしを尊重しながら快適に住まえる住まいとした。

こだわりポイント
BeforeもしくはAfter図面あり / こだわりキッチン / こだわりトイレ / インテリア / インフィルリフォーム / プロとしてのアイデア / ライフスタイルの変化提案 / 新しい生活様式提案 / 補助金等のリフォーム制度利用
リフォーム部分
リビングダイニング / 寝室・個室 / キッチン / 洗面室 / トイレ

リビングダイニングキッチン

2階の和室と書斎の壁を取り除きリビングダイニングキッチンとして1間にしました。当初は天井を貼る予定でしたが、直径50㎝もある大きな桁が出てきましたので急遽設計変更し、家の歴史を象徴するよう活かすデザインにしました。

システムキッチン

TOTOクラッソ。2階には若年世帯用にキッチンを新設しました。幅2250㎝とできるだけ作業スペースを確保し、セカンドキッチンでもちゃんと調理ができるようにしました。

1階個室

1階和室と隣のリビングを若干狭めてご両親の個室にしました。広さはどちらも5.5畳です。できるだけ収納量を確保できるようにしました。

2階トイレ

TOTOピュアレストEX。1階トイレと同じく段差をなくしクッションフロアとアクセントパネルで若年世帯向きのデザインにしました。

洗面台

TOTOサクア。幅600→750に広げ、洗面雑貨の収納量を確保するために三面鏡にしました。掃除しやすいよう陶器ボウルにしています。

玄関

TOSTEMグランデル2。玄関錠の劣化により玄関扉ごと交換しました。電池交換を不要にするためにインターフォンから分岐して電源式としました。

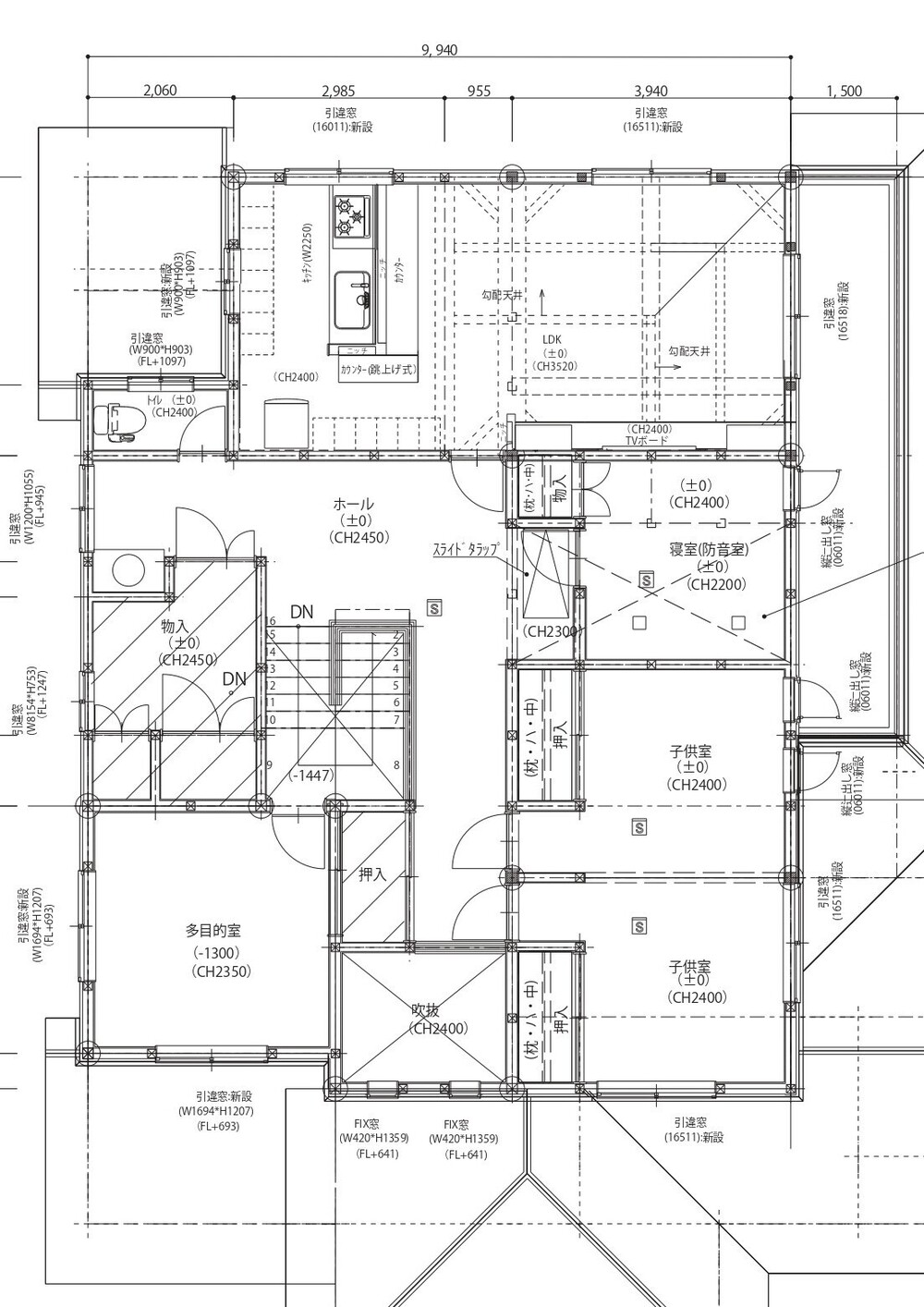
1階図面

玄関付近の和室をご両親の部屋とすることで玄関からの動線が短くなるようにしました。縁側には将来介護用トイレを設置できるよう配管を仕込んであります。

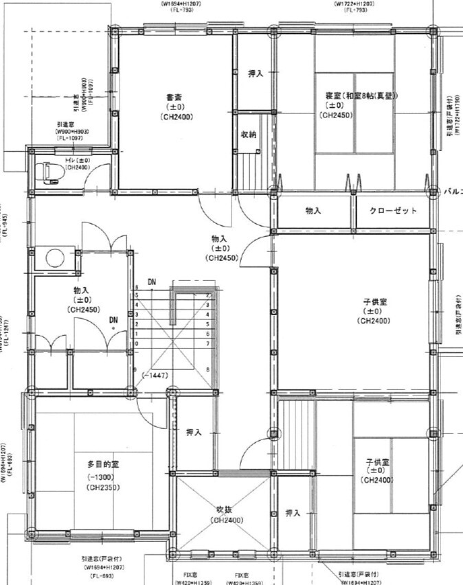
2階図面

若年世帯がそれぞれの個室を持ちながらも集まりたくなるようなリビングダイニングキッチンにしました。料理をしていても孤立感がないようキッチンは対面式。お子さんはキッチンのカウンターを使って勉強することもできます。

お客様のニーズ(リフォームへの要望)

・1階を親世帯、2階を若年世帯というように世帯ごとに独立したスペースをつくる
・将来の介護を見据えてバリアフリーと配管の仕込みをする
・浴室のみ共同とし、キッチン・トイレ・洗面は世帯ごとに設置する
・省エネのために窓はすべて断熱窓とする
・プライバシー確保のためにそれぞれ個室をつくる

お客様ニーズへの自社の対応

・1階和室を改修し、ご両親それぞれの部屋を玄関付近につくりました。
・1階の居室、トイレはバリアフリーにし、介護用トイレを縁側に設置できるよう配管を仕込みました。
・2階にキッチンを新設し、トイレ・洗面もメインで使えるよう機能を整えました。
・ほぼすべての窓をLow-e仕様のペア樹脂窓に変更しました。
・1階のご両親の部屋、中2階と2階に若年世帯の部屋をそれぞれ作り、子ども部屋だけは将来的に壁で区切れるようにしました。

リフォーム工事後のお客様の評価

新築したかのようにキレイになりとても満足されていました。既存の床や壁材にトーンを合わせたため、既築と改築部分の違和感がないです。何よりも急遽設計変更をお願いした2階のリビングでは梁が強調されながらも空間と調和しておりオシャレな空間になりました。

所在地
兵庫県新温泉町
施工日数
4ヶ月
施工完了
2025年09月
物件種別
戸建
構造
木造
築年数
34年
費用
2,300万円(税込)(補助金等の制度活用:有)
居住者構成
ペット
なし

この作品の事業者については、下記の事業者情報をご参照ください。(赤字のホームページURLをクリックすると、さらに詳しく確認いただけます!)

事業所情報

新温泉町を拠点にリフォーム工事を手掛けています。蛇口のパッキン交換からガス・石油機器の交換取付、主に水回り、洗面、トイレ、浴室(システムバス)、台所(システムキッチン)のリフォームまで、お客様と一緒に考えながら99%満足できる空間を作るよう励んでおります。スタッフも微力ながらベストを尽くし、お客様が快適な生活を送れるよう頑張っております。

事業所名
上島プロパン株式会社
所在地
兵庫県美方郡新温泉町浜坂439
営業エリア
新温泉町、香美町
営業時間
8:00~17:00
定休日
夏期休業、年末年始
電話番号 / FAX
0796-82-3110 / 0796-82-4733
対応物件
戸建
ホームページ
https://re-model.jp/webapp/remodel_club/view/RC000801

お気軽にご相談ください。
会員に関する苦情についてもお受けいたします。

10:00~12:00、13:00~17:00
(夏季休暇・年末年始・土日・祝日は除く)