愛媛県 株式会社松井建設 南支店 体感工房 詳細

イメージ通りにリノベーション

長年の希望を温めてらした、お施主様。ご縁があって、弊社で施工させて頂きました。
イメージするLDKやその他水廻りの雰囲気があり、それに沿ってとても和やかに楽しく、打合せや工事ともに進めさせて頂きました。
完成後はとても喜んでいただき、我々スタッフ一同ともとても充実したリノベーション物件となりました。

こだわりポイント
BeforeもしくはAfter図面あり / こだわりキッチン / こだわりトイレ / プロとしてのアイデア / 補助金等のリフォーム制度利用
リフォーム部分
リビングダイニング / 寝室・個室 / キッチン / バス / 洗面室 / トイレ

LDK

施工上、残す必要のある柱や壁は違和感なく馴染むようにプランしました。
インテリアは落ち着いた色味の無垢床フローリング。グレーを基調にした、明るすぎない雰囲気に。

細かく仕切られたリビング・ダイニング
主要な柱はキッチンのアクセントとして。広々したLDKに

キッチン1

イメージ通り 素敵なオープンキッチンに。
料理も気分よくはかどります

収納と壁で仕切られた空間
壁を撤去して、繋がった空間をキッチンにしました

キッチン2

ご希望の広々カウンター、下がり天井。そしてペンダント照明でカフェ風に。
隅にはネット機器を隠せる収納棚も設置してすっきりと。

以前のキッチン横にあった寝室
寝室の位置は移動して、明るく広々としたキッチンダイニング

ダイニング

食事やお茶をするのが、嬉しくなる空間になりました。
ダイニングとさりげなく仕切った壁の向こうは、可動棚を設置したクローゼットがあります。

寝室だった場所をリノベーション
映える! ダイニングへと変身

洗面

少し窮屈だった洗面空間を 使い勝手良くオシャレな洗面になりました。

洗面は別の場所にあり、雑多な感じの脱衣室
使いやすさと可愛らしさを両立した、洗面脱衣室へと変わりました

トイレ

グレーの壁紙と照明のキラキラが理想でした。
窓の位置や大きさも変更して、お気に入りの場所へと

長年愛用した、トイレ空間
好きな内装で出来上がったトイレ

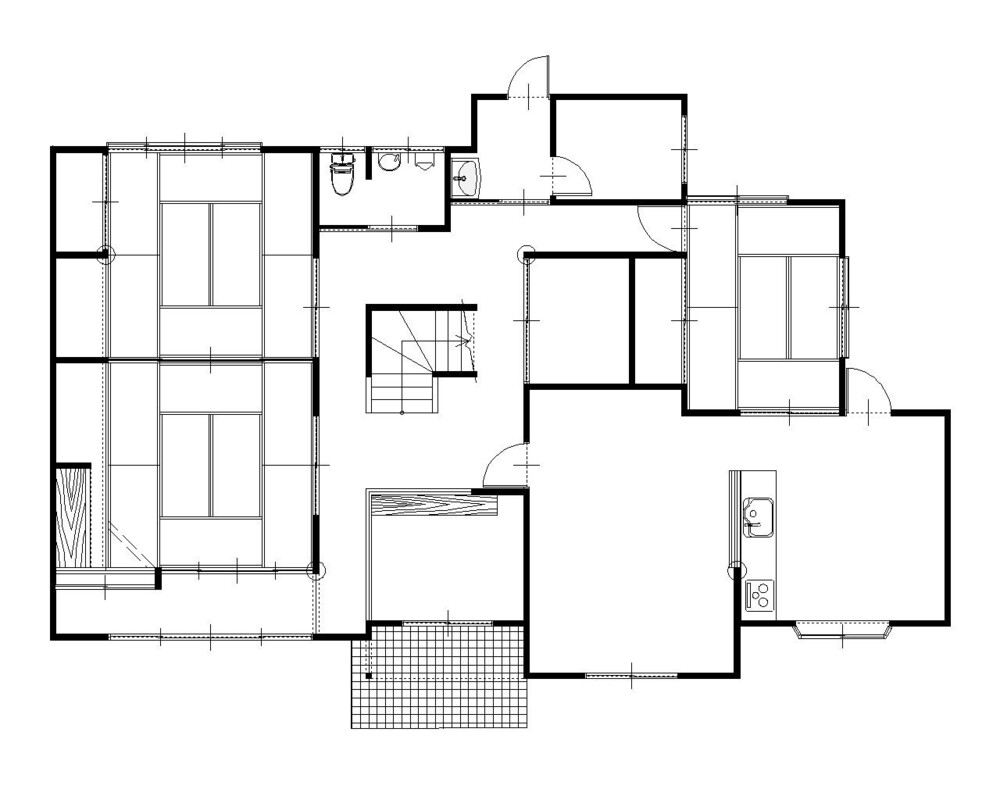
図面

個々に分かれていたキッチンダイニングとリビングを配置を変えて開放的な対面キッチンに変更しました。
キッチンから廊下に続く動線を新たに造ったので、水廻りに行きやすくなり使い勝手も良くなりました。

リフォーム前 before
リフォーム後 after

リフォーム工事後のお客様の評価

思いをカタチにして頂きました。リノベーションして、本当に良かったです。
イメージ通りになったLDKや水回り。お家がとても動きやすくなって、気持ちよく家事ができます。
これからお気に入りの空間で自分時間を楽しんでいきたいと思います。

所在地
愛媛県松山市
施工日数
3ヶ月
施工完了
2025年11月
物件種別
戸建
構造
木造
築年数
30年
面積
57.76m²
費用
1200万円(税込)(補助金等の制度活用:有)
居住者構成
ペット

この作品の事業者については、下記の事業者情報をご参照ください。(赤字のホームページURLをクリックすると、さらに詳しく確認いただけます!)

事業所情報

事業所名
株式会社松井建設 南支店 体感工房
所在地
愛媛県松山市井門町74-1
営業エリア
愛媛県下全域
営業時間
8:30~17:30
定休日
水曜日
電話番号 / FAX
089-957-1435 / 089-957-8147
対応物件
戸建,マンション
ホームページ
https://www.matsui-kensetsu.co.jp

お気軽にご相談ください。
会員に関する苦情についてもお受けいたします。

10:00~12:00、13:00~17:00
(夏季休暇・年末年始・土日・祝日は除く)