愛知県 LIPRA/株式会社プラマー太田 詳細

家事を快適に!過ごしやすいキッチン空間へ

キッチンと食器棚の動線が対角にあり苦労をしていました。キッチン廻りに食器棚を置くスペースが無く、模様替えによる配置転換が不可能。
部屋の面積は広いが有効活用ができていない為、LDKリフォームの運びに。
キッチンはこの先も長く使用できる様にタカラスタンダード ホーローシステムキッチン トレーシア。
キッチン近くにカップボードを置く事で動線も楽になりました。
また使いづらかった物入をパントリーに変更する事でより使いやすく、部屋の中をすっきりと。
内装は娘夫婦の意見を取り入れ、2世帯で創り上げたLDKに変身!

こだわりポイント
BeforeもしくはAfter図面あり / こだわりキッチン / プロとしてのアイデア / ライフスタイルの変化提案 / 新しい生活様式提案 / 補助金等のリフォーム制度利用
リフォーム部分
リビングダイニング

キッチン

頑丈でお手入れも楽な ホーローシステムキッチンを採用。
対面キッチンにし、開放的な空間に!
既設キッチンスペースはTVスペースにし、アクセントクロスを張る事で窓方向への広がりをアップ。

リフォーム前のL型キッチン
調理中でも部屋全体を見渡せるように! マルチ収納対面なので料理もスムーズに!

リビング

リフォーム前のリビング、雨の日には洗濯物も干す為、物干し竿を室内にて掛けて使用していました。
見た目や不便さもあった為、壁面に収納式の物干しユニットを設置する事で必要がない時は収納し、スッキリとしたリビング空間へ!

カップボード

キッチン横にカップボード設置する事で家事が楽に!
建具高さを2m40cmにする事でよりダイナミックな仕上がりに!

リフォーム前はキッチンと対角線にあった食器棚。 その横には引違い戸の物置がありました。

パントリー収納

カップボード横にはパントリーを設置!
リビング空間がスッキリとします。

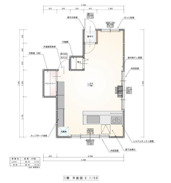
平面図

キッチンは毎日使用する場所だからこそ、より快適に!
リフォーム前はキッチンから食器棚までの動線に問題が、、、。
物入れ用建具を片引き戸へ変更。 扉の仕様を変更する事でキッチン横へカップボードを設置する事が可能になりました!

リフォーム工事後のお客様の評価

想像以上の仕上がりでした。
部屋も明るく感じるようになり、とても広くなった感じがします。
内窓を取り付けてもらい、部屋の中も快適に過ごせます。
収納も増えた事で部屋がすっきりしました。
食器棚も近くなり、家事が楽になりました。

所在地
愛知県西尾市
施工日数
30日
施工完了
2025年07月
物件種別
戸建
費用
800万円(税込)(補助金等の制度活用:有)
居住者構成

この作品の事業者については、下記の事業者情報をご参照ください。(赤字のホームページURLをクリックすると、さらに詳しく確認いただけます!)

事業所情報

リフォームショップLIPRAでは、建築士の資格を持つ営業・現場監督がお客様の快適な住まい空間へのお手伝いをさせていただきます。またリプラのリフォームに関わるほとんどの職人さんたちは西尾市内の方々ですので、職人さんの“顔”が見えるリフォームとなり、ご安心してお任せ頂けます。 お客様、職人さん、弊社スタッフ、皆が笑顔で幸せになれるリフォームを心掛けております。

事業所名
LIPRA/株式会社プラマー太田
所在地
愛知県西尾市吉良町吉田天笠桂117-1
営業エリア
西尾市,その他地域はご相談ください
営業時間
8:30~17:30
定休日
第2・4・5土曜、日曜、祝日、夏季(盆)、冬季(正月)
電話番号 / FAX
0563-32-3171 / 0563-32-3907
対応物件
戸建
ホームページ
http://www.plumber-ohta.com/

お気軽にご相談ください。
会員に関する苦情についてもお受けいたします。

10:00~12:00、13:00~17:00
(夏季休暇・年末年始・土日・祝日は除く)