東京都 株式会社リフォームプラザ小泉 荻窪店 詳細

過去の面影を払拭。広々ワンルームで贅沢な自分時間を過ごす。

新築当初はご両親が住まわれていました。

そちらは長年空き家になっていたので、改装してお客様ご自身がおひとりで住むことになりました。

工事が終わったらすぐに引っ越して生活ができるよう、家具・家電の設置も依頼されておりましたので、

今後の生活スタイル・生活動線を考慮し、家具の配置を含んだ "使い勝手の良い間取り"

を提案させていただきました。

こだわりポイント
BeforeもしくはAfter図面あり / こだわりキッチン / こだわりトイレ / こだわりバス空間(洗面含む) / インフィルリフォーム / プロとしてのアイデア / 補助金等のリフォーム制度利用
リフォーム部分
リビングダイニング / 寝室・個室 / キッチン / バス / 洗面室 / トイレ / その他

広々ワンルーム

お客様のご希望の一つであった

”間仕切り壁をなくして、広くワンルームとして使いたい”

というご希望に沿って、私たちは、お客様の生活スタイル・生活動線、使い勝手を十分に考慮し、トータルでご提案をさせていただきました。

キッチン左横には、PC機器等を置いて作業ができるよう
コーナーの造作カウンターを設置しました。

こちらのカウンターは、十分な広さと奥行を確保しつつ、
両端に腰壁を作ることで、落ち着いて作業のできる空間となりました。

自分時間を楽しんでいただけることと思います。

玄関を入って左側は独立した洋室でした。
間仕切り壁をなくし、スッキリ空間の誕生です。

玄関ホール

ワンルームとして広々と使うため

あえて廊下は無くしました。


玄関を入ると廊下がありました。
空間を有効に使えるようになりました。

キッチン

キッチンは機能性と使い勝手、デザイン性を兼ねた商材を選定しました。

キッチンのカウンター・その周りの家具・床の木目等 色味や質感は、統一感が表れています。

天然木ワークトップを採用することで、常にキッチンが見えるワンルームでも生活感が出すぎない”家具”のようなキッチンにすることが出来ました。

また、ダイニングテーブルも同シリーズのライフテーブルを採用しました。

色・素材がキッチン ワークトップと揃うことで統一感が生まれました。

家電を置くスペースがなく、困りごとの一つでした。
システムキッチン:クリナップ STEDIA

キッチンに続くリビングとプライベートスペース

冷蔵庫・洗濯機・TVを使い勝手や機能性・サイズに合うものを各メーカーから比較し選定しました。

ダイニングの椅子とソファは、お客様のお好みに合いそうなものを選定しました。

デザイン性がありつつ、使用感が良いもの。

色も馴染ませるのではなく、ほど良いアクセントとなるもの。

カーテンも含め、トータルコーディネートが完成しました。

こちらも、キッチンの奥は、独立した部屋でした。
ダイニングの椅子とソファ:カリモク家具 / ベッドとPCデスクの椅子:ニトリ

トイレ・洗面所

洗面脱衣室・トイレは大きな位置移動をせず、

間仕切壁を撤去し1室としました。

広く明るい清潔感のある空間に合うスッキリ

としたタンクレストイレと洗面化粧台を選定しました。

洗面所の隣のトイレは間仕切り壁がありました。
便器:TOTO ネオレストRS1 / 洗面化粧台:TOTO オクターブ

浴室

浴室は機能性・デザイン性を考慮した商材を採用しました。

清掃性も考慮し、必要最低限の手すりや収納棚は、

シンプルなデザインを選択しました。


壁パネルや天井もキッチンの雰囲気に合わせたものを

選択することで、ワンルーム全体の統一感が生まれました。

浴槽は断熱浴槽となり、浴室内は暖かく、安全で、さらに癒し空間となっています。

床、壁の素材がタイルでしたので、冷たさを感じていました。
浴室ユニットバス:クリナップ  ラクヴィア

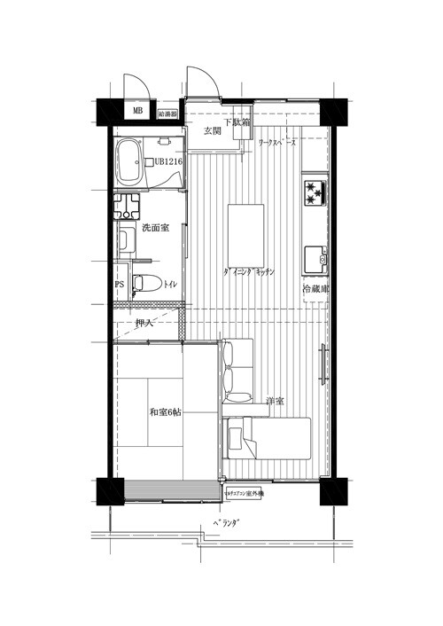
平面図

お客様の生活スタイル・生活動線・使いやすさを

トータルで、ゾーニングから練り、

お客様と確認をさせていただきながら、

進めて参りました。

お客様のニーズ(リフォームへの要望)

1)間仕切壁をなくし、広くワンルームとして使いたい

2)新築時から48年経過した水廻りの機器類を更新したい

3)工事が終わったらすぐに住めるよう家電・家具もみてほしい

お客様ニーズへの自社の対応

1)男性おひとりで使われることを考慮して、

 その後の生活動線や生活スタイルを

 考えたレイアウトのワンルームにしました。

2)設備機器や家具家電の配置をご提案。

 お打ち合わせし、現在のカタチになりました。

 使い勝手とデザイン性も重視しご提案しました。

3)私たちの親会社である㈱小泉のネットワークを活かし、

 建材・住宅設備機器はもちろん、家具・家電も含めて

 トータルでコーディネートをさせていただきました。

所在地
東京都文京区
施工日数
60日
施工完了
2025年11月
物件種別
マンション
構造
鉄筋コンクリート造
築年数
48年
面積
36m²
費用
1,324万円(税込)(補助金等の制度活用:有)
居住者構成

この作品の事業者については、下記の事業者情報をご参照ください。(赤字のホームページURLをクリックすると、さらに詳しく確認いただけます!)

事業所情報

事業所名
株式会社リフォームプラザ小泉 荻窪店
所在地
東京都杉並区天沼3-8-1
営業エリア
都内・都下、神奈川、千葉、埼玉の東京隣接地域
営業時間
9:00~18:00
定休日
日曜日・祝日(夏季休業、年末年始休みあり)
電話番号 / FAX
03-3391-3881 / 03-3391-3884
対応物件
戸建,マンション
ホームページ
http://www.reform-plaza.com

お気軽にご相談ください。
会員に関する苦情についてもお受けいたします。

10:00~12:00、13:00~17:00
(夏季休暇・年末年始・土日・祝日は除く)