茨城県 株式会社ジャスト 詳細

変化させ継承する 家族と仲間が集う家

幼少期を過ごされたご実家のリフォーム。お客様からのご要望は台所と3部屋の和室を1つの空間にしたい、梁や柱が見えるようにしてほしい、薪ストーブが映えるようにしてほしいというものでした。空間デザインはもちろん、強度を確保した上でこれまで建物が刻んできた歴史も感じられる大空間を実現しました。

こだわりポイント
BeforeもしくはAfter図面あり / こだわりキッチン / インテリア / プロとしてのアイデア / ライフスタイルの変化提案 / 新しい生活様式提案
リフォーム部分
リビングダイニング / キッチン

みんなが自然と集まるキッチン

空間の象徴である梁や薪ストーブの色味を合わせブラックのキッチンをご提案。本来ならキッチン上部に設置する吊り戸棚は開放的なキッチンにするために背面のキッチン収納の上部に設置しました。また、キッチンをLDK全体を見渡すことができる位置に配置しどこにいても会話が生まれるような空間づくりを目指しました。LDKからもキッチンの様子が感じられ、カウンターもあることで自然とみんなが集まるようなキッチンへと生まれ変わりました。

家族や仲間が集まりやすいキッチン

薪ストーブと合わせたブラックのキッチン

キラキラと美しいホーロー製のシステムキッチン。お手入れしやすく家事もはかどります。

大空間の実現

4つの部屋を1つの空間にするため何度も調査、シュミレーションをして大空間を作り上げました。柱、梁などの構造体からは迫力と歴史、そして癒しが感じられます。空間の中心に位置する大黒柱の壁部分にはホーロー製のパネルを設置し、ホーローの特徴であるマグネットが付くことやホワイトボードのように文字が書けることを活かしてご家族の伝言板のように使ったり、趣味の音楽鑑賞のためのスピーカーを置いたりと皆が思い思いに過ごせるような空間づくりをしました。

1つの空間で皆が思い思いに好きなことを楽しめるように...

癒しの薪ストーブ

「この薪ストーブが置きたくてリフォームしたいと思ったんだ」最初の現地調査の時にそう言って見せていただいた薪ストーブ。広い空間の中でもしっかりと存在感がありシンボルのようになっています。温かな光と炎の揺らめきが癒しを与えてくれます。

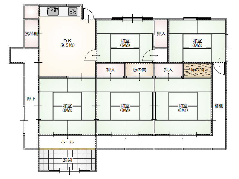
平面図

4部屋を1つの大きな空間にして、解放感と使いやすさを叶えました。北面にあった勝手口や大きな掃き出し窓は防犯面から縮小、撤去しました。今まで押入の前に置いてあった仏壇も新たに仏間を設けてスペースを確保しました。

細かな段差や低い鴨居、部屋が区切られていて使い勝手が悪い等さまざまなお悩みがありました。
床の高さを調整したことで段差や鴨居のお悩みを解消。開放感ある空間を作り上げました。

お客様のニーズ(リフォームへの要望)

・4部屋を1つの空間にしたい
・構造体が見えるようにしたい
・薪ストーブが映えるようにしてほしい
・趣味が楽しめるような家
・とにかくかっこよく!

お客様ニーズへの自社の対応

・入念な現地調査とシュミレーションで構造強度を確保し大空間を実現した。
・梁や柱などには塗装を施しより耐久性や美しさにもこだわった。
・薪ストーブが映えるよう薪ストーブを引き立たせるけど地味ではないタイルを選定した。
・ホーロー製のパネルを施し趣味の音楽鑑賞・演奏に必要なスピーカーや楽譜等をマグネット小物で設置できるようにした。
・全体的な色のトーンを落ち着かせたことで大人の落ち着く空間を作り上げた。

リフォーム工事後のお客様の評価

幼少期を過ごした実家をリフォームし、4部屋を1つの大空間にしたい、梁や構造体を見えるようにしたい等さまざまな希望を叶えていただきました。構造体の迫力と落ち着く空間が両立されていて想像以上の仕上がりに大満足です。キッチンは使い勝手がよくお手入れしやすいホーロー製を選んでよかったと思っています。また、ホーロー製のパネルもメモにしたりマグネット小物を使ってスピーカーを置いたりして生活の一部になっています。以前よりも趣味の時間を充実させたり家族や仲間と集まったり楽しい時間を過ごせるようになり思い切ってリフォームしてよかったです。

所在地
茨城県常陸大宮市
施工日数
60日
施工完了
2024年09月
物件種別
戸建
構造
木造
費用
1000万円(税込)(補助金等の制度活用:無)
居住者構成

この作品の事業者については、下記の事業者情報をご参照ください。(赤字のホームページURLをクリックすると、さらに詳しく確認いただけます!)

事業所情報

私たちジャストは茨城県内を中心に一般住宅の新築工事やリフォーム工事などを行っています。「家づくりでお客様を幸せにしたい」「お客様の理想のために妥協しない」この想いを胸にお客様と一緒に創っていくそれがジャストの家づくりです。お客様からの「ありがとう」「ジャストに頼んでよかった」その言葉や笑顔をこれからもいただけるよう誠心誠意心を込めた家づくり、空間づくりをしていきます。

事業所名
株式会社ジャスト
所在地
茨城県常陸大宮市泉158-1
営業エリア
茨城県内
営業時間
10:00~17:00
定休日
日曜日
電話番号 / FAX
0295-52-1755 / 0295-52-1835
対応物件
戸建
ホームページ
https://7fuku-eco.com/company/

お気軽にご相談ください。
会員に関する苦情についてもお受けいたします。

10:00~12:00、13:00~17:00
(夏季休暇・年末年始・土日・祝日は除く)