リフォームギャラリーコンテスト 特別賞

2025
千葉県 株式会社助川工務店 ドリームリビング・リフォーム館 詳細

自然素材『もみの木』を採用・断熱改修で快適さと温もりの住まい

今回のリノベーションは、築40年を超えるマンションの全面改修です。もともとの住まいは和室中心の間取りで、断熱材が入っていないため夏は暑く冬は寒い環境が課題でした。また、配管や設備の老朽化も進んでおり、暮らしに安心感を持てない状況でした。
 お打ち合わせでは、まずご家族のライフスタイルに合った空間づくりを重視しました。間取りは和室を一部洋室や収納に改修し、生活動線を改善LDKを中心とした開放感のある住まいへ再構築しました。そして当初からご希望だった「もみの木内装材」を床と天井に採用、自然素材ならではの温かみと香りが広がり家族をやさしく包み込む空間を実現しています。
 性能面では、断熱材を新設し全窓に内窓を設置することで、冬の冷え込みや夏の暑さを軽減、省エネ性と快適性を高め、四季を通じて心地よく過ごせる住環境を整えました。さらに、キッチン・浴室・洗面を含めた水回りをすべて一新し、古い配管も更新、安心して長く暮らせる住まいへと進化しました。
完成後の住まいは、明るく広がりのあるリビングを中心に、自然素材のぬくもりを感じながら過ごせる空間に。もみの木と断熱改修が生み出す快適さの中で、ご家族の新しい暮らしが始まります。

こだわりポイント
BeforeもしくはAfter図面あり / こだわりキッチン / こだわりトイレ / こだわりバス空間(洗面含む) / プロとしてのアイデア / ライフスタイルの変化提案 / 新しい生活様式提案 / 補助金等のリフォーム制度利用
リフォーム部分
リビングダイニング / 寝室・個室 / キッチン / バス / 洗面室 / トイレ

LDK:LDKを中心とした開放的な空間作り

・木目天井と落ち着いたブルーのキッチン。もみの木を使用し、自然素材の温もりあふれる空間に仕上がりました。
・リビング奥には畳敷きの小上がり。もみの木の床と調和し、家族がくつろげる優しい住まいになりました。
・リビングの一角に畳スペースを設置。段差を設けることで空間にアクセントと落ち着きを与えています。
・畳スペースからリビングを一望。もみの木の自然な風合いが家族をつなぐ温かい雰囲気を演出します。

Before:断熱材がないため夏は暑く冬は寒い環境
After:自然素材の温もりあふれる空間に仕上がりました

キッチン:大容量の収納と広々としたカウンターキッチン

・キッチンの背面には大容量の収納と作業カウンターを設置。片付けやすく、すっきりした暮らしを支えます。
・広々としたカウンター付きキッチン。開放感があり、家族との会話を楽しみながら調理ができるレイアウトです。

Before:設備が老朽化し使い勝手や収納に不満
After:片付けやすく家族との会話を楽しめるキッチン

洋室①:シンプルで明るい雰囲気の個室

・クローゼットと棚を備え、多用途に活用できる個室
・ナチュラルな雰囲気で、書斎や寝室などライフスタイルに合わせて利用できます

Before:収納が古いままで活用しづらい個室
After:クローゼットと棚を備え多用途に活用

洋室②:隣の部屋との動線を確保した個室

・南向きの窓から光が差す明るい空間
・シンプルな設計で家具に配置もしやすい快適なお部屋
・使い方に応じてプライベート空間にも共有スペースにもなります

Before:畳や建具の劣化が進み結露や寒さに悩まされる
After:内窓を設置、明るく現代的な部屋に

洗面脱衣室:設備が古く収納も限られた洗面脱衣室

・浴室とトイレが隣接し収納も限られていた
・湿気対策や機能性に不満がある空間でした
・全体的に古さが目立ち、家族のライフスタイルに合わせた使い勝手には不足がありました

Before:浴室とトイレが隣接、湿気が残る空間
After:床・壁・天井にもみの木を使用、湿気を無くし大きな収納

玄関:たっぷり収納すっきり明るく

・稼働棚で靴や小物を整理でき玄関まわりをすっきり整えます
・廊下には便利な収納を確保、日用品や掃除用具を片付けられる実用性の高いスペースです
・もみの木のダークカラーの床と天井が落ち着きを演出する玄関

Before:玄関スペースは暗く収納も十分でありません
After:たっぷり収納できるシューズクローク・玄関まわりがすっきり

トイレ:落ち着きと清潔感ある空間に

・手洗い一体型のトイレを採用
・床と天井に消臭効果に優れた『もみの木』を使用、木目がアクセント
・ダークカラーの床と天井が落ち着きと清潔感を演出
・上部に棚を設け、小物の収納ができ便利に

Before:壁や床に劣化がみられ断熱の不十分さが課題
After:落ち着きと清潔感のある空間に

リビング:多目的スペース

・LDKの小あがり畳スペースの窓際に造作カウンターを設置
・家族が多目的に使えるスペースを造作

Before:快適性に不満があった空間
After:読書や勉強など多目的に使えるワークスペース

収納:デットスペースに便利な収納

・廊下の壁を利用して使い勝手の良い収納を設ける
・稼働棚を設置し便利につかえる収納に

Before:収納が無く収納家具で対応
After:廊下に併設した奥行きは無い収納も便利

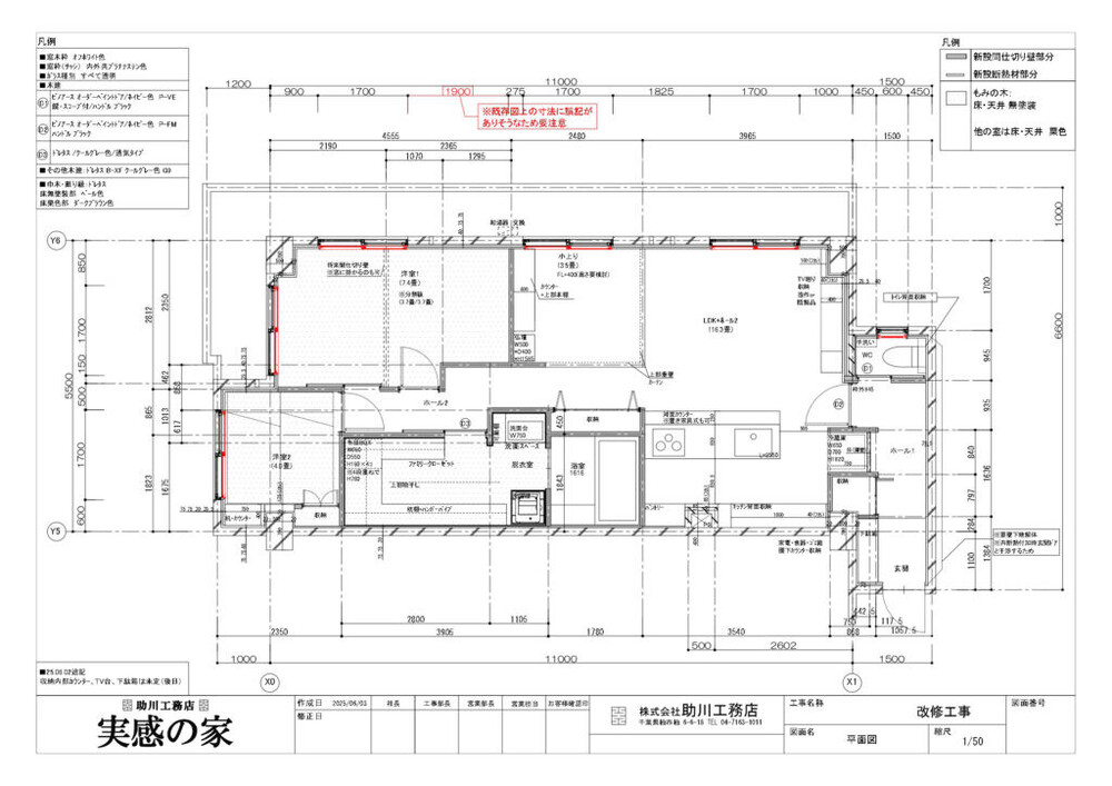
図面:築40年を超えるマンションの全面改修

・既存の間取りや設備状況の確認
・和室が中心の間取り断熱材がなく夏は暑く冬は寒い状況、配管類の老朽化も懸念
・今回の計画では家族のライフスタイルに合わせて間取りを大きく変更しLDKを中心とした開放的な空間作りを重視
・和室は用途を見直し洋室や収納へ改修、生活動線の改善と収納力の向上を両立
・断熱材の施工や内窓の設置を行い、快適性と省エネ性能を確保
・水まわり設備も全て刷新し配管関係を含めた安全性と耐久性を確保
・照明やコンセント配置などの細部もプランニングし日常生活がより便利で快適になるよう工夫

Before:二間和室の40年前の間取り
After:デザインの調整を行いご家族の希望を反映させた最終プラン

お客様のニーズ(リフォームへの要望)

・築40年以上経つマンションのリノベーション
・断熱性能を高める
・内窓設置
・自然素材の採用『もみの木内装材』を床・天井に使用
・古くなっている配管関係を全て一新

お客様ニーズへの自社の対応

・断熱材を入れて全ての窓に内窓を設置
・古くなった配管関係をキッチン・ユニットバス・洗面・トイレを含めて全て一新
・当初より希望の『もみの木の内装材を床・天井に施工』
・家族構成に合わせて間取りの変更
・LDKを中心とした快適な空間作りを重視

リフォーム工事後のお客様の評価

元々のマンションが古く暑さや寒さが非常に厳しく、水まわりも古くリビングが狭く間取りも家族に合っていなかった。
土地を購入し新築を計画したけれど、良い土地がなかなか見つからず現在住んでいるマンションのリノベーションを
検討する中で、『もみの木の内装材』の消臭・調湿効果に感銘を受け、フルリノベーションを決意。
間取りも水まわり設備機器なども全て一新したので新築の様な仕上がりになった。
内窓+断熱材も追加したので暖房効率が上がりとても温い、これから夏の暑さも軽減出来る事を期待しています。

所在地
埼玉県草加市
施工日数
3ヶ月
施工完了
2025年09月
物件種別
マンション
構造
鉄筋コンクリート造
築年数
40年
面積
70m²
費用
1800万円(税込)(補助金等の制度活用:有)
居住者構成
ペット

この作品の事業者については、下記の事業者情報をご参照ください。(赤字のホームページURLをクリックすると、さらに詳しく確認いただけます!)

事業所情報

事業所名
株式会社助川工務店 ドリームリビング・リフォーム館
所在地
千葉県柏市柏6-6-18
営業エリア
千葉県
営業時間
9:00~18:00
定休日
年中無休(年末年始・お盆除く)
電話番号 / FAX
04-7163-7718 / 04-7163-1002
対応物件
戸建,マンション
ホームページ
https://www.dream-living.com/

お気軽にご相談ください。
会員に関する苦情についてもお受けいたします。

10:00~12:00、13:00~17:00
(夏季休暇・年末年始・土日・祝日は除く)