福岡県 有限会社松田住宅機器 詳細

バレリーナの心と体が躍るLDK

始まりは、「キッチンをリフォームしたい」ところからスタート。

お打ち合わせを重ねるうちに、「リビングと和室の間の壁が邪魔じゃない?」と進んでいき、

「それなら、思い切って広いLDKにしたい!」というリノベーションプランに進化していきました。

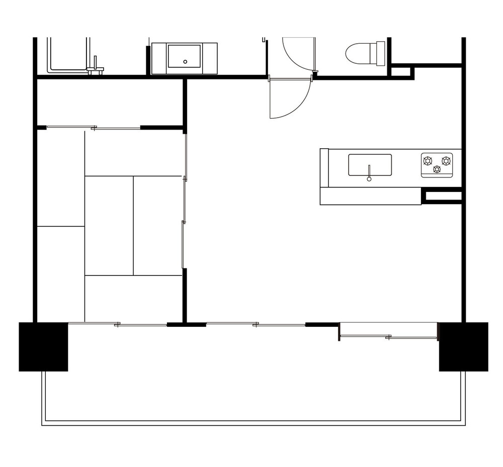
元々は対面キッチンでしたが、吊り戸棚やカウンターに囲まれており、キッチンは独立した空間となっていました。

「できるだけ広い空間にしたい」という奥様には、ある特別な想いがありました。

それは、社会人になってから夢中になられた「バレエ」を、ご自宅でも練習できる空間にすることです。

コロナ禍の自粛期間中、大好きなバレエ教室がお休みになり通うことができなかった経験から、ご自宅をスタジオのような広い空間にしたいという理想を形にすることに。

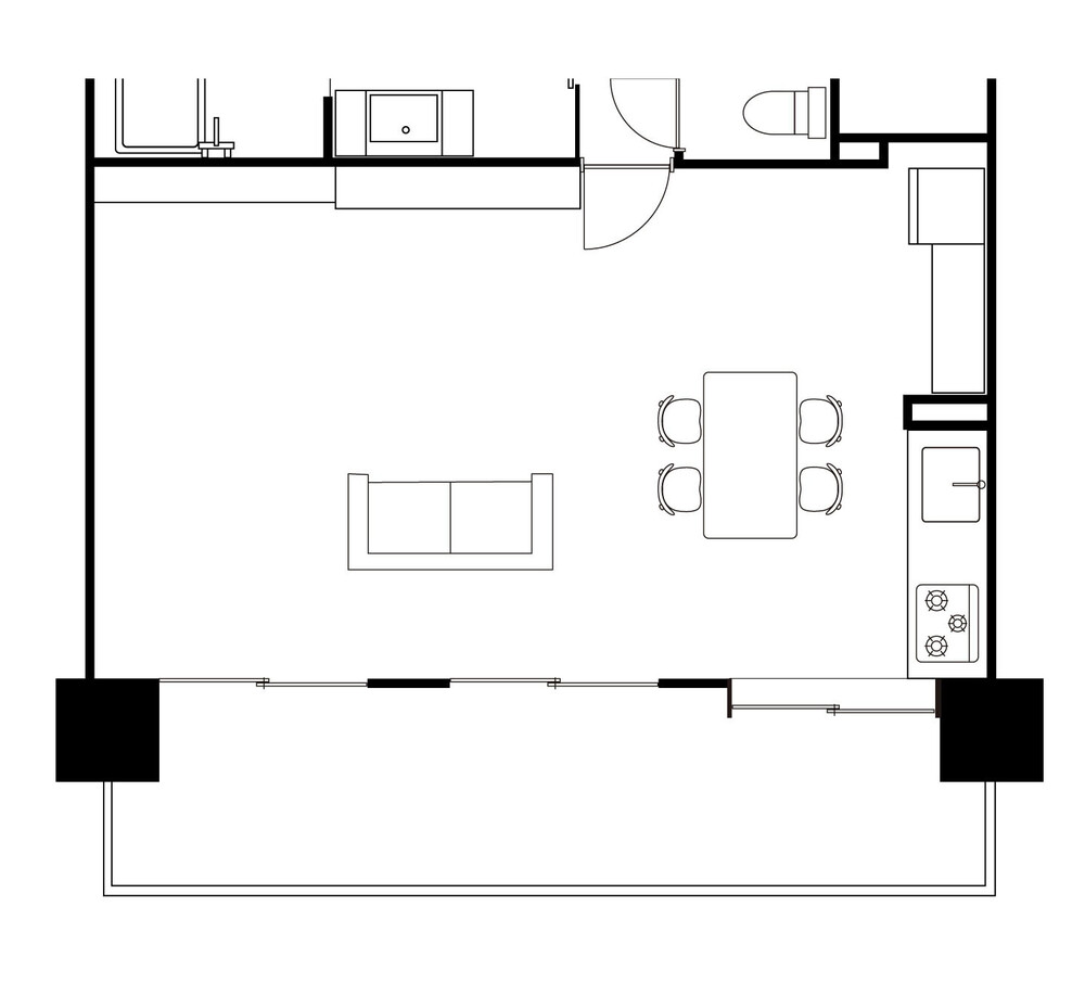
今回のプランでは、空間の広さを最優先するため、あえて設備機器や家具をできるだけ壁側にレイアウトしています。

壁付けになったキッチンやカップボードは、もはや「家具」の一部として捉え、デザインにも徹底的にこだわりました。

選定したのは、無垢の木に塗装を施した扉が美しいウッドワンのキッチンです。

リビングの扉やテレビ背面の羽目板も同じウッドワンで揃え、空間に統一感を持たせています。

奥様はご自身で壁を塗ったり、ステンドグラスを埋め込んだりされるほどのDIY好き。

そんな奥様が大切にされてきた可愛らしい照明器具や雑貨、お手製の家具たちが馴染むよう、インテリアのテーマを「パリのアパルトマン」のような雰囲気にまとめました。

こだわりポイント
BeforeもしくはAfter図面あり / こだわりキッチン / ライフスタイルの変化提案 / 補助金等のリフォーム制度利用
リフォーム部分
リビングダイニング / 寝室・個室 / キッチン / その他

お料理をしながらバレエのポーズができる開放的なキッチン

キッチンは風合いを感じられる無垢の木の扉で壁はタイル。奥様がもってらっしゃったインテリア小物が似合うキッチンに。

リビングの向こうにはバレエレッスンスペースとレペットのポスター

床材はバレエレッスン中に滑らないよう、表面に軽く浮造り加工されたもので、ウレタン塗装をしたオーク材を選びました。レッスンスペースだけでなく、お料理中もアラベスク(後ろに足を上げるポーズ)など、大好きなバレエに触れながら過ごせるLDKに。

リビングドアはアクセントカラーのディープグリーン

宝物のイヤープレートに合わせてディープグリーンをアクセントカラーにしたリビングドア。玄関タイルも緑のタイルに貼替え、リビングドアとのつながりを持たせています。奥様がDIYをして壁に埋め込んだステンドグラスも印象的。

今の奥さまにぴったりなレストルームに

床のクッションフロアの張替えだけですが、印象がガラッと変わりました。今の奥さまが好きなイメージにあわせて。

パリのアパルトマンのようなナチュラルで可愛らしいクローゼット

奥さまがお好きなバレエを存分に堪能できる場所。

初回ご提案でお渡ししたイメージパース

お施主様の一目惚れされた手描きのイメージパース。施工後には、額にいれて飾ってくださってました。

プラン

キッチンの吊り戸やカウンターを撤去し、システムキッチンや設備をなるべく壁付けにして広い空間をとりました。

所在地
福岡県福津市
施工日数
25日
施工完了
2023年04月
物件種別
マンション
築年数
27年
面積
36m²
費用
580万円(税込)(補助金等の制度活用:有)
居住者構成

この作品の事業者については、下記の事業者情報をご参照ください。(赤字のホームページURLをクリックすると、さらに詳しく確認いただけます!)

事業所情報

昭和45年に創業して以来、地域密着で住まいづくりをサポートしてきました。お客様のお困りごとに真摯に向き合い、何が一番良いかを考え、ご提案させていただいています。まずはしっかりとお話しを聞かせていただきます。設備機器の修理・取替から水廻りのリフォーム、バリアフリー改修やリノベーションなど、お住まいのことなら何でもお気軽にご相談ください。

事業所名
有限会社松田住宅機器
所在地
福岡県福津市日蒔野1-16-8
営業エリア
福津市、古賀市、宗像市
営業時間
8:30~17:30
定休日
日祝/夏季休業/年末年始
電話番号 / FAX
0940-42-2077 / 0940-42-5000
対応物件
戸建,マンション
ホームページ
https://matsuda-jk.jp/

お気軽にご相談ください。
会員に関する苦情についてもお受けいたします。

10:00~12:00、13:00~17:00
(夏季休暇・年末年始・土日・祝日は除く)