
文京区小日向の家
本計画は旧耐震(昭和52年築)の、戸建て住宅リノベーションである。
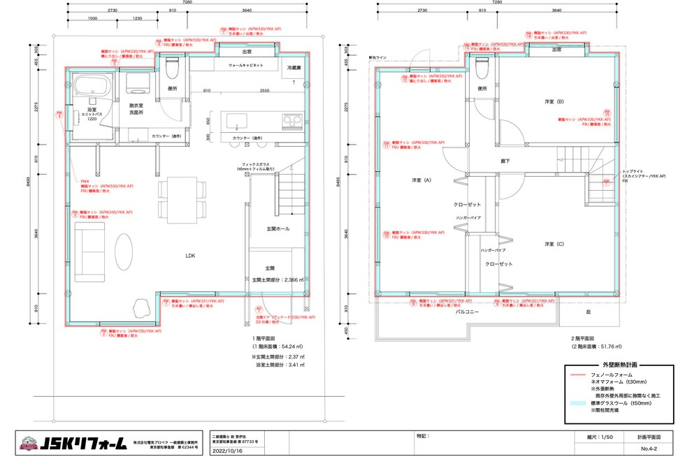
住み手の安全性、快適性を確保するため、大幅な耐震性能、断熱性能の向上を行った。(耐震性能:上部構造評点1.56、断熱性能:UA値0.41W/㎡K、気密性能:相当隙間面積C=0.97 cm²/m²)
『耐震改修』は、①基礎補強(既存無筋基礎に対して鉄筋コンクリート基礎を抱き合わせ補強)、②耐力壁の配置、③柱頭柱脚金物の配置、④瓦屋根から金属系屋根への改修を行った。
『断熱改修』は、①壁、天井に対してグラスウールを施工、②床下、外壁にはフェノールフォームを施工、②サッシを高断熱樹脂サッシに交換、により行った。
なお、外壁はフェノールフォームによる外張り断熱とし、金属サイディング仕上げとした。
既存住宅の温かみのある設え(タイル、階段等)を残しつつ、新しい建材、デザインとの融合に配慮することで、他にはない空間を実現した。また、新たな象徴としてトップライトを設け、暗くなりがちな玄関ホールに優しい天空光を取り入れる計画とした。
間取り変更と設備の更新を行うことで、現在のライフスタイルに合った動線計画とした。
また、費用負担を抑えるため、令和4年度 「次世代省エネ建材の実証支援事業」の補助金等を活用した。
キッチン
キッチン手前に造作カウンターを設置し、I型キッチンをリビングに対面させ、開放的なキッチンとなるよう配慮した。
玄関ホール
玄関から、右側には上部にトップライトを配置した階段室、左側にはFIX ガラス越しにキッチンを望むことが出来るよう計画し、開放的な空間となるよう工夫した。
リビングダイニング
和室と居間との間の壁を取り払い、1室のリビングとした。
サッシの形状、天井/壁のビニールクロスで変化を持たせ、立体感のある空間となるよう計画した。
建物外観
建物の仕上げは、本体重量が軽く、建物に対する負担の少ない金属サイディングとした。
ホワイト系の外観色とし、サッシ枠もホワイトとすることで、明るくすっきりとした外観デザインとなるよう工夫した。
既存タイルと調和させることで、温もりのあるファサードとなるよう配慮した。
寝室
配色は白基調とし、明るく清潔感のある空間デザインとした。
生活シーンに合わせて部屋の雰囲気を変えられるよう、照明は調光調色機能付きのダウンライトとした。
階段室
上部トップライトからの天空光により、階段室の採光を取得する計画とした。
(2階廊下から階段室を望む)
平面図
住み手の安全性、快適性を確保するため、大幅な耐震性能、断熱性能の向上を行った。
(耐震性能:上部構造評点1.56、断熱性能:UA値0.41W/㎡K、気密性能:相当隙間面積C=0.97 cm²/m²)
『耐震改修』は、①基礎補強(既存無筋基礎に対して鉄筋コンクリート基礎を抱き合わせ補強)、②耐力壁の配置、③柱頭柱脚金物の配置、④瓦屋根から金属系屋根への改修を行った。
『断熱改修』は、①壁、天井に対してグラスウールを施工、②床下、外壁にはフェノールフォームを施工、②サッシを高断熱樹脂サッシに交換、により行った。
事業所情報
住宅の性能を向上させる目的で行うリフォームを「住宅性能向上リフォーム」と言います。「住宅」のJ、「性能」のS、「向上」のKの頭文字をとって「JSKリフォーム」と名付けました。住まいの性能を向上させて、快適で、安心、安全な暮らしを実現しませんか?