愛知県 カナルリフォーム西尾店 詳細

記憶を纏う住まい。古き美しさを活かす、次世代への暮らし

思い出や歴史が詰まった大切な住まい。
これからのセカンドライフを見据え、住まいの段差や、趣味を楽しむための環境不足を解消するため、リノベーションを決意されました。
歴史を大切にしながら素材を活かしつつ、機能性をアップデートすることで、快適かつ趣味を存分に楽しめる、未来へと繋がる家を創り出すことを実現しました。

こだわりポイント
BeforeもしくはAfter図面あり / こだわりトイレ / インテリア / プロとしてのアイデア / ライフスタイルの変化提案 / 補助金等のリフォーム制度利用
リフォーム部分
リビングダイニング / 寝室・個室 / キッチン / バス / 洗面室 / トイレ / 屋根・外装・外構・造園等 / その他

玄関

既設の欄間を活かし、新旧の調和した空間にあたたかい光が注ぎ込みます。

玄関・ホール

段差の解消と玄関収納を設置したことで、室内外の出入りをスムーズにし、毎日の移動が負担にならない安全な動線を実現しました。

和室

長年家を支えてきた既存建具を継承しました。経年変化した天然木の質感が、家族の記憶を纏い、空間に唯一無二のアクセントを添えています。

縁側

既存の梁と天井をそのまま活かすことで、築年数を経た住まいにしかない重厚感と開放感を創出。同時に、すべての窓をペアガラスへ更新することで、古民家特有の寒さを解消し、一年中快適に過ごせる居住環境へとアップデートしました。

キッチン

吊戸付きのキッチンへ取替。
1人暮らしでも十分な収納量を確保しました。

トイレ

トイレを1カ所に集約し、バリアフリーに配慮して手摺り付きへと変更しました。

耐震工事

これからも安心して住み継いでいただくため、必要な箇所へ的確な耐震補強を施しました。

外壁

外装は既存の外壁・屋根を活かした『上張り工法』を採用し、住まいの耐久性と意匠性を一新しました。また、一部の水回りを『減築』することで建物全体の凹凸を整理し、表面積を減らすことで断熱効率の向上を目指しました。

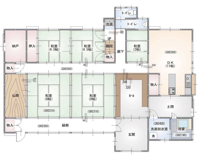
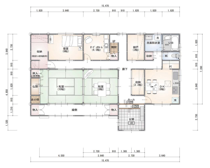
図面

家全体の段差を解消するとともに、水まわりを回遊できる動線へと改善しました。無駄な動きを省くことで、家事の時短と安全な移動を両立させています。また、セカンドライフの愉しみとして、4.5帖の独立したオーディオルームを計画。水回りや寝室との動線をコンパクトにまとめつつ、生活空間から適度に距離を置きました。

お客様のニーズ(リフォームへの要望)

・耐震性能の向上
・木材の再利用
・段差の軽減
・収納できる部屋を多く
・建具、サッシの劣化に伴う修繕

お客様ニーズへの自社の対応

・耐震性能の向上:必要な箇所への耐震補強
・木材の再利用:既存の梁や一部の建具を流用
・段差の軽減:床の貼替、床組
・収納できる部屋を多く:収納部屋の計画
・建具、サッシの劣化に伴う修繕:室内建具、サッシの交換

所在地
愛知県西尾市
施工日数
4ヶ月
施工完了
2024年08月
物件種別
戸建
構造
木造
築年数
65年
面積
142m²
費用
3000万円(税込)(補助金等の制度活用:有)
居住者構成

この作品の事業者については、下記の事業者情報をご参照ください。(赤字のホームページURLをクリックすると、さらに詳しく確認いただけます!)

事業所情報

注文住宅からリフォームまでを総合的に扱ってきた当社のスタッフは、全員が住宅隅ずみまでを知り尽くしたプロフェッショナルです。地域密着で事業を行ってきた経験を活かし、他のリフォーム会社には真似できない、地域のお客様にとってより良い住まいを追求したご提案をさせていただきます。

事業所名
カナルリフォーム西尾店
所在地
愛知県西尾市道光寺町堰板6―5
営業エリア
西尾市、高浜市、碧南市、安城市
営業時間
10:00~17:00
定休日
年中無休(年末年始・GW・夏季休業除く)
電話番号 / FAX
0563-55-0301 / 0563-55-0572
対応物件
戸建,マンション
ホームページ
https://kanal-reform.jp/

お気軽にご相談ください。
会員に関する苦情についてもお受けいたします。

10:00~12:00、13:00~17:00
(夏季休暇・年末年始・土日・祝日は除く)