愛知県 カナルリフォーム西尾店 詳細

光と梁が紡ぐ、バリアフリーな陽だまりの家

定年後に継いだ実家は、北向きの暗く寒いLDと段差が課題でした。そこでLDKを南側へ移し、トリプルサッシと断熱改修で陽だまりのような暖かさを実現しました。
既存の梁を現した空間には、暖炉やピアノ等、夫婦それぞれの趣味空間を設けました。
家中を段差のないフルフラットにし、車椅子対応トイレや収納動線も一新し、外壁の耐久性も高めた、将来まで安心して自分たちらしく楽しめる住まいへと生まれ変わります。

こだわりポイント
BeforeもしくはAfter図面あり / こだわりキッチン / こだわりトイレ / こだわりバス空間(洗面含む) / インテリア / エクステリア / グリーン化・SDGs達成(断熱・耐震含む) / プロとしてのアイデア / ライフスタイルの変化提案 / 補助金等のリフォーム制度利用
リフォーム部分
リビングダイニング / 寝室・個室 / キッチン / バス / 洗面室 / トイレ / 屋根・外装・外構・造園等

LDK

日当たりのよい空間。
南側への間取り変更と開口部の新設により、日中照明いらずの明るいLDKを実現しました。

バリアフリー

大きな段差の解消等のバリアフリー に加え、車椅子対応の広々としたトイレ・建具を採用しました。

キッチン

暗かったキッチン空間をお部屋の中心に持ってくることで、明るくなりました。
アイランドキッチンを採用し、お孫様が来た時も会話をしながら一緒にキッチンで作業ができます。

水回りの動線

各設備を一新し、家事効率を高めるコンパクトで回遊性のある動線に再構築しました。

外壁・玄関ドア

外壁は、ガルバリウム鋼板を『上貼り』し断熱性、耐久性を高めました。
玄関ドアは取替、スマートキーにしたことで防犯性も高まりました。

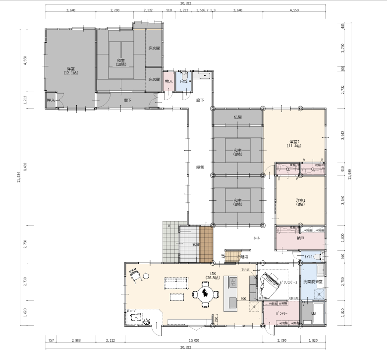
図面

居間と水回りそれぞれが分断され暗かった空間を、南側に広々としたLDKを配置することで明るい空間へ。また、窓を増やしトリプルサッシを採用することで、光あふれる断熱性能の高い住まいへ再生しました。アイランドキッチンを軸にした水回りの回遊動線や、WIC新設による収納量のUPで家事もスムーズにしました。

お客様のニーズ(リフォームへの要望)

①日が当たらず暗い、寒くていられないほど
 →居住スペースに日が当たるようにしたい

②段差が多く、転倒の危険性がある。
→今後のことも考えてバリアフリーにしたい、車いすでも生活ができるように

③白アリが不安

④水回りの交換

お客様ニーズへの自社の対応

①採光:LDKを南側に配置し、南・西・東の多面採光にすることで一日中明るい大空間を実現しました。また、水回りもLDKのすぐ隣に集約し、居住エリア全体をコンパクトにまとめることで、冬場のヒートショック対策として温度差を最小限に抑える設計としています。

②バリアフリー: 建具を引き戸にすることで、車椅子での出入りや有効開口幅の確保が意識していま。トイレは十分なスペースが確保されており、車椅子での介助もしやすいレイアウトです。

③家事ラク動線: キッチン背後に広大な「パントリー」と「洗面脱衣室」を直結させ、家事負担を大幅に軽減しています。

所在地
愛知県西尾市
施工日数
5ヶ月
施工完了
2025年07月
物件種別
戸建
構造
木造
築年数
40年
面積
420m²
費用
3000万円(税込)(補助金等の制度活用:有)
居住者構成

この作品の事業者については、下記の事業者情報をご参照ください。(赤字のホームページURLをクリックすると、さらに詳しく確認いただけます!)

事業所情報

注文住宅からリフォームまでを総合的に扱ってきた当社のスタッフは、全員が住宅隅ずみまでを知り尽くしたプロフェッショナルです。地域密着で事業を行ってきた経験を活かし、他のリフォーム会社には真似できない、地域のお客様にとってより良い住まいを追求したご提案をさせていただきます。

事業所名
カナルリフォーム西尾店
所在地
愛知県西尾市道光寺町堰板6―5
営業エリア
西尾市、高浜市、碧南市、安城市
営業時間
10:00~17:00
定休日
年中無休(年末年始・GW・夏季休業除く)
電話番号 / FAX
0563-55-0301 / 0563-55-0572
対応物件
戸建,マンション
ホームページ
https://kanal-reform.jp/

お気軽にご相談ください。
会員に関する苦情についてもお受けいたします。

10:00~12:00、13:00~17:00
(夏季休暇・年末年始・土日・祝日は除く)