東京都 株式会社リフォームプラザ小泉 荻窪店 詳細

玄関にクローゼットのある家 VOL.2

今回は前回、施工をさせていただいた物件のお隣をフルリフォームすることになりました。

フルリフォームをするにあたり、お客様の ”こうしたい” というご希望があったため、

それに応えられるよう、またプロとして現実的に施工できるか否かを確認しながら、

お客様と綿密に打ち合わせを重ね、ご希望の実現に沿えるよう努めました。

お客様が、ご家族の生活動線を熟知しているからこそのきめ細やかな 

”思いやりのあるこだわり” が、各所にちりばめられた 素敵な家となりました。


こだわりポイント
BeforeもしくはAfter図面あり / こだわりキッチン / こだわりトイレ / インフィルリフォーム / エクステリア / プロとしてのアイデア / ライフスタイルの変化提案 / 新しい生活様式提案 / 補助金等のリフォーム制度利用
リフォーム部分
リビングダイニング / 寝室・個室 / キッチン / バス / 洗面室 / トイレ

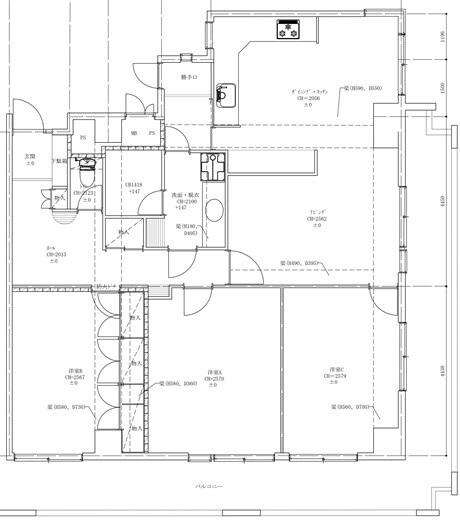
1. 間取りの変更~玄関

こちらのマンションの間取りは、玄関と勝手口 という 

2つの入口があるタイプのマンションです。

お客様は、いままでの 玄関・勝手口 という

使い方ではなく、来客用・家族用 として

入口の使い方を考えられていました。

来客用玄関は土間空間ですっきりとした空間になっています。

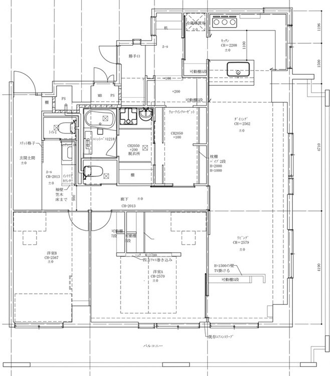
2. 間取りの変更~ウォークインクローゼット

勝手口は、近くに大きなウォークインクローゼット

があるので、ホールは家族の靴類や、生活の細々したもの

が集約されています。ご家族の生活スタイルにあった

使い勝手の良い空間に生まれ変わりました。

家族用玄関は、ホールに無駄な空間ありません。収納が充実しています。

3. 図面

当初から、ご希望でもあったトイレを2か所設ける

ことも含め、間取りを大幅に変更しました。

4. 間取りの変更~一部壁を作る~寝室

一部壁を造作することで目隠しとなる空間も生まれます。

隠すところは隠し、逆にそれ以外のスペースはスッキリと。

広々空間が誕生しました。

寝室にあえて壁を作りました。

5. 間取りの変更~一部壁を作る~洗面所

洗面スペースは、玄関を入り、半間仕切り的な格子状の壁

を作ることで空間が完成します。

見た目に美しく、シンプルな空間です。

開放感もあります。

機器~キッチン・照明器具

LDとつながるキッチンは、シンク部分をLD側に設け

ました。キッチンは、横幅60㎝の食器洗い機と

トリプルワイドコンロが内蔵されており、

非常に使い勝手の良いL型キッチンになっています。

コンロ左側の横にはパントリーがあり、

電子レンジや冷蔵庫があります。

また、照明器具も含めた機器の選定は

お客様が選定されました。

各お部屋の照明も、素敵に空間を盛り立てています。

システムキッチン:Panasonic Lクラス

内装~クロスその1

2つのトイレ~それぞれに違うタイプの空間に。

個性を感じるクロスの選定は、お客様のセンスが光っています。

便器:LIXIL サティス

内装~クロスその2

2つのトイレ~それぞれに違うタイプの空間に。

わくわくする楽しい空間です。

便器:Panasonic アラウーノ

お客様のニーズ(リフォームへの要望)

1)トイレを2つ作りたい

2)キッチンは幅60センチの食洗器と

  トリプルワイドコンロ(3つ口IHコンロ)を置きたい

3) コンセントの色や形状もこだわりたい

お客様ニーズへの自社の対応

 お客様は、過去にご自身の新築の注文住宅を建てられた

経験もおありで、ご希望は、細部に至り明確にありました。

 そのため、一つ一つのご希望を丁寧に実現していきました。

所在地
東京都豊島区
施工日数
3ヶ月
施工完了
2024年12月
物件種別
マンション
構造
鉄筋コンクリート造
面積
106m²
費用
2500万円(税込)(補助金等の制度活用:有)
居住者構成
ペット
わんちゃん1匹

この作品の事業者については、下記の事業者情報をご参照ください。(赤字のホームページURLをクリックすると、さらに詳しく確認いただけます!)

事業所情報

事業所名
株式会社リフォームプラザ小泉 荻窪店
所在地
東京都杉並区天沼3-8-1
営業エリア
都内・都下、神奈川、千葉、埼玉の東京隣接地域
営業時間
9:00~18:00
定休日
日曜日・祝日(夏季休業、年末年始休みあり)
電話番号 / FAX
03-3391-3881 / 03-3391-3884
対応物件
戸建,マンション
ホームページ
http://www.reform-plaza.com

お気軽にご相談ください。
会員に関する苦情についてもお受けいたします。

10:00~12:00、13:00~17:00
(夏季休暇・年末年始・土日・祝日は除く)