東京都 セダー建設株式会社 詳細

昭和の家から令和の家に

・旗竿地の奥地にある混構造の築50年の祖⺟の家(⼀⼾建て⼆階17坪、借地権、周りが家やマンションに囲まれ再建築不可物件のような気もします)があり賃貸に出していましたが、借主が出ていくためリフォームして暮らすことにしようかと考えています。今住むには時代に合っておらず、次の世代の私たち家族が住むためにフルリフォームをしたい。
・どの業者さんも難しい建物であることに難⾊を⽰していました。⼀階が37.19㎡、⼆階が35.12㎡と狭⼩住宅(駐⾞場は別の場所なので⾃転⾞が四台)です。
・年季が入っていて、子どもが怖がってお家に近づいてくれない。

こだわりポイント
BeforeもしくはAfter図面あり / こだわりキッチン / こだわりトイレ / こだわりバス空間(洗面含む) / 補助金等のリフォーム制度利用
リフォーム部分
リビングダイニング / 寝室・個室 / キッチン / バス / 洗面室 / トイレ / 屋根・外装・外構・造園等

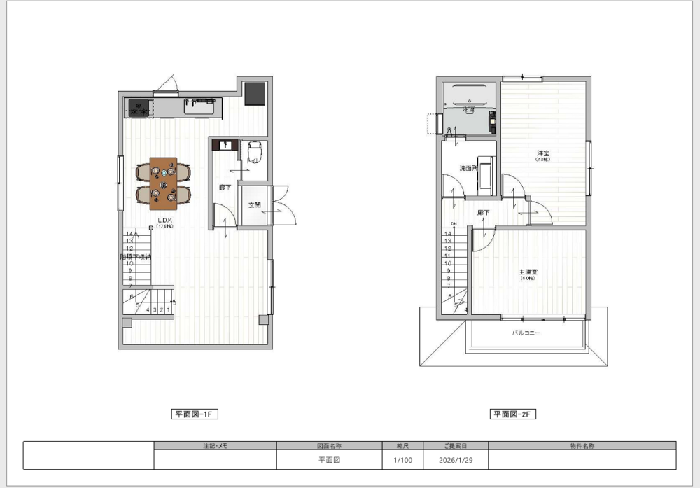
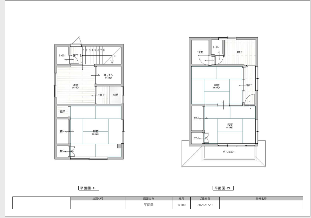
図面

1階を従来の間取りより広く見えるように提案しました

平面図
平面図

キッチン

ダイニングと繋がり、広くて使いやすいキッチンに

キッチン
システムキッチン

トイレ、洗面

昭和のトイレからオシャレなトイレに
すぐ横に手洗いも設置

トイレ
1階トイレ

洗面

階段そばの洗面台から浴室、洗濯機近くの場所に移し生活動線もより良くなりました。

独立洗面台
独立洗面台

浴室

スタイリッシュな浴室に

浴室
浴室

お客様のニーズ(リフォームへの要望)

・1Fは、お客さんを招待できるようになるべく広くスペースを確保したい
・洗⾯所が2箇所欲しい
・⼦供部屋をゆくゆくは、1⼈づつの部屋に分けたい
・収納スペースを確保したい

お客様ニーズへの自社の対応

築5 0 年のお家の改修工事のご依頼で、いわゆる昭和の作りをしたお家でした。
耐震補強はもちろんのこと、限られた空間の中で、
・いかにして開放感を出すか
・昭和の雰囲気を現代へどのようにバージョンアップさせるか
等々のご要望を盛り込んだ、いくつかのプランをご提案させていただきました。
平⾯の図⾯だけでなくパースや3Dで図⾯を作成してお客様にもなるべくイメージをしやすいように⼯夫しました。

リフォーム工事後のお客様の評価

私たちがカタチにしたい家への想いを汲み取ってくれて、どんどん素敵な家になっていくのを見て、家族で完成する日をワクワク待ち焦がれていました。
住んでみて主人ともセダーさんにお願いしてよかったね、と新しくなったダイニングでお酒を飲みながら話しています。
初めての家づくりでしたが、貴重な経験をセダーさんを通じてさせていただいた気がします。

所在地
東京都大田区
施工日数
4ヶ月
施工完了
2025年05月
物件種別
戸建
構造
木造
築年数
50年
面積
37.2m²
費用
2,000万円(税込)(補助金等の制度活用:有)
居住者構成

この作品の事業者については、下記の事業者情報をご参照ください。(赤字のホームページURLをクリックすると、さらに詳しく確認いただけます!)

事業所情報

大正10年創業、大田区上池台でリフォーム、新築工事を手掛けている工務店です。キッチン・バス・トイレ等の水まわり工事はもちろん、外壁・内装・耐震補強・全面改修工事などを得意としております。4名の建築士をはじめとする建物のプロ集団がお客様の悩みをひとつひとつ丁寧に解決いたします。 女性スタッフによる女性目線のご提案もできますので、お気軽にご相談ください。

事業所名
セダー建設株式会社
所在地
東京都大田区上池台3-18-1
営業エリア
東京都大田区、世田谷区、目黒区、品川区、港区
営業時間
9:00~18:00
定休日
第2・4土曜日、日曜日、祝日(夏季・年末年始休業あり)
電話番号 / FAX
0120-023-046 / 03-3729-8123
対応物件
戸建,マンション
ホームページ
http://www.danran-home.com/

お気軽にご相談ください。
会員に関する苦情についてもお受けいたします。

10:00~12:00、13:00~17:00
(夏季休暇・年末年始・土日・祝日は除く)