2025年度公開No.25049
家族集う暖かなリビング
紫のクロスが上品なリビング。和室と居間を一つにし解放感あふれるリビングへ
洗面所はカウンターに鏡を設置。忙しい朝の混雑を解消。
居室ごとに異なるアクセントクロスはお施主様のこだわりで洗練された空間に。
- こだわりポイント
- BeforeもしくはAfter図面あり / こだわりキッチン / こだわりトイレ / こだわりバス空間(洗面含む)
- リフォーム部分
- リビングダイニング / 寝室・個室 / キッチン / バス / 洗面室 / トイレ
キッチン
壁付けのキッチンから対面型に。キッチンから家族の様子が見えるようになった。
解体後
TOTO ザ・クラッソ
アーチ
職人技光るアーチ
施工前
施工後
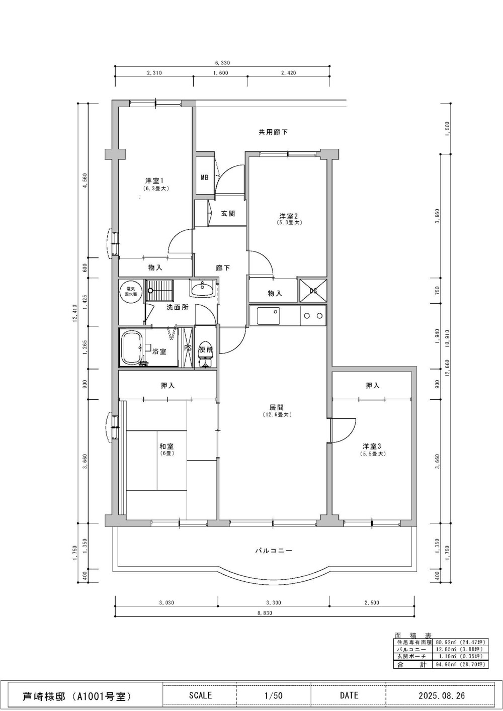
平面図
UB・トイレをLDK側に寄せ洗面所を広く使えるように。
キッチンにカップボード、リビング・トイレ・洗面所にニッチ収納を増やした。
改修前
改修後
- 所在地
- 千葉県千葉市稲毛区
- 施工日数
- 4ヶ月
- 施工完了
- 2026年01月
- 物件種別
- マンション
- 構造
- 鉄骨鉄筋コンクリート造
- 築年数
- 48年
- 費用
- 530万円(税込)(補助金等の制度活用:無)
- 居住者構成
-
この作品の事業者については、下記の事業者情報をご参照ください。(赤字のホームページURLをクリックすると、さらに詳しく確認いただけます!)
事業所情報
お客様との出会いを大切に。 お客様の貴重な財産であるお住まい造りを感謝の気持ちでお手伝いします。
この事業所の他の施工事例
-
2025
空間再構築 ― ケアの場から暮らしの場へ
- 物件種別
- 戸建
- 所在地
- 神奈川県横浜市
- 費用
- 3000万円(税込)
-
2025
明るい雰囲気に!賃貸のリフォーム
- 物件種別
- その他
- 築年数
- 41年
- 所在地
- 東京都中野区
- 費用
- 160万円(税込)
-
2024
使いやすさと美しさを兼ね備えたキッチンへ
- 物件種別
- 戸建
- 面積
- 25m²
- 所在地
- 東京都杉並区
- 費用
- 450万円(税込)
-
2024
水回りを一新!機能性とデザインを両立したリフォーム
- 物件種別
- 戸建
- 面積
- 7m²
- 所在地
- 東京都世田谷区
- 費用
- 450万円(税込)
-
2024
上質で落ち着きのあるトイレ空間
- 物件種別
- 戸建
- 築年数
- 30年
- 所在地
- 神奈川県横浜市
- 費用
- 70万円(税込)
-
2020
明るく広く清潔に!!親子3世代で楽しく使えるキッチン
- 物件種別
- 戸建
- 所在地
- 東京都新宿区
- 費用
- 300万円(税込)