東京都 有限会社幸商店 詳細

空間再構築 ― ケアの場から暮らしの場へ

デイサービスとして使われていた空間を、住まいとしてやさしく再構築しました。
間取りの広がりを活かしつつ、サッシ交換も行い、光や風をより心地よく取り込める住空間へ。
人に寄り添ってきた場所の記憶を、快適な暮らしの場へとつなぐリノベーションです。

こだわりポイント
BeforeもしくはAfter図面あり / こだわりキッチン / こだわりトイレ / こだわりバス空間(洗面含む) / 補助金等のリフォーム制度利用
リフォーム部分
リビングダイニング / 寝室・個室 / キッチン / バス / 洗面室 / トイレ

LDK

改修前の開放的な空間を生かすため、あえて寝室との間に壁を設けず、視線の抜けと奥行きを確保することで、のびやかなリビングとしました。
キッチンにはTOTOのクラッソを採用
クリスタルカウンターが柔らかな光をまとい、空間全体に上質でやさしい表情を与えています。

改修前
改修後

新設浴室

浴室にはTOTO シンラを採用。上質な質感と心地よさを備えた空間としながら、日々のお手入れ負担を軽減するため、あえて鏡や棚を設けないシンプルな仕様としました。
余計な凹凸をなくすことで清掃性を高め、すっきりとした美しい浴室空間を実現しています。

改修前
改修後

新設トイレ

トイレにはTOTO ネオレストLS2を採用。デザイン性と清掃性を兼ね備えた上質な空間としました。
将来のライフスタイルの変化を見据え、手すり設置を想定した下地補強を行うとともに、ドア開口幅を車いすでも通行可能な寸法へと拡張。
長く安心して暮らせる環境づくりに配慮しています。

改修前
改修後

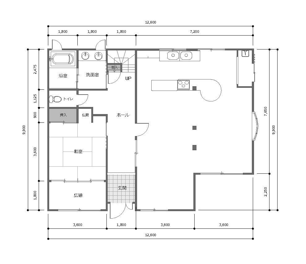
平面図

1階のほとんどをデイサービスとして利用していた戸建住宅を、二世帯家族が暮らす住まいへと再生しました。
今回は、これまでデイサービスとして使用されていた空間を中心に、生活空間への改修工事を行いました。

既存図面
改修図面

お客様のニーズ(リフォームへの要望)

・将来の身体状況の変化にも対応できる住まいにしたい
・断熱性・開口部性能を向上させ、より心地よい室内環境にしたい

お客様ニーズへの自社の対応

・将来の身体状況の変化を見据え、手すり設置を想定した下地補強や、車いすでも通行可能な開口幅・建具変更など可変性を持たせた設計とした。
・サッシ交換により開口部性能を向上させ、断熱性・気密性を改善。外気の影響を抑え、年間を通して快適に過ごせる室内環境を実現した

所在地
神奈川県横浜市
施工日数
60日
施工完了
2025年11月
物件種別
戸建
費用
3000万円(税込)(補助金等の制度活用:有)
居住者構成

この作品の事業者については、下記の事業者情報をご参照ください。(赤字のホームページURLをクリックすると、さらに詳しく確認いただけます!)

事業所情報

お客様との出会いを大切に。 お客様の貴重な財産であるお住まい造りを感謝の気持ちでお手伝いします。

事業所名
有限会社幸商店
所在地
東京都杉並区和泉1-35-14  TOYTOMI‐Ⅱ-301
営業エリア
東京都全域、神奈川県全域、埼玉県全域、千葉県全域
営業時間
9:00~18:00
定休日
日曜日、祝日
電話番号 / FAX
03-3327-3376 / 03-3325-2168
対応物件
戸建,マンション
ホームページ
http://sachy.co.jp/

お気軽にご相談ください。
会員に関する苦情についてもお受けいたします。

10:00~12:00、13:00~17:00
(夏季休暇・年末年始・土日・祝日は除く)