栃木県 株式会社柿沼システムサービス 詳細

使うたびに嬉しくなる、もっと良い未来へ

宇都宮市の閑静な住宅街に佇むお宅。数年前に浴室と洗面所のリフォームをご依頼いただき、今回はキッチンリフォームをお任せいただきました。
「まだ壊れてはいないけれど、これから何年このキッチンと向き合うのだろう」
ご年齢を踏まえ、壊れてからではなく“これからの暮らし”を見据えて先手を打つ——そんな真剣な想いでリフォームに向き合われたお客様の物語です。


こだわりポイント
BeforeもしくはAfter図面あり / こだわりキッチン / プロとしてのアイデア
リフォーム部分
キッチン

音も控えめ、好印象。見えないほどに溶け込む食洗機

お客様がリフォームをご検討されていた当時は、間口600mm・約160Lサイズの食洗機が主流。
しかし、お二人の暮らしには大きすぎると感じられ、450mm幅の日本製フロントオープン型食洗機をご希望でした。
そんな中、満を持してTOTOがお客様のご希望の型を新商品としてラインナップに加えたことで、ご希望に沿う形となり、選択の決め手となりました。

食洗機の音問題。ストレス抱えてお蔵入り
まさに「待てば海路の日和あり」。三段すべてに羽が付いた食洗機

ディスプレイはここだけに。メリハリのあるゾーニングで美しく

当初は背面のアイレベルゾーンに中が見えるガラス扉の収納を希望されていました。断捨離を進める中で見せたい物を選び抜いたことで飾る小物が少なくなり、扉はなくても十分と判断され、結果としてオープンシェルフを選ばれました。
背面カウンターの下には吟味したごみ箱を入れ、蓋が干渉しないように高さを90cmに設定。
お気に入りの調理家電のサイズや動線を考慮して、奥行きは550mmをオーダーされました。

「高い位置の収納」日常的には活かしにくいのが実情
間接照明は必須アイテム。満足を超える体験へと導く光

「氷に頼らない冷たい水」温度管理はスマホでスマートに

水栓選びの新基準 ― 「LIXIL グリーン タップ」
昔から日本には「水が合う・合わない」という表現があるように、“どこで、誰と、どのように暮らすか”はとても大切です。
生活環境を水に例えるほど、繊細な感覚を持っています。
水質や味わいにも自然とこだわり、より良いものを選び抜く文化があるからこそ、水まわり設備にも高い品質や使い心地が求められるのかもしれません。

美味しい水道水に恵まれた宇都宮だからこそ、次の一歩を
「健康は暮らしの環境から」デザインだけではない水栓選び

「主役を引き立てるキーパーソン」便利のその先へ、未来へアップデート

近年支持が広がっているペニンシュラキッチンに合わせ、レンジフードもスタイリッシュなタイプに交換。
お客様はHP・SNS等で100本以上の動画見比べ、形状・カラー・ファン性能の観点から富士工業製品を選定。
高速回転ディスクが遠心力で油を分離し、その大半をオイルガードで受け止める仕様により、ファンやレンジフード内部が汚れにくい構造。機械に詳しいご主人のお眼鏡にかなった一台です。

主張の強いレンジフードこそデザイン性も課題に
“控えめ”な存在が美しさを語るレンジフード

フラット天板が叶える!しなやかな動きと、料理・配膳の同時進行

今までは、カウンターと作業スペースに段差があり、カウンターで食事や書き物をするには少し手狭でした。
その結果、書類や小物の一時置き場となり、飾りたいもの・作業中のもの・一時置きのものが混在し、用途が中途半端になっていました。
幅970のフルフラット天板にしたことで大鍋も置け、多様性を備えた使い勝手へと進化しました。Cooking and serving at the same time!



床を少し掘って据え置かれていたキッチン
淀みのない動きが、空気をも軽くする、フラットな「第二のダイニング」

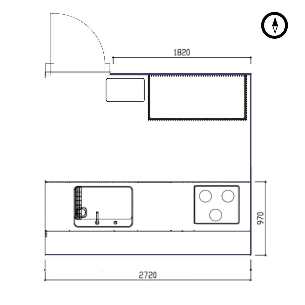
平面図

北側のドアの向こうに大きな収納庫があり、キッチンの対面にダイニングが続き、小上りの畳がある使いやすい間取り。
既存の間取りを生かしたリノベーションで、キッチンの魅力を最大限に。

もともと使い勝手の良い間取り
暮らしやすさはそのまま残して

お客様のニーズ(リフォームへの要望)

①別途手配の設備等も、柔軟に組み込んでほしい。
②静音性も重視し、レンジフード・食洗機・水流音など、生活音に対する遮音性能を高めたい。
③キッチンに収まりきらない食材や食器類はキッチン脇の大きなパントリーに。背面は“見せる収納”として楽しめるよう、壁をふかして間接照明を仕込みたい。
④一人が作業しているとき、もう一人がそばに来ても、お互いが無理なく心地よい距離感を保てるようにしたい。
⑤旅行が趣味のため、遠方であっても旅の一部として楽しみながらショールームを巡り、実物を見て触れてから納得して選びたい。

お客様ニーズへの自社の対応

・5人家族からおふたりの暮らしになると、リフォームはミニマルに向かいがちですが、今回はあえてこれまでと同じスケールに。その大きさを忘れさせるほど控えめな佇まいです。暮らしに必要な“ゆとり”は、数字では測れません。

・オーダーまで視野に入れるほど、理想のキッチンへのこだわりを大切にされていたお客様。 “妥協はできない”という思いのもと、長い月日をかけ、決して急がず、じっくりと検討を重ねてこられた姿勢に共感しつつ、お客様のタイミングを第一に考え、大切に見守ってきました。

リフォーム工事後のお客様の評価

普段は買わないような花も手に取るようになり、白い棚に一輪飾るのが日課になりました。 以前はキッチンに立つのが億劫でしたが、今では楽しみに。白くて大きなクリスタルカウンターが、レフ版のように室内だけでなく気持ちまでも明るく照らしてくれて、毎日がわくわくで満たされています。このリフォームを通して、健康で幸せに暮らしていくためには、お互いの正直な気持ちを言葉にしていく勇気が大切なのだと気づかせてくれました。

所在地
栃木県宇都宮市
施工日数
9日
施工完了
2025年10月
物件種別
戸建
構造
木造
築年数
20年
費用
368万円(税込)(補助金等の制度活用:無)
居住者構成

この作品の事業者については、下記の事業者情報をご参照ください。(赤字のホームページURLをクリックすると、さらに詳しく確認いただけます!)

事業所情報

当社がご提供する3つの安心 ①昭和47年創業の長い実績 ②自社スタッフがしっかりと施工するので、見えない所も手抜き工事はしません! ③主婦歴20年以上の女性スタッフが、最初から最後まで対応するので安心です。

事業所名
株式会社柿沼システムサービス
所在地
栃木県宇都宮市上戸祭4-14-16
営業エリア
宇都宮市・鹿沼市
営業時間
10:00~17:00
定休日
土・日・祝日 夏季・年末年始休業
電話番号 / FAX
028-624-9371 / 028-624-9372
対応物件
戸建,マンション
ホームページ
http://kaki-ss.jp/

お気軽にご相談ください。
会員に関する苦情についてもお受けいたします。

10:00~12:00、13:00~17:00
(夏季休暇・年末年始・土日・祝日は除く)