愛知県 カナルリフォーム岡崎北店 詳細

光と素材で紡ぐ、多層の美容複合施設

美容師とネイリスト夫婦の3階建て中古物件を、1階に美容院、2階にネイルサロンを開業するためリフォーム。プライベート空間と店舗の動線を明確に分け、1階受付にはモールテックスを採用。全体を白で統一し清潔感を演出し、愛犬との生活に配慮した床材も取り入れた。

こだわりポイント
BeforeもしくはAfter図面あり / こだわりキッチン / その他 / インテリア / プロとしてのアイデア / ライフスタイルの変化提案 / 新しい生活様式提案 / 補助金等のリフォーム制度利用
リフォーム部分
リビングダイニング / 寝室・個室 / キッチン / 洗面室 / トイレ

1階美容室

既存の大きな窓から入り込む自然光がポイント。
壁も白の塗装で統一感を出しています。
照明にもこだわり上品で洗練された空間に仕上がりました。

2階サロン

元々一つだったお部屋をサロンスペースとリビングの二部屋に。
光を取り入れることができるように既存の窓の大きさのまま使用しています。

1階店舗受付

店舗の素材感にこだわり、独特の質感を持つモールテックスの造作カウンターを設置しています。

2階LDK

空間を明るく広く見せるため、住居全体を清潔感のある白色で統一しています。

洗面室

洗面台も白色を使用した造作洗面台。
清潔感のある空間にしています。

ペット対応フローリング

愛犬との暮らしのため、滑りにくいペット用床材を採用するなど、細部にまでこだわりが詰まっています。

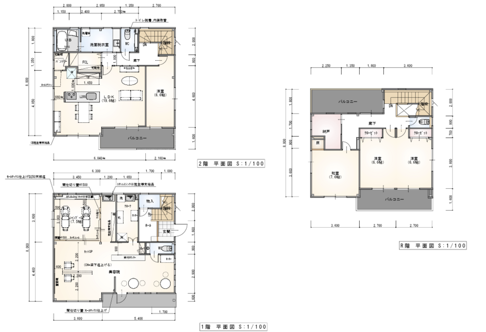
図面

1階玄関からすぐ2階への階段を設けることで、店舗と居住空間の動線を明確に分離しています。

2階は南側の大きなテラスと開口部により、明るく開放的なLDKを実現しました。

また、2階北側に大型収納、1階中央に作業カウンターと背面収納を配置することで、店舗・住居ともに生活感を抑え、常に整頓された状態を保てる設計となっています。

お客様のニーズ(リフォームへの要望)

①素材感へのこだわり: 自然素材や質感のある素材を積極的に採用したい。特に1階の店舗スペースは、お客様に印象を与える空間にしたい。

②プライベートと店舗の分離: 住居スペースと店舗スペースを明確に分け、それぞれの動線を確保したい。仕事とプライベートを切り替えられるようにしたい。

③採光: 建物全体に自然光を取り入れたい。特に2階の住居スペースは、明るく開放的な空間にしたい。

④収納: 収納スペースを増やし、生活感を出さないようにしたい。店舗スペースも同様に、お客様に見える場所は常に整理整頓された状態を保ちたい。

⑤ペット: ペット(種類は未定)も一緒に暮らすため、ペットに優しい素材や工夫を取り入れたい。

お客様ニーズへの自社の対応

①清潔感のある白色: 全体的に白を基調とし、清潔感のある空間とする。受付カウンターにモールテックスを使用し、壁は塗装で仕上げることで、素材感を強調した空間を創出する。

②玄関: ネイルサロンのお客様も通るため、清潔感があり、かつ入りやすい空間とする。

③店舗スペース: 間仕切りを最小限に抑え、開放的な空間とする。
 住居スペース:大きな窓を設け、自然光を最大限に取り入れる。

④収納:造り付けの収納を増やし、見せる収納と隠す収納を組み合わせる。

⑤ペット用フローリング: ペットの足腰に負担がかかりにくいフローリング材を選ぶ。

リフォーム工事後のお客様の評価

リフォームしたことによって、ペットも過ごしやすい住まいになりました。リフォーム後、ペットが1匹増えました。

所在地
愛知県岡崎市
施工日数
4ヶ月
施工完了
2024年03月
物件種別
戸建
構造
鉄骨造
築年数
33年
面積
216m²
費用
1770万円(税込)(補助金等の制度活用:有)
居住者構成
ペット
2匹

この作品の事業者については、下記の事業者情報をご参照ください。(赤字のホームページURLをクリックすると、さらに詳しく確認いただけます!)

事業所情報

注文住宅からリフォームまでを総合的に扱ってきた当社のスタッフは、全員が住宅の隅ずみまでを知り尽くしたプロフェッショナルです。地域密着で事業を行ってきた経験を活かし、他のリフォーム会社には真似できない、地域のお客様のとってより良い住まいを追求したご提案をさせていただきます。

事業所名
カナルリフォーム岡崎北店
所在地
愛知県岡崎市伊賀町字7―71
営業エリア
岡崎市、安城市、豊田市
営業時間
10:00~17:00
定休日
年中無休(年末年始・GW・夏季休業除く)
電話番号 / FAX
0564-65-8155 / 0564-65-8156
対応物件
戸建,マンション
ホームページ
https://kanal-refdorm.jp/

お気軽にご相談ください。
会員に関する苦情についてもお受けいたします。

10:00~12:00、13:00~17:00
(夏季休暇・年末年始・土日・祝日は除く)