愛知県 カナルリフォーム岡崎北店 詳細

猫と心地よく暮らす「回遊スタイリッシュ」リノベ

中古マンションを購入し、ご自身のライフスタイルに合わせて間取りを再構築。家事動線の効率化を図る一方で、愛猫ものびのびと暮らせるペット共生デザインを採用しました。 グレー×ウォルナットで統一された内装が、日々の生活にホテルライクな落ち着きを与えます。 機能性と意匠性を両立し、ゆとりある時間と上質な空間を創出したリノベーションです。

こだわりポイント
BeforeもしくはAfter図面あり / こだわりキッチン / こだわりトイレ / こだわりバス空間(洗面含む) / インテリア / プロとしてのアイデア / ライフスタイルの変化提案 / 新しい生活様式提案 / 補助金等のリフォーム制度利用
リフォーム部分
リビングダイニング / 寝室・個室 / キッチン / バス / 洗面室 / トイレ

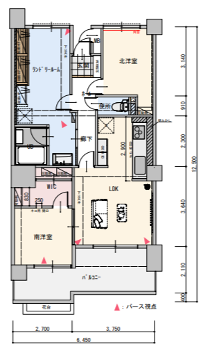
洋室をランドリールームへコンバージョン

北側の洋室を洗面脱衣所から直結する広々としたランドリールームへ。
洗濯・乾燥・アイロン掛け・収納までを一箇所で完結させ、毎日の家事ルーティンを圧倒的に効率化しました。

住宅設備の取替

キッチン、浴室、洗面、トイレといった全ての住宅設備機器を取替。 中古マンション特有の経年劣化不安を解消するだけでなく、最新の機能を取り入れることで、日々のメンテナンス負担を大幅に軽減しました 。キッチンは収納を増やせるようにL型からI型へ変更し、カップボードを新設しました。

ペットデザイン

壁に猫専用のキャット・トンネルを設けることで、建具を閉めた状態でも愛猫が家中を自由に、気兼ねなくパトロールできる設計としました。

内窓

中古マンション特有の悩みを解消するため、北側の洋室には内窓を新設。断熱・防音性能を高めることで、静かで心地よいプライベート空間を実現しています。

図面

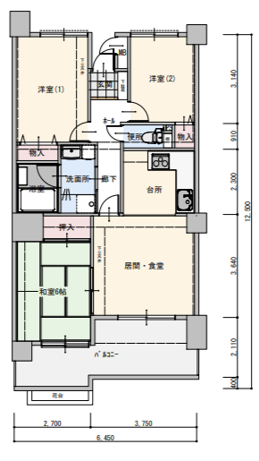
元々の和室を洋室化してリビングと一体化させ、新たにWIC(ウォークインクローゼット)を介した回遊動線を構築することで、現代のライフスタイルにフィットする高い利便性 を追求しました。
WIC内の可動棚には、日用品が愛猫に乱されるのを防ぐためあえて建具を取り付け、生活感を隠して室内を常に美しく保てるよう配慮しています。
さらに、既存の洋室(1)と洗面所を大胆に統合してゆとりある広さのランドリールームを創出し、家事負担を大幅に軽減する計画としました。

お客様のニーズ(リフォームへの要望)

①ペット(愛猫)との共生とストレスフリーな環境
②洗濯などの家事負担を減らすための専用スペースが欲しい
③中古マンションを、自分好みのスタイリッシュな内装(グレー×ウォルナット)に一新

お客様ニーズへの自社の対応

①既存の洋室と洗面所を統合した広々としたランドリールームは、「洗う・干す・畳む」の工程を1箇所で完結させ、家事負担を大幅に軽減しました。
②建具を閉めた状態でも猫穴を設けて、ストレスなく行き来できるスペースの計画をしました。
③内装は「グレー×ウォルナット」の配色で統一され、ホテルライクな落ち着きを感じさせる意匠性を実現しています。

所在地
愛知県西尾市
施工日数
6ヶ月
施工完了
2025年10月
物件種別
マンション
構造
鉄筋コンクリート造
築年数
33年
面積
65m²
費用
700万円(税込)(補助金等の制度活用:有)
居住者構成
ペット
1匹

この作品の事業者については、下記の事業者情報をご参照ください。(赤字のホームページURLをクリックすると、さらに詳しく確認いただけます!)

事業所情報

注文住宅からリフォームまでを総合的に扱ってきた当社のスタッフは、全員が住宅の隅ずみまでを知り尽くしたプロフェッショナルです。地域密着で事業を行ってきた経験を活かし、他のリフォーム会社には真似できない、地域のお客様のとってより良い住まいを追求したご提案をさせていただきます。

事業所名
カナルリフォーム岡崎北店
所在地
愛知県岡崎市伊賀町字7―71
営業エリア
岡崎市、安城市、豊田市
営業時間
10:00~17:00
定休日
年中無休(年末年始・GW・夏季休業除く)
電話番号 / FAX
0564-65-8155 / 0564-65-8156
対応物件
戸建,マンション
ホームページ
https://kanal-refdorm.jp/

お気軽にご相談ください。
会員に関する苦情についてもお受けいたします。

10:00~12:00、13:00~17:00
(夏季休暇・年末年始・土日・祝日は除く)