東京都 JSKリフォーム 詳細

受け継いだ家を、安心して暮らせる住まいへ

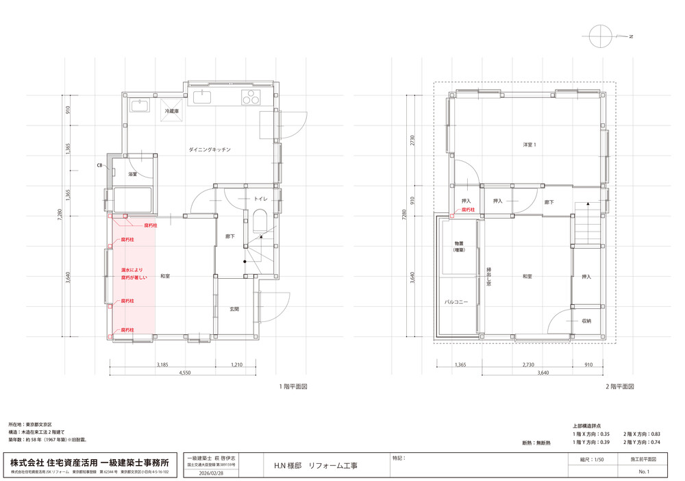
お母さまから受け継いだ住まいは、漏水により梁や柱が腐朽し、無断熱・壁量不足の状態でした。通学路に接する立地でもあり、安全性の確保を最優先に計画。構造計算により耐震等級3相当(1.5倍以上)を確保し、断熱等級5、C値0.97を達成。性能へ集中投資し、安心して住み続けられる家へ再構築しました。

こだわりポイント
BeforeもしくはAfter図面あり / インフィルリフォーム / グリーン化・SDGs達成(断熱・耐震含む) / プロとしてのアイデア / ライフスタイルの変化提案 / 新しい生活様式提案 / 補助金等のリフォーム制度利用
リフォーム部分
リビングダイニング / 寝室・個室 / キッチン

リビング

もともと和室だったバルコニー下部分は、漏水により梁や柱の腐朽が進んでいました。柱の交換と梁補強を行い、バルコニーはFRP防水で再施工。安心して過ごせるリビングへ再生しました。

リビングとダイニングを繋ぎ、連続性のある間取りに

和室をフローリングの洋間へ変更し、リビングとダイニングを連続させました。構造補強と両立させながら、回遊性のある動線を確保し、一体的に使える空間へ再構成しました。

室内建具も見直し、ライフスタイルに合ったデザインに

既存の和風建具を整理し、開口寸法や納まりを見直しました。引き戸へ変更することで動線を妨げず、空間に連続性を持たせながら、ライフスタイルに合った仕様へ整えました。

2階洋室 ― 景色を取り込みながら断熱性能を向上

道路を挟んで見える小学校の植栽を取り込む位置に窓を再配置。開口寸法を最適化し、高断熱樹脂窓へ交換することで、眺望と断熱性能を両立しました。

2階和室を洋室へ ― 可変性のある空間へ再構成

2階和室を洋室へ変更し、手前の和室と奥の洋室のデザインを統一。引違い戸を外せば一体利用できる構成とし、将来の使い方にも対応できる可変性を持たせました。

外観 ― 構造合理化と外装更新

外壁はガルバリウム鋼板によるカバー工法とし、耐久性を向上。出窓を撤去し柱で受ける構成へ改修することで、外装更新と同時に耐震性にも配慮しました。

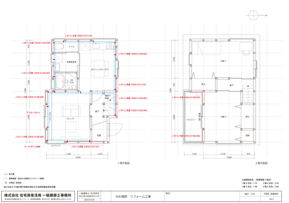
柱梁交換 ― 漏水部の軸組再生

漏水により腐朽していた柱や梁を撤去し、軸組を組み直しました。傷んでいた構造を健全な状態へ整え、建物本来の耐力を回復させました。

基礎補強 ― 無筋基礎の構造改善

無筋の布基礎に鉄筋コンクリート基礎を抱き合わせる補強を実施。あわせて土間を防湿コンクリートで施工し、構造の安定性と床下環境を改善しました。

平面図比較 ― 耐力壁の再配置

十分な耐力壁がなく構造計画から再構成。新たに耐力壁をバランス良く配置し、上部構造評点を大幅に改善しました。

断熱性能の向上 ― UA値0.49(断熱等級5)、C値0.97

外皮性能を見直し、天井・壁・床の断熱施工を実施。UA値0.49、C値0.97を達成し、断熱等級5の性能を確保しました。

お客様のニーズ(リフォームへの要望)

・地震への不安を解消したい
・受け継いだ住まいに安心して住み続けたい
・冬の寒さを改善したい
・光熱費を抑えたい
・予算内で最大限の改善をしたい

お客様ニーズへの自社の対応

・腐朽柱の交換および梁補強、基礎増し打ちによる構造健全化
・耐震等級3相当(上部構造評点1.5以上)を構造計算により確保
・外皮計算に基づき断熱等級5を実現
・気密測定によりC値0.97を確認
・性能優先の予算配分計画を実施

リフォーム工事後のお客様の評価

提案力について:狭い土地で利用に制限があったので、リフォームに満足しています。
コミュニケーション力について:質問にはすぐに答えてもらい、良かったと思います。
価格について:予算に近い価格で助かりました。
仕上がりについて:満足しています。

総評:リフォーム前の状態がかなりひどかったので、完成した状況には納得しています。

所在地
東京都文京区
施工日数
4ヶ月
施工完了
2025年12月
物件種別
戸建
構造
木造
築年数
58年
面積
62.34m²
費用
2,251万円(税込)(補助金等の制度活用:有)
居住者構成
ペット

この作品の事業者については、下記の事業者情報をご参照ください。(赤字のホームページURLをクリックすると、さらに詳しく確認いただけます!)

事業所情報

住宅の性能を向上させる目的で行うリフォームを「住宅性能向上リフォーム」と言います。「住宅」のJ、「性能」のS、「向上」のKの頭文字をとって「JSKリフォーム」と名付けました。住まいの性能を向上させて、快適で、安心、安全な暮らしを実現しませんか?

事業所名
JSKリフォーム
所在地
東京都文京区小日向4-5-16 ツインヒルズ茗荷谷102
営業エリア
東京23区
営業時間
10:00~19:00
定休日
日曜・祝日
電話番号 / FAX
03-3943-0561 / 03-3943-0680
対応物件
戸建,マンション
ホームページ
https://www.jsk-reform.com

お気軽にご相談ください。
会員に関する苦情についてもお受けいたします。

10:00~12:00、13:00~17:00
(夏季休暇・年末年始・土日・祝日は除く)