長野県 有限会社恵夢住宅設計室 詳細

住まいの中心に火を灯す  店舗から住宅へ、暮らしを再構築

かつて飲食店として使われていた建物を、家族の暮らしを包み込む住宅へとリフォームしました。
住まいの中心には暖炉を備えたリビングを配置し、その周囲を囲むように各私室をレイアウト。
店舗特有の広がりある空間を活かしながら、家族が自然と集まり、緩やかにつながる住空間を構成しています。
外観は用途変更に合わせてデザインを一新し、住宅としての佇まいと街並みとの調和を両立。
用途・空間・意匠を総合的に再構築したリフォーム事例です。

こだわりポイント
BeforeもしくはAfter図面あり / こだわりキッチン / こだわりトイレ / こだわりバス空間(洗面含む) / インテリア / エクステリア / プロとしてのアイデア / 補助金等のリフォーム制度利用
リフォーム部分
リビングダイニング / 寝室・個室 / キッチン / バス / 洗面室 / トイレ / 屋根・外装・外構・造園等

用途を感じさせない佇まいへ

飲食店として使われていた建物の外観を、住宅用途にふさわしい佇まいへと刷新しました。
看板的要素の強かったファサードを整理し、色調と素材を統一することで落ち着きのある外観に再構成。
開口部や玄関まわりも住宅スケールに整え、周辺環境と調和するデザインとしています。
用途変更を感じさせない外観リフォームにより、建物の印象が大きく変わりました。

店舗内部の住空間化リフォーム

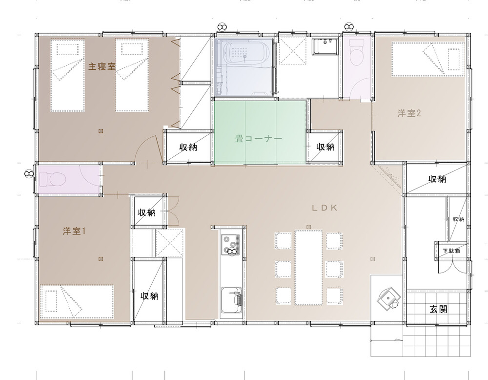
暖炉を備えたリビングを住まいの中心に据え、家族が自然と集まる空間を計画しました。火のぬくもりを感じながら過ごせる居場所として、周囲の空間と緩やかにつながる、暮らしの核となるリビングです。

家族が集う平面計画

広がりのある店舗空間を活かし、家族が自然と集まるリビングを核に、各居室や水まわりを配置しました。
それぞれの時間を大切にしながらも、ほどよくつながる暮らしを実現しています。

限られた空間に和室空間を

リビング横のスペースに畳コーナーを作りました。
襖で間仕切ることもでき、客間として利用することも可能です。

暖炉を設置して、温かいリビングへ

リビングを見渡せる場所に暖炉を設置します。壁にはアクセントとなるタイルを貼りました。

お客様のニーズ(リフォームへの要望)

飲食店として使われていた建物を、家族が安心して暮らせる住宅へと用途変更したい
暖炉のあるリビングを住まいの中心とし、家族が集まれる空間にしたい
各居室は適度な距離感を保ちつつ配置したい
店舗特有の印象をなくし、住宅として自然な外観デザインにしたい
明るく開放感のある住空間にしたい

お客様ニーズへの自社の対応

用途変更に伴う法規・構造を整理し、飲食店から住宅への無理のないプランを提案
暖炉を中心に据えたLDKを計画し、家族が自然と集まる空間構成を実現
リビングを核に各居室を配置し、プライバシーと一体感のバランスに配慮
外観は色調・形状を整理し、住宅として街並みに調和するデザインへ刷新
既存構造や空間を活かしながら、採光・動線・居住性を高めるリフォームを実施

リフォーム工事後のお客様の評価

飲食店として使っていた建物を住まいにできるのか不安もありましたが、暖炉のあるリビングを中心にした提案で、想像以上に落ち着いた暮らしが実現しました。家族が自然と集まる空間になり、店舗だった面影を感じさせない点にも満足しています。外観も住宅らしく整い、安心して長く住める家になりました。

所在地
長野県高森町
施工日数
3ヶ月
施工完了
2025年02月
物件種別
戸建
構造
木造
面積
100.61m²
費用
2,400万円(税込)(補助金等の制度活用:有)
居住者構成

この作品の事業者については、下記の事業者情報をご参照ください。(赤字のホームページURLをクリックすると、さらに詳しく確認いただけます!)

事業所情報

私たちはひとりひとりのお客様から心からのありがとうの言葉を頂き、その言葉で働く仲間皆が輝きながら仕事が出来る様頑張っています。

事業所名
有限会社恵夢住宅設計室
所在地
長野県飯田市中村78-9
営業エリア
飯田・下伊那全域のうち、車の移動40分以内エリア
営業時間
8:00~20:00
定休日
無休(年末年始・GW以外)
電話番号 / FAX
0265-25-5561 / 0265-48-0586
対応物件
戸建
ホームページ
http://www.em-house.com/

お気軽にご相談ください。
会員に関する苦情についてもお受けいたします。

10:00~12:00、13:00~17:00
(夏季休暇・年末年始・土日・祝日は除く)