長野県 有限会社恵夢住宅設計室 詳細

地方移住を支える、手仕事の空き家再生リフォーム

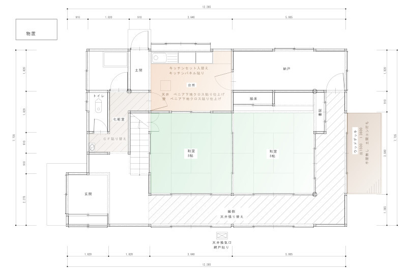
地方移住をきっかけに活用されることとなった、空き家バンク登録住宅のリフォーム事例です。限られた予算の中で、既存建物を活かしながら必要な部分を重点的に改修しました。キッチンは設備の入れ替えに加え、吊戸棚を自社社員の手作業による造作とし、収納力と空間への馴染みを両立。洗面も同様に造作で仕上げ、使い勝手と温かみのある表情を持たせています。また、傷みが進んでいた広縁の天井を修理し、自然光を取り込む心地よい空間を再生。地方での新しい暮らしに寄り添う、実践的なリフォームとなりました。

こだわりポイント
BeforeもしくはAfter図面あり / こだわりキッチン / インテリア / エクステリア / プロとしてのアイデア / ライフスタイルの変化提案 / 補助金等のリフォーム制度利用
リフォーム部分
キッチン / 洗面室 / その他

レトロを楽しむ、手仕事キッチン

既存の雰囲気を大切にしながら、レトロなデザインのブロックキッチンへ入れ替えを行いました。吊戸棚は弊社社員による手作りの造作で、空間に温かみをプラス。天井には木目調クロスを採用し、こだわりのレトロかわいいペンダント照明がやさしく空間を照らします。限られた予算の中で、個性と暮らしやすさを両立したキッチンです。

こだわりを形にした、手作り洗面台

既存の洗面台はサイズが大きく、トイレへの動線をふさいでいたため、使い勝手の改善を目的に改修を行いました。お客様がこだわって選ばれた洗面ボールと蛇口を活かし、弊社社員による手作りの造作洗面台を製作。空間に合わせた寸法とし、動線と使いやすさを確保しています。低予算での計画のため、あえて手作りならではの素朴な表情を残した仕上がりとしました。床にはヘリボーン調のクッションフロアを採用し、さりげないデザイン性をプラスしました。

南面に設けた、ウッドデッキ

日の当たる南面に、約1300×1500㎜のコンパクトなウッドデッキを新設しました。広い庭に面した位置とし、室内と屋外を緩やかにつなぐ中間的な空間として計画しています。洗濯物を干す実用的な場としてはもちろん、季節の良い時期には腰掛けて過ごすリラックススペースとしても活用可能です。素材にはリウッドデッキを採用し、木の風合いを感じながらも耐久性とメンテナンス性に配慮しました。

地方移住のための住まい再生

限られた予算の中で、動線や寸法を見直し、日常で支障のあった部分を重点的に改修。キッチンや洗面は造作を取り入れ、空間に合わせた無理のない計画としています。また、南面には庭とつながるウッドデッキを設け、室内外の使い方に幅を持たせました。図面と合わせて、部分的な改修でも住まい全体の快適性を高められることを示したリフォーム事例です。

お客様のニーズ(リフォームへの要望)

地方移住後の暮らしに合うよう、空き家を無理のない予算で住みやすく整えたい
老朽化や使いにくさのある水まわりを改善し、日常動線をスムーズにしたい
既製品だけに頼らず、空間に合った造作で温かみのある住まいにしたい
レトロな雰囲気や素材感など、好みのデザインを暮らしに取り入れたい
庭や外部空間も活用し、屋内外をつなぐ暮らし方を楽しみたい

お客様ニーズへの自社の対応

事前調査とヒアリングを行い、必要な改修箇所を整理したうえで、限られた予算内で優先順位を付けた計画を提案
動線や寸法を見直し、水まわりを中心に使い勝手の改善を図った
キッチンの吊戸棚や洗面台は既製品を使わず、空間に合わせて自社社員が造作し、無駄のない納まりを実現
レトロなキッチンや照明など、施主の好みを尊重しながら、全体の雰囲気に調和するデザインとした
南面の庭に面してウッドデッキを設置し、洗濯やくつろぎに使える外部空間を計画し、暮らしの幅を広げた

リフォーム工事後のお客様の評価

限られた予算の中で、これからの暮らしを見据えた提案をしていただけたことが心強く感じました。使いにくかった水まわりも動線を考えて整えてもらい、生活のイメージがしやすくなりました。手作りの洗面やキッチンの雰囲気も気に入っており、庭を眺めながら、この家でどんな時間を過ごしていこうかと考えるのが楽しみです。

所在地
長野県飯田市
施工日数
21日
施工完了
2025年12月
物件種別
戸建
構造
木造
面積
50m²
費用
150万円(税込)(補助金等の制度活用:有)
居住者構成

この作品の事業者については、下記の事業者情報をご参照ください。(赤字のホームページURLをクリックすると、さらに詳しく確認いただけます!)

事業所情報

私たちはひとりひとりのお客様から心からのありがとうの言葉を頂き、その言葉で働く仲間皆が輝きながら仕事が出来る様頑張っています。

事業所名
有限会社恵夢住宅設計室
所在地
長野県飯田市中村78-9
営業エリア
飯田・下伊那全域のうち、車の移動40分以内エリア
営業時間
8:00~20:00
定休日
無休(年末年始・GW以外)
電話番号 / FAX
0265-25-5561 / 0265-48-0586
対応物件
戸建
ホームページ
http://www.em-house.com/

お気軽にご相談ください。
会員に関する苦情についてもお受けいたします。

10:00~12:00、13:00~17:00
(夏季休暇・年末年始・土日・祝日は除く)