長野県 有限会社恵夢住宅設計室 詳細

将来を見据えた、可変性のあるモダン和室

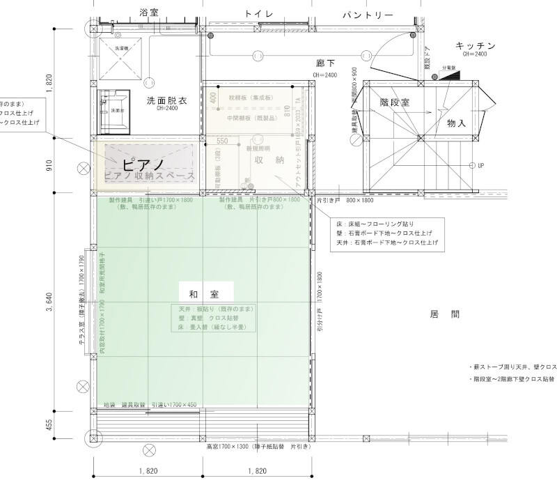
既存の和室を、写真のように落ち着きのあるモダンな内装へと刷新しました。将来はご夫婦の寝室として使用しつつ、現在は客間としても対応できるよう、柔軟な空間構成としています。奥様のピアノは使われていなかった押し入れを改修し、専用スペースを確保。必要な時に使え、普段は空間になじむ計画としました。また物置化していた廊下は奥の押し入れと一体化し、収納量を大幅に増加。今と将来、双方の暮らしに寄り添う和室リフォームです。

こだわりポイント
BeforeもしくはAfter図面あり / インテリア / ライフスタイルの変化提案
リフォーム部分
寝室・個室 / その他

暮らしの変化に応える和室

既存の和室を、素材感を活かした落ち着きのあるモダンな空間へとリフォームしました。現在は客間として、将来はご夫婦の寝室として使えるよう、用途を限定しないシンプルな設えとしています。奥様のピアノは押し入れを改修して専用スペースを確保し、使わない時は空間になじむ工夫を施しました。廊下と一体化した収納計画により、機能性と美しさを両立しています。

動線を整え、量を生む一坪収納

物置化していた廊下と奥の押し入れを見直し、一体化することで一坪分の大容量収納へと再構成しました。通路としての役割を保ちながら、季節物や日用品を無理なく収められる計画としています。使いにくさの原因だった動線を整理し、収納量と使い勝手を同時に向上しました。

暮らしの動線と収納を再編した平面計画

物置化していた廊下と押し入れを整理・統合し、動線を保ちながら収納量を最大化した平面計画です。和室は将来の寝室利用も見据え、用途の変化に柔軟に対応できる構成としました。

お客様のニーズ(リフォームへの要望)

物置状態になっている廊下と押し入れを有効活用したい
収納量を増やし、季節物や日用品をすっきり収めたい
動線を妨げず、使いやすい収納にしたい
ピアノは捨てずに活用したい

お客様ニーズへの自社の対応

物置化していた廊下と奥の押し入れを一体的に再構成し、空間を無駄なく使える一坪収納として計画しました。
収納内部は用途別に整理し、季節物や日用品をまとめて収められる容量を確保しました。
通路幅と出し入れ動作を考慮したレイアウトとし、日常の動線を妨げない収納計画としています。
使用頻度の低いピアノは処分せず、和室の押し入れを改修して専用スペースを設け、暮らしの中で活かしました。

リフォーム工事後のお客様の評価

使いづらかった廊下と押し入れが、大容量で使いやすい収納になり、家の中がすっきりしました。動線を妨げることもなく、日常の出し入れがとても楽になっています。またピアノも、専用の場所を設けてもらったことで再び活用できるようになり、とても満足しています。

所在地
長野県飯田市
施工日数
14日
施工完了
2025年05月
物件種別
戸建
構造
木造
面積
33.12m²
費用
150万円(税込)(補助金等の制度活用:無)
居住者構成

この作品の事業者については、下記の事業者情報をご参照ください。(赤字のホームページURLをクリックすると、さらに詳しく確認いただけます!)

事業所情報

私たちはひとりひとりのお客様から心からのありがとうの言葉を頂き、その言葉で働く仲間皆が輝きながら仕事が出来る様頑張っています。

事業所名
有限会社恵夢住宅設計室
所在地
長野県飯田市中村78-9
営業エリア
飯田・下伊那全域のうち、車の移動40分以内エリア
営業時間
8:00~20:00
定休日
無休(年末年始・GW以外)
電話番号 / FAX
0265-25-5561 / 0265-48-0586
対応物件
戸建
ホームページ
http://www.em-house.com/

お気軽にご相談ください。
会員に関する苦情についてもお受けいたします。

10:00~12:00、13:00~17:00
(夏季休暇・年末年始・土日・祝日は除く)