愛知県 カナルリフォーム岡崎本店 詳細

家族の笑顔を育むリノベ―ション

お母様との同居を実現させるための二世帯住宅へリノベーション。最重要コンセプトは「家族の団らん」。壁を取り払った広々とした2階LDKには、南向きの大きな窓から陽光が降り注ぎます。パントリーやWICで収納効率を高め、間接照明などで温かくおしゃれな雰囲気を演出しました。

こだわりポイント
BeforeもしくはAfter図面あり / こだわりキッチン / こだわりトイレ / こだわりバス空間(洗面含む) / インテリア / プロとしてのアイデア / 新しい生活様式提案 / 補助金等のリフォーム制度利用
リフォーム部分
リビングダイニング / 寝室・個室 / キッチン / バス / 洗面室 / トイレ

LDK

料理中も目が届くリビングとお子様の遊び場所。
間接照明を設置することで、リビングを柔らかく照らします。
また既設の大きな窓から柔らかな光が降り注ぎます。

キッチン

リシェルを主役に、セラミックトップの重厚な質感で仕上げた洗練されたキッチン空間。コンロ奥のタイルと床のフロアタイルをグレーのトーンで統一することで、素材が異なりながらも空間全体に一体感と落ち着きを生んでいます。

洗面

足元を浮かせたフロートデザインの洗面が広がりを感じさせる一方、トール収納を備えることで、美しさと高い収納力を両立させました。

洋室1

カーテンボックスでレールを隠し、木目天井やグレーの壁紙が映える空間となりました。

WIC

3階には家族全員の衣類をまとめて収納できるWICを設け、家全体の収納効率を高め、すっきりとした暮らしを可能にしました。

階段

外用品がしまえる土間スペース。
内装の貼り替えにより、明るい空間になりました。

物入

玄関からすぐにある物入は、帰宅後すぐに上着をかけたり、外用品などを収納したりすることができます。

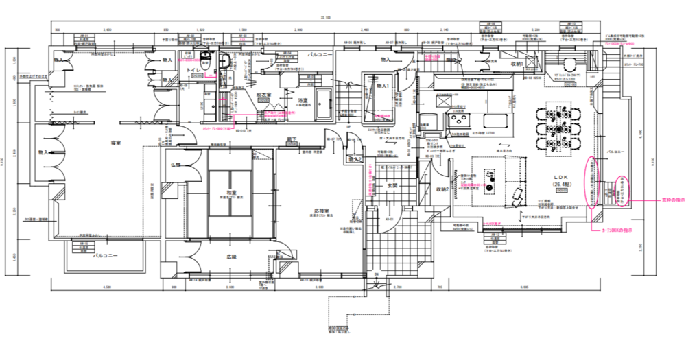
2階図面

キッチン、ダイニング、リビングが直線的につながったLDKは、どこにいても家族の気配を感じられ、大人数で集まる機会も大切にできる設計です。パントリーや壁面収納により、生活感を抑えつつ、増えがちな荷物をすっきり収納できます。また、キッチンから水回りへのコンパクトな家事動線により、家事の同時進行がスムーズです

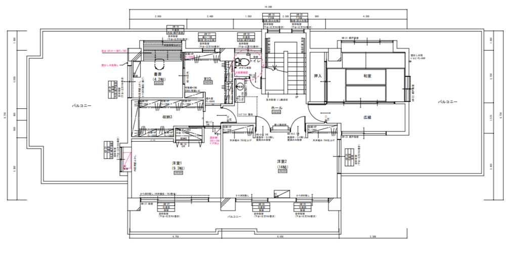
3階図面

3階には各個室のクローゼットに加え、中央に大型収納があり、家族全員の荷物をまとめて管理できます。

お客様のニーズ(リフォームへの要望)

①ご家族が集まる団らんの空間: ご家族が集まる機会が多いので、心地よく過ごせるリビング・ダイニングを特にこだわりたい

②豊富な収納: たくさんの食器やお子様のおもちゃをすっきりとしまえる収納

③効率的な生活動線: 日常生活がスムーズになるような動線に改善したい

④断熱性能の向上: 快適な住環境のために、断熱性能の改善

⑤お子様が安心して過ごせる空間: お子様が寝転がって遊べるような、のびのびとした空間

お客様ニーズへの自社の対応

①居心地の良いLDKの実現: ご家族の団らんの中心となるリビング・ダイニング・キッチンを中心に設計。自然と人が集まり、会話が弾むように間接照明や温かみのある素材を空間に取り入れました。また、お子様の遊ぶスペースをキッチンから見える箇所に設置しました。

②家族の衣類をまとめてしまえるWIC(ウォークインクローゼット)の設置: 家族全員の衣類をまとめて収納できるWICを設けることで、各部屋の収納を減らし、すっきりとした生活空間を実現しています。

所在地
愛知県岡崎市
施工日数
5ヶ月
施工完了
2024年11月
物件種別
戸建
構造
鉄筋コンクリート造
築年数
37年
面積
430m²
費用
3500万円(税込)(補助金等の制度活用:有)
居住者構成

この作品の事業者については、下記の事業者情報をご参照ください。(赤字のホームページURLをクリックすると、さらに詳しく確認いただけます!)

事業所情報

注文住宅からリフォームまでを総合的に扱ってきた当社のスタッフは、全員が住宅の隅ずみまでを知り尽くしたプロフェッショナルです。地域密着で事業を行ってきた経験を活かし、他のリフォーム会社には真似できない、地域のお客様にとってより良い住まいを追求したご提案をさせていただきます。

事業所名
カナルリフォーム岡崎本店
所在地
愛知県岡崎市羽根北町2―1―4
営業エリア
岡崎市、幸田町、蒲郡市、安城市
営業時間
10:00~17:00
定休日
年中無休(年末年始・GW・夏季休業除く)
電話番号 / FAX
0564-57-1318 / 0564-57-8362
対応物件
戸建,マンション
ホームページ
https://kanal-reform.jp/

お気軽にご相談ください。
会員に関する苦情についてもお受けいたします。

10:00~12:00、13:00~17:00
(夏季休暇・年末年始・土日・祝日は除く)