愛知県 カナルリフォーム岡崎本店 詳細

洗練されたモダン空間と、淀みなき家事動線

「住まいのバトンタッチ」を見据え、将来両親に譲る中古マンションをリフォーム。共働き夫婦の最優先事項である洗濯の不便さ解消のため、洗面室からWTC、バルコニーへの一直線の動線で「脱ぐ・洗う・乾かす・しまう」を効率化しました。豊富な収納とモダンデザインで、生活感を抑えた美しく快適な日常を実現しています。

こだわりポイント
BeforeもしくはAfter図面あり / こだわりキッチン / こだわりトイレ / こだわりバス空間(洗面含む) / インテリア / グリーン化・SDGs達成(断熱・耐震含む) / プロとしてのアイデア / 新しい生活様式提案 / 補助金等のリフォーム制度利用
リフォーム部分
リビングダイニング / 寝室・個室 / キッチン / バス / 洗面室 / トイレ

LDK

空間の中心となるキッチンはパナソニックのSクラスを導入しました。CB上には優しい色味の焼き物タイル、壁掛けTVの背面にはエコカラットを採用し、モダンな空間を演出しています。

洋室3

LDKからガラス間仕切りで仕切れる空間。
ご両親が遊びに来たときやお子様のお昼寝の時間には仕切ることができ、それ以外は開けてLDKと一体的に使うことができる空間です。

洗面室からWTCへの動線

洗濯の家事動線をすっきりさせるため、洗面室から洋服をしまうWTC、干すバルコニー、HPを付けた洋室3へ一直線につながる動線にしました。

トイレ

上部の収納棚や紙巻き器は撤去し、正面にアクセントを入れることでシンプルモダンな空間になりました。
トイレットペーパーやボックスの大きさに合わせた固定棚により収納もでき、小物も飾ることができます。

キッチン

キッチン上の収納棚や垂れ壁を撤去し、リビングを見通すことができるオープンなキッチン空間に変わりました。
パントリーもあるため、ストック品などの収納もすることができます。

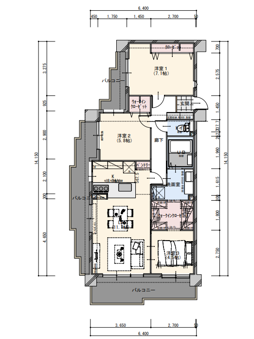
図面

①家族が集まるLDKと多目的空間: 約11.4帖のLDと3.4帖のキッチンを一体化。隣接する洋室は引き戸の開放でリビングと一体利用が可能です。

②すっきりした動線: 洗面室からベランダ、WICまで一直線につながり、家事動線がスムーズ。各部屋へのアクセスも最短距離で無駄のない配置です。

③快適な住環境と安全性: 北側の居室に内窓を設置し、断熱性能を向上。南側の広い開口部により、メインの居住スペースに十分な自然光を確保しています。

お客様のニーズ(リフォームへの要望)

①洗濯の不便さを解消するためにランドリールームを設置したい。
②乾燥機の「乾太くん」の導入を検討したい。
③収納を多めに設けたい。

お客様ニーズへの自社の対応

①広々とした洗面脱衣室の確保: 既存の間取りから洗面室のスペースを広げ、洗面台を大きなサイズにすることで、作業もできるようにしています。また、洗面室からWIC、バルコニーまでの動線も簡潔にすることで手間を軽減しています。洋室3にはハンガーパイプを取り付け、雨の日も洗濯物を干すことができます。

②豊富な収納スペースの設置
住戸の中央に約2.5帖以上の大きなWTCLを配置し、家族全員の衣類を集約して管理できるようにしました。
キッチン横にパントリーを設けることで、ストック品を隠して収納でき、ロールスクリーンを付けることでリビングに生活感を出さない工夫がされています。
玄関の大型シューズボックス、各洋室のクローゼット、廊下収納など、必要な場所に十分な容量が確保されています。

リフォーム工事後のお客様の評価

明るくなり、前の居住者のタバコの匂いが気になっていたが完全に消え、喜ばれていました。
また、提案させていただいた家具を気に入ってくださり、住むのが楽しみだとおっしゃっていました。

所在地
愛知県刈谷市
施工日数
3ヶ月
施工完了
2025年11月
物件種別
マンション
構造
鉄筋コンクリート造
面積
79m²
費用
1200万円(税込)(補助金等の制度活用:有)
居住者構成

この作品の事業者については、下記の事業者情報をご参照ください。(赤字のホームページURLをクリックすると、さらに詳しく確認いただけます!)

事業所情報

注文住宅からリフォームまでを総合的に扱ってきた当社のスタッフは、全員が住宅の隅ずみまでを知り尽くしたプロフェッショナルです。地域密着で事業を行ってきた経験を活かし、他のリフォーム会社には真似できない、地域のお客様にとってより良い住まいを追求したご提案をさせていただきます。

事業所名
カナルリフォーム岡崎本店
所在地
愛知県岡崎市羽根北町2―1―4
営業エリア
岡崎市、幸田町、蒲郡市、安城市
営業時間
10:00~17:00
定休日
年中無休(年末年始・GW・夏季休業除く)
電話番号 / FAX
0564-57-1318 / 0564-57-8362
対応物件
戸建,マンション
ホームページ
https://kanal-reform.jp/

お気軽にご相談ください。
会員に関する苦情についてもお受けいたします。

10:00~12:00、13:00~17:00
(夏季休暇・年末年始・土日・祝日は除く)