愛知県 カナルリフォーム岡崎本店 詳細

予算内で叶えた「断熱×開放感」。二階完結の快適リノベ

実家への引っ越しを機に、二階だけで心地よく暮らせるようリフォームしました 。一番のこだわりは、寒さ対策として、全ての窓に内窓を付け、玄関からの冷気を遮る扉を政策、内装は屋根の形を活かした勾配天井と、お部屋を優しく照らす間接照明を採用。2,000万円という予算の中で、たっぷり入る収納も確保。二階だけで家事が完結する温かい住まいです 。

こだわりポイント
BeforeもしくはAfter図面あり / こだわりキッチン / こだわりトイレ / こだわりバス空間(洗面含む) / インテリア / グリーン化・SDGs達成(断熱・耐震含む) / プロとしてのアイデア / ライフスタイルの変化提案 / 新しい生活様式提案 / 補助金等のリフォーム制度利用
リフォーム部分
リビングダイニング / 寝室・個室 / キッチン / バス / 洗面室 / トイレ

キッチン

回遊性のあるキッチンで夫婦で並んで料理を楽しめるゆとりある動線を確保しました。

収納

キッチンの横にはパントリー、寝室の隣には独立したWICを配置し、生活感を隠したスッキリとした暮らしを実現します 。
垂れ壁はRに加工し、空間に柔らかさを演出しています。

開放感溢れるLDK

リビング上部は吹き抜けのような勾配天井となっており、2階ならではの開放的な視界を確保しました 。

ランドリールーム

2階にバルコニーが無いため、室内干しができるようランドリールームを設置しています。

造作建具

玄関からの冷気が2階に上がってこないように建具を設置しました。
また、母屋とつながった2世帯住居のため、建具で空間を仕切ることでプライバシーも確保しています。

柱や梁

既設の柱や梁を活かし、デザイン性を高めました。

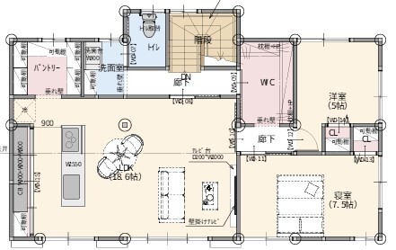
1階図面

帰宅してからすぐにお風呂に入れるようにUBと簡易洗面台を1階部分に配置。バルコニーが無いことや脱衣室が1階にあることを考え、洗面脱衣室とつながったランドリールームを設けた。

2階図面

キッチン、トイレ、洗面所、そして寝室となる洋室を2階に集約 。
特にこだわったのは、家の中心にあるアイランドキッチンです 。キッチンのまわりをぐるりと一周できるため、お料理をしながら水回りやパントリーへもスムーズに移動できます 。家事の時間を短くし、その分ご夫婦の会話が自然に弾むような、優しく機能的な間取りです 。

お客様のニーズ(リフォームへの要望)

①寒さ、暑さが気になる
②仕事が夜勤のため昼間に眠ることが多い
③広く感じられる空間にしたい

お客様ニーズへの自社の対応

①内窓を設置することにより、寒さ・暑さを軽減しました。また、遮光タイプのロールスクリーンを採用することにより、昼間でもぐっすり眠れるような空間にしました。

②勾配天井+間接照明、ハイドアを採用することにより、天井を高く演出しています。

リフォーム工事後のお客様の評価

寒い日でも1時間ほど暖房をつけてその後消しても温かさが続くのに喜ばれていました。また、急な変更や要望にもしっかりと対応してもらえたと大変満足されていた。

所在地
愛知県幸田町
施工日数
3ヶ月
施工完了
2025年11月
物件種別
戸建
構造
木造
築年数
30年
面積
120m²
費用
2000万円(税込)(補助金等の制度活用:有)
居住者構成

この作品の事業者については、下記の事業者情報をご参照ください。(赤字のホームページURLをクリックすると、さらに詳しく確認いただけます!)

事業所情報

注文住宅からリフォームまでを総合的に扱ってきた当社のスタッフは、全員が住宅の隅ずみまでを知り尽くしたプロフェッショナルです。地域密着で事業を行ってきた経験を活かし、他のリフォーム会社には真似できない、地域のお客様にとってより良い住まいを追求したご提案をさせていただきます。

事業所名
カナルリフォーム岡崎本店
所在地
愛知県岡崎市羽根北町2―1―4
営業エリア
岡崎市、幸田町、蒲郡市、安城市
営業時間
10:00~17:00
定休日
年中無休(年末年始・GW・夏季休業除く)
電話番号 / FAX
0564-57-1318 / 0564-57-8362
対応物件
戸建,マンション
ホームページ
https://kanal-reform.jp/

お気軽にご相談ください。
会員に関する苦情についてもお受けいたします。

10:00~12:00、13:00~17:00
(夏季休暇・年末年始・土日・祝日は除く)