愛知県 カナルリフォーム岡崎本店 詳細

こだわりを紡いだマンションリノベ。デザインと質感が織りなす上質な白の空間

お子様の独立を機に、これからの人生を丁寧に楽しむための拠点としてマンションを購入しました。何度もショールームへ足を運び、素材の質感や見え方を一つひとつ確かめながら、ご夫婦の理想を具現化しました。細部へのこだわりと将来への安心を両立させた、一生モノの住まいです。

こだわりポイント
BeforeもしくはAfter図面あり / こだわりキッチン / こだわりトイレ / インテリア / プロとしてのアイデア / 新しい生活様式提案 / 補助金等のリフォーム制度利用
リフォーム部分
リビングダイニング / 寝室・個室 / キッチン / バス / 洗面室 / トイレ

玄関

既存の框やドア取っ手を残しつつ、玄関ドアの塗装、壁面にはエコカラットプラス(ニュランス)を採用しました。

キッチン

既存の垂れ壁や間仕切りを撤去し、南側のリビングまで視線が抜ける広々とした対面キッチンを実現しました。内装は白を基調に、木目調の天井や梁、背面のモザイクタイル風クロスを重ね、何度も組合せを吟味したこだわりの詰まった空間です。

リビング・ダイニング

リビングには壁掛けテレビを設置するため、配線を隠蔽しつつ壁面をふかした設計を採用。また、壁面下部に施されたモールディング装飾が、モダンな設えの中にさりげない気品とクラシックな優美さを添えています。

洋室1

アンティークガラスのデコマドを採用し、デザイン性だけでなく光を採り込む役割としても活用しています。

洗面脱衣室

既製品の洗面台に合わせ、同じ高さの造作カウンターを隙間なく設置しました。洗濯機の上部には収納棚ピアラを採用し、限られたスペースを最大限に活用しています。

トイレ

既設のトイレは流用し、内装のみ施工しました。
壁面中心に見切りを入れ、2色のクロスを用いることで上品さを演出しています。

こだわりの建具

各部屋の建具にはラシッサSのクリエアイボリーを採用し、メインの扉にはLWB(オーバル)ステンドガラス、取っ手には握り玉のブラスゴールドを取り入れました。

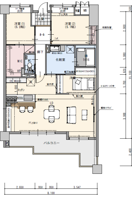
図面

南側の区切られていた空間を、バルコニー面に沿って横幅いっぱいに光が届く、開放的なリビング・ダイニングへと実現しました。 また、キッチンを中心に洗面・浴室・洋室1(奥様の寝室)をコンパクトに集約。 夫婦それぞれの時間を尊重しながらも、生活動線を最小限に抑え、ストレスなく移動できる機能的なレイアウトにしています。 特に洗面室は、室内干しスペースを確保するとともに、お手持ちの収納家具を配置できるよう、既設よりもゆとりある空間へ拡張。 暮らしの質を高める「家事ラク」と「自分らしい設え」を両立させました。

お客様のニーズ(リフォームへの要望)

①上品な雰囲気かつ使い勝手の良い空間へ
②開放的なLDK
③家事効率の向上

お客様ニーズへの自社の対応

①開放的で上質なLDK:リビングと洋室の間仕切りを撤去し、バルコニー面に沿った横幅いっぱいの開口部からの光あふれる開放的なLDKを実現。造作収納やモールディング装飾で上品な空間を演出しました。

②家事効率と機能的な動線:室内干し収納や対面フラットキッチンを計画。特に洗面室はゆとりある空間に拡張し、「家事ラク」と「自分らしい設え」を両立させています。

リフォーム工事後のお客様の評価

ご夫婦の理想を細部まで具現化した結果、「かわいい」「提案が良かった」という大変嬉しい評価をいただきました。

所在地
愛知県岡崎市
施工日数
3ヶ月
施工完了
2025年08月
物件種別
マンション
構造
鉄筋コンクリート造
築年数
24年
面積
87m²
費用
850万円(税込)(補助金等の制度活用:有)
居住者構成

この作品の事業者については、下記の事業者情報をご参照ください。(赤字のホームページURLをクリックすると、さらに詳しく確認いただけます!)

事業所情報

注文住宅からリフォームまでを総合的に扱ってきた当社のスタッフは、全員が住宅の隅ずみまでを知り尽くしたプロフェッショナルです。地域密着で事業を行ってきた経験を活かし、他のリフォーム会社には真似できない、地域のお客様にとってより良い住まいを追求したご提案をさせていただきます。

事業所名
カナルリフォーム岡崎本店
所在地
愛知県岡崎市羽根北町2―1―4
営業エリア
岡崎市、幸田町、蒲郡市、安城市
営業時間
10:00~17:00
定休日
年中無休(年末年始・GW・夏季休業除く)
電話番号 / FAX
0564-57-1318 / 0564-57-8362
対応物件
戸建,マンション
ホームページ
https://kanal-reform.jp/

お気軽にご相談ください。
会員に関する苦情についてもお受けいたします。

10:00~12:00、13:00~17:00
(夏季休暇・年末年始・土日・祝日は除く)