リフォームギャラリーコンテスト 優秀賞 (公益財団法人住宅リフォーム・紛争処理支援センター理事長賞)

2024
富山県 株式会社共栄ホームズ 詳細

祖母宅をフルリノベで受け継ぐ家

祖母宅を受け継いだ孫世帯にあたる家主ご家族。解体し新築住宅もご検討をされましたが、物価高騰の中 高騰し続ける新築価格。そんな中、新たな新居を手に入れる選択肢として選ばれたのは、コストを抑えて高性能な建物を手に入れる事の出来るフルリノベーション工事でした。隣県の石川能登地震の影響もあり、富山でも耐震性を気にされる方々も多くおられ、こちらの建物もIW値=1.5を確保する計画となりました。また既存の建物がとても寒いとの事で「何とかして欲しい」とのご要望もあり。現地調査させて頂いた結果、断熱等級2(UA値=1.64)という計算結果が出ました。こちらの断熱性をUA値=0.54(断熱等級5)へ改修させて頂くご提案とさせて頂きました。また室内の保温性も考慮し、気密施工を施し、気密性C値=0.3を確保する事になりました。間取りに関しては、既存の無駄な廊下などを上手く帰宅動線・家事動線に取り込む計画とし使い易い間取りに改修させて頂きました。最短距離では和室を通らないと行けなかったLDK空間。そんな勝手の悪い和室を無くし、玄関クロークルームとLDKの一部とし利用させて頂き、広くなったLDKを減築し、新たな空間としてサンルームや独立型の脱衣場やファミリークロークを間取りに生み出し、LDKと浴室までを直線的に繋く事で温度差も少なく、ヒートショック対策、また使い易い動線へと改修致しました。耐震性確保の為 窓も減らしましたが間取りに回遊性を持たせた事で風や換気経路の回遊性も同時に確保する事ができました。

こだわりポイント
BeforeもしくはAfter図面あり / こだわりキッチン / こだわりトイレ / こだわりバス空間(洗面含む) / インテリア / インフィルリフォーム / グリーン化・SDGs達成(断熱・耐震含む) / ライフスタイルの変化提案 / 新しい生活様式提案 / 補助金等のリフォーム制度利用
リフォーム部分
リビングダイニング / 寝室・個室 / キッチン / バス / 洗面室 / トイレ / 屋根・外装・外構・造園等

玄関ホール

既存の玄関ホールは、隣家のある西側に窓が多く耐震性にも影響がありました。IW値=1.5を確保するにあたり 隣家との目線・プライバシー性の考慮、また西日しか直接日射取得できない夏場に不利・冬場のメリットも少ない窓は排除し、換気用窓のみの設置とさせて頂きました。窓が無くなった事により閉塞感が出た玄関ホールでしたが、階段をスケルトン化粧階段とさせて頂き空間に抜け感を演出し、南北の通風性も確保しました。また抜け感あるホール正面 奥の壁にはイタリア・トスカーナ地方産の石材を貼り、暗い空間に照明器具を駆使して凹凸ある石を照らし影を生かした高級感を演出させて頂きました。

改修前 玄関ホール
改修後 玄関ホール (ウォールナット突板フロア・富山県産杉無垢巾木(ウォールナット塗装)・イタリアトスカーナ地方石貼り・建具 ラフィス ノイズレス仕様)

和室を玄関クロークへ

最短距離では、和室を通らないとLDKへ行けなかった。そんな和室空間は動線的にも意匠的にも使い難いという事で、和室空間の一部を玄関クロークルームへと作り変えさせて頂きました。雪国富山は除雪用具やスタッドレスタイヤの収納庫が必須となる県です。既存の和室を無くす事により大きな玄関クロークルームを確保する事ができました。また床面にはタイル施工がされているので、靴のまま出入りする空間ですが、しっかりとネオマゼウスにて基礎断熱施工を施しLDKとの温度差も少なくなる様に配慮致しました。また 和室(客間)だった機能面での名残を残し待合室としても使えるようなフリースペース(椅子が置いてあります)も確保されております。

改修前 既存和室
改修後 玄関クローク(メンフィス600角タイル・南海プライウッド玄関収納・可動棚・玄関扉 ヴェナートD30 D2仕様)

LDK(1)

和室の一部をLDK空間に取り込む事で、既存のキッチンを前に出し 既存のキッチン空間だった部分をサンルーム・洗面所などを固めた バックヤードルームへと改修致しました。また既存の和室との間仕切り部分にあった梁材を補強する必要があった為 梁の部分の天井高が低くなりました。その低さをあえて生かす為に 梁から向こう側はTVシアタールームの様に演出させて頂きました。具体的には、グレー色のエコカラットを壁面に貼り暗めの配色とし、壁掛けTV仕様へ(この配色が後のキッチン空間のカラーセレクトへ影響を与えております)。 またダウンライトなどをあえて排除し間接照明のみの暗めの照明計画とし、シアタールーム風のTV廻り空間としました。

改修前 LDK(1)
改修後 LDK(1) (天井:無垢ツガ材・ 造作TVボード・ TVボード背面:エコカラット ストーングレース・ 建具:ラフィス ノイズレス仕様)

LDK(2)

天井・キッチン腰壁には無垢のツガ材を施工し温かみのある空間へ。キッチンを前に出す事でバックヤードルームやファミリークロークへと回遊できる動線となりました。またその空間同士は天井までのフラット建具で仕切る事で開放すれば一体感ある空間が実現できております。耐震性確保の為 窓は減らしましたが、通風性を確保出来るように開放的に繋がる、風も回遊できる間取り動線へと改修致しました。

改修前 LDK(2)
改修後 LDK(2) (キッチン腰壁H1100 笠木:無垢タモ材 仕上:無垢ツガ材・ フロア材:ウォールナット突板フロア・ 巾木:富山県産杉ウォールナット塗装・ キッチン背面タイル 名古屋モザイクタイル・ カウンター材:無垢タモ材・ 建具 ラフィス:ノイズレス仕様)

トイレ

高齢者住宅で広めのトイレ空間でした。広めのトイレ空間はそのまま生かさせて頂き、トイレの位置は 来客者も気兼ねなく利用できる様に玄関ホール側へと移動させて頂きました。トイレ背面のアクセントクロスと、手洗い器のカラーを合わせる事で統一感あるお洒落なトイレ空間を実現致しました。ペンダントライトの光を綺麗に壁・床に反射させ空間全体を演出するのと、便器に座った際に眩しく感じないようにあまり光を反射しないブラック素材の手洗いカウンターも配置させて頂きました。 

改修前トイレ
改修後トイレ (トイレ:TOTOネオレスト・ 手洗器:KAKUDAI・ カウンター:造作・ 床:フロアタイル・ 巾木:富山県産杉 無塗装)

2階ホール・洗面・趣味スペース

過去に一度リフォーム済みだった2階トイレは既存の便器をそのまま利用しました。そんなトイレ手洗いを廊下に設け、お湯も使用可能な洗面台の様な仕様とする事で 朝の身支度で1階の洗面所が混みあった場合 2階でも洗面所として利用ができる手洗い場とさせて頂きました。また 2階廊下奥に見えるのは趣味スペース(フリースペース)があります。他 子供部屋2部屋・ご夫婦それぞれの各部屋2部屋が確保されております。

改修前 2階ホール
改修後 2階ホール (造作洗面台:KAKUDAI 天板:タモ板+ウレタン塗装 タイル:名古屋モザイクタイル・ 窓枠 無垢タモ材・ 建具 ラフィス ノイズレス仕様)

キッチン

釣りが趣味のご主人、もちろんキッチンにも立たれるそうで キッチンの天板高さも高めの900mm設定。また釣ってきた魚を駐車場から直接キッチンへ持ち込める勝手口もしっかりと設置されております。キッチン本体のカラー・キッチン収納面に貼られたタイルカラーもLDKのエコカラットと喧嘩のしないグレーカラー配色とし無垢材との相性の良い統一感ある空間になっております。

改修前 キッチン
改修後 キッチン (キッチン・カップボード:Panasonicラクシーナ トリプルワイドIH・ 背面タイル:名古屋モザイクタイル)

外観

既存の外壁材(窯業系サイディング)は既に寿命を迎えており、水が染み込み冬場の凍結 塗装面の破断、割れ、コーキングの剥がれが顕著に目立ちました。お施主様のご意向は、「なるべく長期的にメンテナンスの不要な材料でお願いしたい」とのご要望でしたので、ガルバニウム鋼板の外壁材にて仕上げさせて頂きました。外観カラーはブラックに差し色に軒裏に木目を配置させて頂きました。

改修前 外観
改修後 外観(ニチハ:スマートプレミアム・ 軒裏:杉材+フクビ軒先換気口・ 玄関ポーチ天井:無垢ツガ羽目板)

断熱・気密 改修中風景 断熱計算書付住宅

●断熱等級5(地域区分Ⅴ)/ UA値=0.54  
【断熱材仕様】(天井):グラスウール20K・200mm+気密シート (壁):ネオマフォーム25mm+9㎜構造用合板+グラスウール28K・89㎜+気密シート+15mm構造用合板 (床):ネオマゼウス60mm+気密シート+24mm構造用合板 (一部基礎断熱 UB下/玄関廻り) (開口部)APW330 アルコンガス入 樹脂スペーサー
●耐震性 IW値=1.5(外部:構造用合板9㎜補強 / 内部:構造用合板15mm補強 / 剛床 構造用合板24㎜ / 釘径・ピッチ見直し / 壁量増設・基礎増設 )  
●気密性 C値=0.3

断熱改修風景
断熱改修仕様

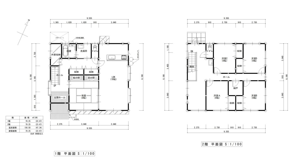
平面図(Before → After)

既存の無駄な廊下などを上手く帰宅動線・家事動線に取り込む計画とし使い易い間取りに改修させて頂きました。最短距離では和室を通らないと行けなかったLDK空間。そんな勝手の悪い和室を無くし、玄関クロークルームとLDKの一部とし利用させて頂き、広くなったLDKを減築し、新たな空間としてサンルームや独立型の脱衣場やファミリークロークを間取りに生み出し、LDKと浴室までを直線的に繋く事で温度差も少なく、ヒートショック対策、また使い易い動線へと改修致しました。耐震性確保の為 窓も減らしましたが間取りに回遊性を持たせた事で風や換気経路の回遊性も同時に確保する事ができました。また、工事最終仕上げ段階で素人でもある施主様と内装イメージ・空間イメージの相違が無いように 3Dキャドでmm単位・使用建材メーカーまで再現した詳細なイメージパース図を作成し、ご覧いただきながらイメージの共有・納得のうえ工事や打合せを進めてゆきました。完成した際には 3Dパース図があまりにも正確・精密過ぎて、そのままの姿で完成するので、完成した際の感動は若干薄れるかもしれませんが トラブルを防ぐ為には必要なご提案だと感じております。

改修前 平面図
改修後 平面図 (3Dイメージ パース図付)

お客様のニーズ(リフォームへの要望)

お写真では伝わり難い こだわりポイントとして、巾木があります。既製品では表現できない「薄さ」「厚さ」「質感」「色味」を表現する為に 富山県産杉を削り出して造作しました(部屋のフロアカラーに合わせて巾木にもそれぞれ塗装を施して使い分けしております。)デザイン住宅によく見られる金属製の薄型巾木との違いは、木製ならではの温かみのある質感。また材質の熱伝導率の違いから熱橋部の観点からも有利であります。この薄い巾木を使用する事で 建具の枠材が不要となります。敷居レールや鴨居が不要となり、床面・天井面がフラットに繋がるノイズレスな空間の繋がりが可能となっております。居室間の空気の移動・換気経路の計画もスムーズに行えると同時に、枠材のコストカットにもなります。 また工事途中の状況などは、WQHDにて動画撮影をし 動画アプリのクラウド管理する事で いつでも施主様がダウンロード保存・ご覧になって頂けるようにしました。工事の進捗状況をWQHD画質で保存する事で 建築現場の細部まで拡大表示が出来るので、細部の確認も可能とし工事中もミスなく 施主様にとっても安心して工事を任せて頂ける配慮をしました。

お客様ニーズへの自社の対応

完成物件は動画でもご覧頂けます。 

完成ROOMTOURE動画リンクURL → https://www.youtube.com/watch?v=dZPvndEV6us  

※よろしければご覧下さい(より詳細に建物の雰囲気が見れます)

所在地
富山県射水市
施工日数
6ヶ月
施工完了
2025年02月
物件種別
戸建
構造
木造
築年数
40年
面積
156.50m²
費用
2240万円(税込)(補助金等の制度活用:有)
居住者構成

この作品の事業者については、下記の事業者情報をご参照ください。(赤字のホームページURLをクリックすると、さらに詳しく確認いただけます!)

事業所情報

家づくりのプロが即座に解決。 上質な演出、確かなリフォームをお考えの方、豊富な施工実績をもとに、ご予算、ご要望に応じたご提案いたします。 共栄ホームズは再生住宅への30年の実績と最新の技術が評価され「先進的なリフォーム事業者」として経済産業大臣賞を受賞しました。

事業所名
株式会社共栄ホームズ
所在地
富山県富山市婦中町上田島52-3
営業エリア
富山県内
営業時間
9:00~18:00
定休日
水曜日
電話番号 / FAX
076-466-3091 / 076-466-3326
対応物件
戸建
ホームページ
http://kyoeihomes.com

お気軽にご相談ください。
会員に関する苦情についてもお受けいたします。

10:00~12:00、13:00~17:00
(夏季休暇・年末年始・土日・祝日は除く)