3階フロア大改装!どう間仕切りをする?
ご同居を機に鉄骨造3階建ての3階フロアをフルリノベーションされたご家族です。元々は大きく2部屋にしか間仕切りがなく、そこに1から間取りをしていく作業はご夫妻も色々お考えをめぐらせ、お子様の今からの成長やその時々の活動も思い浮かべながらの計画となりました。それぞれのライフステージに対する想いを計画時に共有させて頂き、とても楽しい打合せでした。
- こだわりポイント
- BeforeもしくはAfter図面あり / こだわりキッチン / こだわりトイレ / こだわりバス空間(洗面含む) / インフィルリフォーム / グリーン化・SDGs達成(断熱・耐震含む) / 補助金等のリフォーム制度利用
- リフォーム部分
- リビングダイニング / 寝室・個室 / キッチン / バス / 洗面室 / トイレ / 屋根・外装・外構・造園等
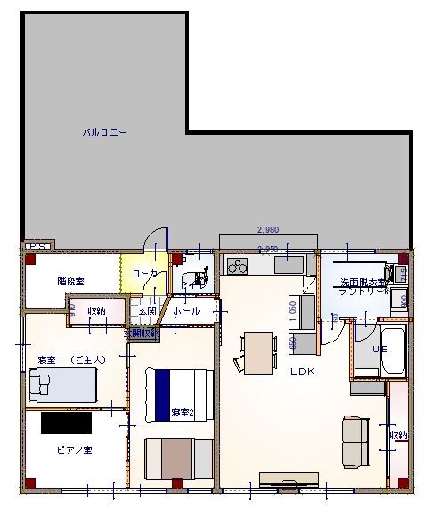
Before After 平面図
鉄骨造の3階、そして元々は貸事務所であったことで住設機器はトイレとミニキッチンのみでした。給排水系統は機能・効率を考え、キッチンやお風呂の位置はおのずと決まってくるのですが、各居室の大きさや区画の仕方、動線には数案で迷われました。最終的には、元々階段室内の廊下であったスペースを玄関とし、寝室および趣味室とLDKとに分けました。またご主人の趣味室も兼ねた寝室を他の居室と間仕切ることも譲れないポイントです。
キッチン交換
キッチンは奥様一押しのタカラスタンダードで決定!ワークトップは機能的にステンレス、そして扉色は飽きのこないホワイトを選ばれました。2550では少し余る間口だったので、調理台側横に300㎜幅の延長をかけました。そのためお弁当作りなど調理の際にちょっとした作業スペースが確保できよかったと好評頂きました。全体的に内装や建具もホワイトで統一したため、とてもすっきりとした印象です。
意外と奥深いトイレの手すり位置
トイレ交換を実施、元々タイル内装であったところからの内装工事で素敵な空間へリニューアルしました。内装クロスでお悩みになる方は多いですが、今回は手すり設置位置の選定にも抜かりなく、こだわりの場所への施工となりました。トイレ空間では、排泄動作に伴い血圧が大きく下がることがよく言われています。そのため『たかが手すり、されど手すり』、皆様も手すり新設の時にはこだわってみてくださいね。
ニッチ風靴棚で玄関スペースを確保
元々の階段室踊り場を玄関スペースへと移行したものの、それでも新たに靴箱を設置することで着脱するための床面積がとられてしまうため、ニッチ風に壁へ埋め込むことになりました。そのため、裏側居室には靴箱の奥行が飛び出すわけです。ここで奥様がユーモアを出され、こちらは子供さんには届いてはいけないものを仮置きしたりするハイカウンターとして使うとのことで、天板として棚板を設けることとしました。
洗面台設置
サイドキャビネット付き洗面化粧台で、十分な収納を確保しました。
浴室
ユニットバスはクリナップのユアシスで決定。排水溝のヘアキャッチャーはステンレス製でぬめりのお掃除等しやすいほうがよい、おこさまが小さいうちはお風呂グッツが多いため、タオルかけは2個設置して床置きを防ぎたいなど、要所で奥様の想いを叶られました。
ほぼ全開口部を内窓へ
もともと、H1600高と大変大きな窓がほとんどでした。また全体的に窓の数も多く、経済的に断熱工事もしたいとのことで、ほぼすべての窓に内窓を設置しました。住宅省エネ2024の先進的窓リノベ事業にも応募し、お得に断熱工事が出来ました。
防水工事
これからもしっかりと家族を守っていってほしい陸屋根に防水メンテナンスを実施されました。
内装
素敵アクセントクロスのご紹介をします。シンプルの中にあそび心あふれる味のある選定となりました。
- 所在地
- 福井県福井市
- 施工日数
- 60日
- 施工完了
- 2024年05月
- 物件種別
- 戸建
- 構造
- 鉄骨造
- 築年数
- 35年
- 面積
- 85m²
- 費用
- 1156万円(税込)(補助金等の制度活用:有)
- 居住者構成
-
この作品の事業者については、下記の事業者情報をご参照ください。(赤字のホームページURLをクリックすると、さらに詳しく確認いただけます!)
事業所情報
・引き継がれる住まい造り ・よみがえる住まい造り ・想いを形に笑顔の絶えない住まい造り リフォームを通じて、皆様に御満足いただける迄、お付合致します。
この事業所の他の施工事例
-
2025
1か月ぽっちりでLDK改修
- 物件種別
- 戸建
- 築年数
- 35年
- 面積
- 25m²
- 所在地
- 福井県福井市
- 費用
- 460万円(税込)
-
2025
思い出ぽろぽろ~愛着をもって共に歩む家~
- 物件種別
- 戸建
- 築年数
- 40年
- 面積
- 50m²
- 所在地
- 福井県越前町
- 費用
- 1300万円(税込)
-
2025
思い切って改修して、1階で安心・便利な生活に
- 物件種別
- 戸建
- 築年数
- 40年
- 面積
- 96m²
- 所在地
- 福井県福井市
- 費用
- 1700万円(税込)
-
2025
築17年目、大切な住まいにメンテナンスリフォーム
- 物件種別
- 戸建
- 築年数
- 17年
- 面積
- 119m²
- 所在地
- 福井県福井市
- 費用
- 1100万円(税込)
-
2025
脳トレ間取り
- 物件種別
- その他
- 築年数
- 30年
- 面積
- 30m²
- 所在地
- 福井県福井市
- 費用
- 500万円(税込)
-
2025
大切にしてきた浴室の内装リニューアル
- 物件種別
- 戸建
- 築年数
- 40年
- 面積
- 6.6m²
- 所在地
- 福井県福井市
- 費用
- 87万円(税込)
-
2024
同居を機におもいっきりリフォーム
- 物件種別
- 戸建
- 築年数
- 35年
- 面積
- 45m²
- 所在地
- 福井県坂井市
- 費用
- 1248万円(税込)
-
2024
老舗めん処からバリアフリー居住空間へリノベーション
- 物件種別
- 戸建
- 築年数
- 35年
- 面積
- 40m²
- 所在地
- 福井県福井市
- 費用
- 1300万円(税込)
-
2024
60代ゆったりリフォーム2
- 物件種別
- 戸建
- 築年数
- 30年
- 面積
- 80m²
- 所在地
- 福井県福井市
- 費用
- 1635万円(税込)
-
2024
古民家のフル内外装リフォーム
- 物件種別
- 戸建
- 築年数
- 45年
- 面積
- 80m²
- 所在地
- 福井県坂井市
- 費用
- 500万円(税込)
-
2024
息子さんご夫婦からのプレゼントリフォーム
- 物件種別
- 戸建
- 築年数
- 30年
- 面積
- 15m²
- 所在地
- 福井県福井市
- 費用
- 500万円(税込)
-
2023
60代ご夫婦のゆったりリフォーム
- 物件種別
- 戸建
- 築年数
- 35年
- 面積
- 67m²
- 所在地
- 福井県福井市
- 費用
- 1,400万円(税込)
-
2022
趣のある梁で、解放感を手に入れた
- 物件種別
- 戸建
- 築年数
- 30年
- 面積
- 50m²
- 所在地
- 福井県福井市
- 費用
- 800万円(税込)
-
2020
耐震性と高断熱を重視し、家族が安らげる住空間と生活動線を考えた家
- 物件種別
- 戸建
- 築年数
- 50年
- 面積
- 107m²
- 所在地
- 福井県越前市
- 費用
- 2,129万円(税込)