石川県 株式会社日本美装 詳細

介助なしで使えるバリアフリートイレ

車椅子での生活を送られており、既存住宅はバリアフリー化されていないため、水廻りを中心に使い勝手への不安がありました。
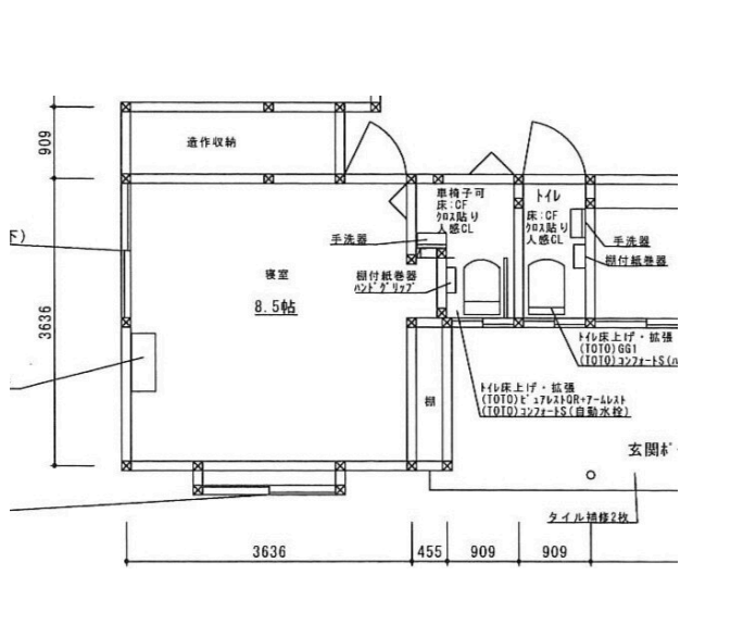
特にトイレは、一般的なトイレと使用感を変えず、入室後に自力で扉を閉められること、就寝時も介助なく利用できることが条件でした。限られた予算と既存間取りの範囲内で寸法を精査し、身体状況に応じた動作シミュレーションを重ねて設備配置を決定。さらに配置を工夫して自動水栓式手洗器を新設し、操作性にも配慮しました。車椅子の変更は必要でしたが、自立した利用が可能なトイレ空間を実現しています。

こだわりポイント
BeforeもしくはAfter図面あり / こだわりトイレ / プロとしてのアイデア / 補助金等のリフォーム制度利用
リフォーム部分
トイレ

図面

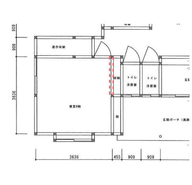
寝室の収納を解体して出入口を新設して、廊下側と寝室側の2方向からトイレへアクセスできる動線を確保しました。就寝時にも最短距離で移動できるため、夜間の移動負担を軽減しています。

二方向からか入れるトイレに

扉にはDAIKENの折戸ドアを採用。開閉時に大きな可動域を必要としないため、車椅子での姿勢を保ったまま無理なく操作が可能です。身体への負担を軽減するとともに、限られたスペース内でも確実に閉められます。

安全に使えるように

入り口が狭く、車いすのままでは出入りが難しかったため介助が必要でした。また、従来はタンク上部の手洗いで対応していましたが、動作時に前傾姿勢となり、身体への負担や転倒リスクがありました。
新しいトイレは車いすのままでも入れるよう広いスペースを確保しました。
さらに、自動水栓式の手洗い器を新設し、車椅子に座ったまま無理のない姿勢で使用できるようにしました。安全性と操作性を高めることで、自立した日常動作を支えています。

お客様のニーズ(リフォームへの要望)

・車椅子でトイレに入り、扉が閉められる
・就寝時に自力でトイレに行ける
・少々の収納スペースが欲しい

お客様ニーズへの自社の対応

・開き戸を折戸に替え、無理のない姿勢で扉の開閉ができるようにした
・寝室の収納を一部解体し扉を新設した
・手洗器下に収納スペースを設けた

リフォーム工事後のお客様の評価

車椅子生活の中で通常のトイレでは不都合が多く、今回、色々な要望を出して担当の方はご苦労されたと思います。しかしながら、色々な創意工夫と障害の程度を踏まえた使い方を汲み取って検討してもらい、良いトイレが出来上がりました。
特に二方向から入れるトイレになったことで、トイレに行くための負担が大きく軽減したことが嬉しかったです。また、小さなことですが自動水栓の手洗いが付いたことで衛生面でも気にすることが減ったのが良かったです。
強いて言えば、収納スペースがもう少し欲しかったところですが、最低限の収納スペースはあるので全然気になりません。
ここまで要望を叶えられるとは思わなかったので感動しました。

所在地
石川県白山市
施工日数
50日
施工完了
2025年07月
物件種別
戸建
構造
木造
築年数
36年
費用
120万円(税込)(補助金等の制度活用:有)
居住者構成
ペット
なし

この作品の事業者については、下記の事業者情報をご参照ください。(赤字のホームページURLをクリックすると、さらに詳しく確認いただけます!)

事業所情報

「人を創る家」の信頼ある“主治医”に。
日本美装は建物の信頼ある“主治医”として、末永く住む人の愛着を守りたいと願っています。日本美装のリフォームは、お客様満足度120%を常に心がけております。プランニングはお客様が納得いくまで、何度でも作り直します。完了、アフターケアまで責任をもって施工します。
大切なお客様の《わが家の主治医》として、末永く見守り続ける住生活総合病院を目指しております。

事業所名
株式会社日本美装
所在地
石川県金沢市古府西1-8
営業エリア
金沢市、野々市市、白山市、津幡町
営業時間
9:00~18:00
定休日
日曜日 祝日
電話番号 / FAX
076-266-2000 / 076-266-2333
対応物件
戸建
ホームページ
https://www.nihonbisou.jp/

お気軽にご相談ください。
会員に関する苦情についてもお受けいたします。

10:00~12:00、13:00~17:00
(夏季休暇・年末年始・土日・祝日は除く)