地域に愛され、未来へ繋ぐ家
50年続いた父の床屋を美容室として継承するため、店舗併用住宅をフルリノベーション。建物全体を黒とグレーのシックな装いに一新し、物置だった1階に個室と最新水回りを新設しました。高断熱・高耐震化により、病床の父と安心して暮らせる住環境も実現。L字型キッチンや小屋裏収納で機能性も追求しました。父の想いを受け継ぐ店舗と、家族を優しく包む住まい。愛着ある家が、家族の未来を支える拠点として鮮やかに蘇りました。
- こだわりポイント
- BeforeもしくはAfter図面あり / こだわりキッチン / こだわりトイレ / こだわりバス空間(洗面含む) / インテリア / インフィルリフォーム / エクステリア / グリーン化・SDGs達成(断熱・耐震含む) / プロとしてのアイデア / ライフスタイルの変化提案 / 新しい生活様式提案
- リフォーム部分
- リビングダイニング / 寝室・個室 / キッチン / バス / 洗面室 / トイレ / 屋根・外装・外構・造園等
家族集まるLDK
かつて上下階が分断され、家族の居場所がなかった住まい。リフォームで壁を取り払い、自然と会話が弾む開放的なLDKへと再生しました。シックな黒とグレーで統一された空間には、使い勝手の良いL字型キッチンを配し、家族団らんの中心に。何より、職人として走り続けてきた父が、初めて心から寛げる「安らぎの特等席」ができました。孤独な動線を解消し、家族の絆を一つに編み直した、この家で一番愛される場所です。
浴室
かつては準備に手間取るバランス釜で、冬は隙間風に凍えていたお風呂。最新のシステムバスへ刷新し、ボタン一つで理想の湯加減になる便利さに、お母様は驚きと喜びを隠せません。断熱性能の向上で、心ゆくまで寛げる「至福の空間」に生まれ変わりました。掃除の負担も大幅に軽減され、家事に追われていた日常にゆとりが誕生。心身を解きほぐす温かなバスタイムが、お母様の毎日を優しく支えています。
トイレ
かつての和式トイレから、誰もが使いやすい最新の洋式へ。住居全体とトーンを合わせたシックな内装に整え、清潔感あふれるモダンな空間へと一新しました。不便さを解消するだけでなく、一息つける安らぎの場所に。細部までこだわったデザインが、日々の暮らしに豊かさを添えています。
居室
長年の夢だった、家族それぞれの洋間個室がついに実現しました。かつては共有せざるを得なかった空間を、自分らしく過ごせるプライベートな聖域へ。シックな内装で統一した個室は、集中と休息を叶える特別な場所です。一方で、扉を開ければ家族が笑い合う開放的なリビングが待っています。個の時間を大切にできるからこそ、家族の絆もより深まる。住む人すべての願いを叶えた、理想の距離感を持つ住まいです。
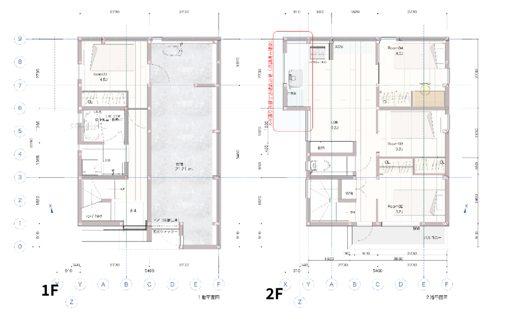
図面 Before After
施工前後の図面です。
お客様のニーズ(リフォームへの要望)
1.病床の父と過ごす、安心・安全な終の棲家
一刻も早く家族で快適に暮らせるよう、築60年の最大の懸念であった耐震性能と断熱性能を抜本的に強化し、健康を守る住環境を整えること。
2.「分断」から「集いと個」が共存する間取りへ
アパートのような構造で居場所が分散していた空間を刷新。家族が集まる開放的なLDKと、一人ひとりが念願の「自分の時間」を過ごせる個室を両立させること。
3.50年の歴史を紡ぐ、店舗と住居のモダンな融合
父の代から続く店舗を美容室として継承するため、建物全体をシックな黒とグレーで統一し、意匠性と使い勝手を兼ね備えた洗練されたデザインにすること。
4.家事負担を劇的に軽減する最新水回り設備
作業スペースがなかったキッチンや、準備が大変だったバランス釜を刷新。L字型キッチンや最新ユニットバスで、母の家事負担を減らし、ゆとりある暮らしを叶えること。
5.デッドスペースの徹底活用による収納不足の解消
物置だった1階や小屋裏など、未活用空間を最大限に活かした収納計画。生活動線を妨げず、将来を見据えて物をすっきりと片付けられる容量を確保すること。
お客様ニーズへの自社の対応
1.「一刻も早く」に応える、抜本的な耐震・断熱性能の向上
病床のお父様が安心して過ごせるよう、築60年の建物を高断熱材と高断熱サッシで包み込み、一年中室温が一定に保たれる環境を構築。同時に精密な耐震補強を施し、災害への不安を払拭した「終の棲家」をスピード感を持って実現しました。
2.物置から「居室」へ。コンバージョンによる空間の再定義
未活用だった1階の店舗横スペースを、浴室と居室へ刷新。アパートのような分断された間取りを解消し、2階の開放的なLDKと1階の個室を分けることで、家族が自然と集まりつつ、一人ひとりが念願のプライベート空間を持てるよう再設計しました。
3.店舗と住居が調和する、洗練された「継承の美」を提案
父の代からの歴史を次世代へ繋ぐため、建物全体をシックな黒とグレーで統一。外観から内装まで一貫したモダンな意匠を施し、美容室としての集客力と、住居としての落ち着きを両立。家族の誇りとなるスタイリッシュな住まいに生まれ変わらせました。
4.家事の時間を「愉しみ」に変える、高機能設備の導入
作業スペースがなかったキッチンを【ミッテ】のL字型へ。広いワークトップで家族団らんの料理を実現しました。また、バランス釜から最新の【サザナ】へ刷新。ボタン一つでの湯張りと高い清掃性により、お母様の家事負担を劇的に軽減し、心休まるバスタイムを提供しました。
5.ミリ単位の設計で叶えた、大容量の小屋裏収納と生活のゆとり
深刻な収納不足を解消するため、デッドスペースだった屋根裏に昇降式はしごを備えた大容量収納を新設。セカンド冷凍庫の設置場所まで綿密に計画し、生活空間に物を溢れさせない仕組みを作ることで、60年分の想い出を大切に保管しながら、すっきりとした暮らしを叶えました。
リフォーム工事後のお客様の評価
築60年の難条件に他社が難色を示す中、役所調査まで行い、真摯に最善策を提案してくれたのはタイホウ建設さんだけでした。念願の家族全員の個室や小屋裏収納が実現し、断熱・耐震補強で猛暑でも安心・快適な住まいへ。シックなデザインやL字型キッチンなど、細かな理想も全て形になりました。生まれ変わった家で父も活力を取り戻し、笑顔が増えたことが何より嬉しいです。心から信頼できる『夢の空間』に感謝しています
- 所在地
- 東京都品川区
- 施工日数
- 6ヶ月
- 施工完了
- 2025年09月
- 物件種別
- 戸建
- 構造
- 木造
- 築年数
- 55年
- 面積
- 83.34m²
- 費用
- 4200万円(税込)(補助金等の制度活用:無)
- 居住者構成
-
この作品の事業者については、下記の事業者情報をご参照ください。(赤字のホームページURLをクリックすると、さらに詳しく確認いただけます!)
事業所情報
太豊建設は品川区・大田区周辺の地元の皆さまに、安心・安全をお届けする「住まいの町医者」となるため、工務店としてきめ細かいサービスを迅速にご提供しています。太豊建設スタッフ、協力職人と一丸となって、すでにある問題や想定される問題点などを洗い出し、解決して参ります。当社で定期的に開催しております各種イベントや、情報誌等を通して、地域の皆様との信頼関係を築き、地域の皆さまと末長いお付き合いをさせていただける会社・工務店を目指しております。家づくりでお悩みの際は、お気軽にご相談ください。
- 定休日
- 日曜・祝日
- 電話番号 / FAX
- 03-3786-3880 / 03-3786-3890
- 対応物件
- 戸建,マンション
この事業所の他の施工事例
-
2025
受け継いだ記憶を、この街の新しい喜びへ。
- 物件種別
- 戸建
- 面積
- 275.52m²
- 所在地
- 東京都品川区
- 費用
- 6650万円(税込)
-
2025
暮らしの質を高めるリフォームの選択
- 物件種別
- 戸建
- 築年数
- 25年
- 面積
- 9.5m²
- 所在地
- 東京都品川区
- 費用
- 385万円(税込)
-
2024
母と愛犬たちと過ごす心温まる二世帯の家
- 物件種別
- 戸建
- 面積
- 50m²
- 所在地
- 東京都品川区
- 費用
- 1000万円(税込)
-
2024
若夫婦の考えたシンプルモダンな家
- 物件種別
- その他
- 面積
- 106.2m²
- 所在地
- 東京都品川区
- 費用
- 1300万円(税込)
-
2024
特別賞
高齢の両親が心豊かに暮らせる家
- 物件種別
- 戸建
- 築年数
- 55年
- 面積
- 60m²
- 所在地
- 東京都品川区
- 費用
- 3000万円(税込)
-
2022
楽しく、安心して暮らすためのセカンドライフリフォーム
- 物件種別
- 戸建
- 築年数
- 35年
- 面積
- 64.01m²
- 所在地
- 東京都品川区
- 費用
- 1200万円(税込)
-
2022
安心・安全と、心豊かな暮らしを・・・
- 物件種別
- 戸建
- 築年数
- 35年
- 面積
- 62.3m²
- 所在地
- 東京都品川区
- 費用
- 2000万円(税込)
-
2022
未来も見据えた皆が笑顔になる住まい
- 物件種別
- 戸建
- 築年数
- 27年
- 面積
- 85m²
- 所在地
- 東京都品川区
- 費用
- 1535万円(税込)
-
2022
木の温もりを感じる家で家族の絆を永遠に
- 物件種別
- 戸建
- 築年数
- 33年
- 面積
- 64.91m²
- 所在地
- 東京都品川区
- 費用
- 1941万円(税込)
-
2022
激動の時代を生き、これからは心豊かな暮らしを楽しみたい
- 物件種別
- 戸建
- 面積
- 61.86m²
- 所在地
- 東京都品川区
- 費用
- 3500万円(税込)
-
2020
木のぬくもりに包まれたマンションライフにリノベ。
- 物件種別
- マンション
- 所在地
- 東京都品川区
- 費用
- 770万円(税込)