東京都 東京ガスリノベーション株式会社 詳細

天井高3mのダイナミックな空間を活かして "自分たちらしさ"を形にした住まいの継承リノベーション

友人の建築家が設計したご実家を住み継ぐことになったEさま。急勾配の階段や手狭な水廻りを一新して、アート・本・音楽など、お二人が大切にされているものを楽しむ快適空間へとリノベーションしました。デザイン性と機能性が溶け合う、アイデア満載の住まいです。

こだわりポイント
BeforeもしくはAfter図面あり / こだわりキッチン / こだわりトイレ / こだわりバス空間(洗面含む) / インテリア / インフィルリフォーム / グリーン化・SDGs達成(断熱・耐震含む) / プロとしてのアイデア / 補助金等のリフォーム制度利用
リフォーム部分
リビングダイニング / 寝室・個室 / キッチン / バス / 洗面室 / トイレ

LDK

キッチンとの間仕切り壁を撤去し、光が隅々まで届く開放的なLDK。こだわりポイントは、キッチンから洗面・浴室まで一直線に行き来ができる事、また、構造上外せない中2階を支える鉄骨柱を、あえてデザインのアクセントとして活用したことです。柱を起点とした「回遊動線」を確保することで、家族がすれ違いやすく、行き止まりのないスムーズな暮らしを実現しました。

LDK

リビングに一歩足を踏み入れると目を引くのは、壁一面に設えた圧巻のオーダーメイド書棚。窓から差し込む柔らかな日差しの中で、お気に入りの一冊を手にソファで寛ぐ時間は、至福の時間とのこと。
LDKの中心には、カーブの美しいカウンターを配置。カウンター下部にはゴミ箱の専用スペースを設けるなど、計算された「隠す収納」と「見せる収納」が、美しく整った日常を支えています。

LDK

高さ3mの吹き抜け空間が印象的なLDK。リビングに入ると、フルハイトの窓からの光が心地よく迎えてくれます。今回の工事で、断熱性に優れたLow-eガラスのインナーサッシを採用し、より静かで断熱性能の高い住まいになりました。

LDK

かつて収納場所だったスペースを、趣味の写真撮影の作業空間へと作り替えました。あえてキッチンとの間に「袖壁」を設けることで、適度なこもり感を演出。リビングの開放感はそのままに、作業に集中できる仕様となっています。

階段

かつては急勾配で昇り降りに不安があった階段を架け替え、手すりのある緩やかな階段に。こだわりのアイアン手すりは、担当者の提案により「3段目から」設置。「これが大正解でした。手すりのない最初の数段はベンチ代わりに腰掛けるのにもちょうど良く、家族との会話を楽しんでいます」とEさま。

玄関

アウトセット引戸タイプの玄関ドアは、カームブラック系をセレクト。天然石調のニュアンスのある玄関タイルと、既存のステンドガラスの組合せにより、洗練されたイタリアンモダンテイストの玄関になりました。

洗面室

洗面室には、壁一面を最大限に活用したオープン棚を設置しました。生活用品をまとめて収納でき、どこに何があるか一目でわかる形にすることで、在庫管理もスムーズです。キッチンからもアクセスがしやすいため、家事の合間にさっと手に取れる実用性も兼ね備えています。

洋室

「ほどよい巣ごもり感」が心地よい洋室。防音ルームのスペースを確保するため以前よりコンパクトになったものの、主寝室としてはちょうど良いサイズ感に。右手の収納スペースは折戸から、開閉しやすい引戸に変えてより使いやすくなりました。

防音ルーム

ご主人さまが40歳代で始めた合唱の練習スペースは、周囲に気兼ねなく練習ができるよう、防音ドア、吸音性能のある内装材を採用した防音仕様に仕上げました。

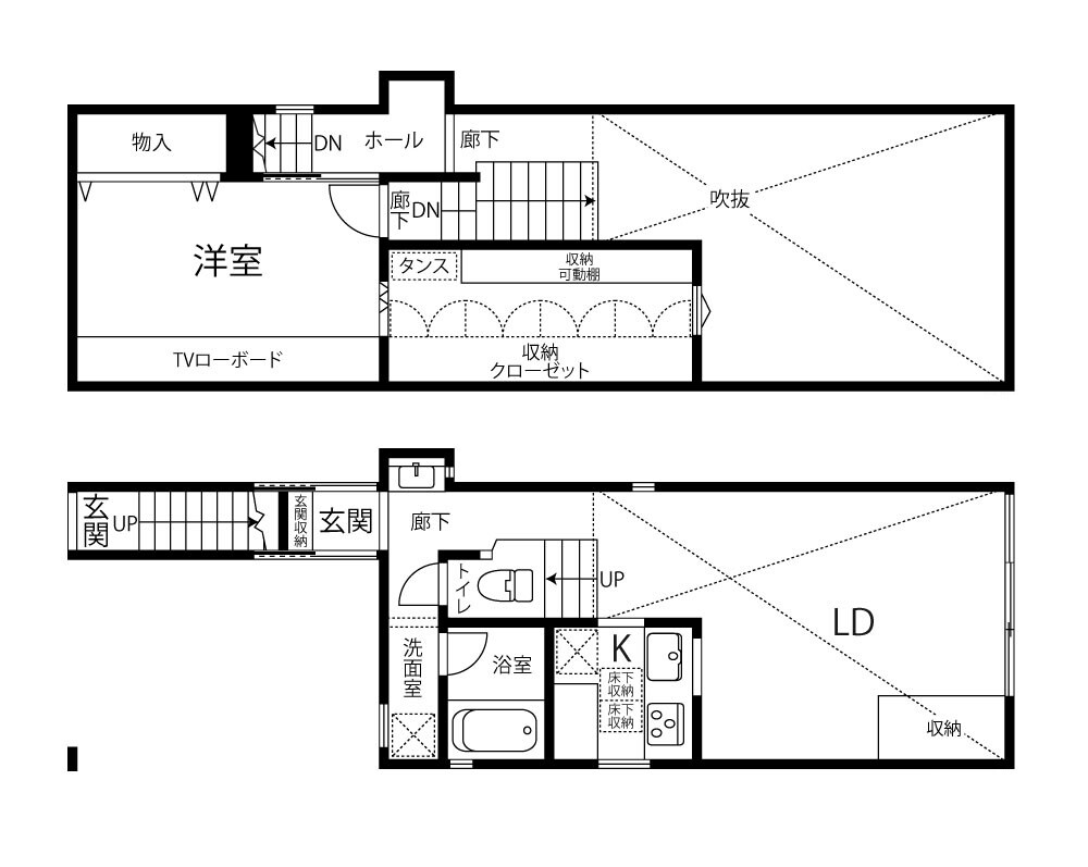
施工前後の図面

施工前後の図面

お客様のニーズ(リフォームへの要望)

・独立タイプのキッチンをオープンタイプのキッチンに変えたい
・LDKの壁一面にテレビと本が収納できるスペースが欲しい
・洗面室に脱衣スペースが欲しい
・急勾配の階段を安全な階段にしたい

お客様ニーズへの自社の対応

・既存キッチンの間仕切り壁を撤去し、LDK一体のオープンキッチンをご提案
・オーダーメイドの壁面書棚と、弓形のダイニングテーブルをご提案
・洗面室に洗濯機置き場と収納スペースを設けることをご提案
・東西の窓の断熱性を高めるため、インナーサッシの設置をご提案

リフォーム工事後のお客様の評価

階段を架け替えたことで、以前は敬遠していた中2階も安心して活用できるようになりました。提案していただいたオーダーメイドのカウンターは生まれ変わったLDKにぴったりで、食事やお茶の時などに重宝しています。全体の動線や適材適所の収納計画など、プロならではのきめ細やかな提案のお陰で住み心地もよいです。私たちの「好き」と「使いやすさ」が詰まった、理想の住まいとなりました。

所在地
東京都豊島区
施工日数
4ヶ月
施工完了
2025年05月
物件種別
戸建
構造
鉄骨造
築年数
23年
面積
74.4m²
費用
2,000万円(税込)(補助金等の制度活用:有)
居住者構成

この作品の事業者については、下記の事業者情報をご参照ください。(赤字のホームページURLをクリックすると、さらに詳しく確認いただけます!)

事業所情報

東京ガスリノベーション株式会社は、1982年創業の東京ガスグループのリフォームと不動産仲介の会社です。首都圏に店舗展開し、約7割が建築士の資格を持つリフォームのプロ集団です。男女ペアー貫体制で担当し、施主要望の丁寧なヒアリングと経験に裏打ちされた「要望+α」の提案を行います。経験豊富な女性プランナーと男性施工技術者により、細部まで行き届いた提案・施工を実現しています。

事業所名
東京ガスリノベーション株式会社
所在地
東京都品川区二葉2―9―15 NFパークビル2階
営業エリア
東京都、神奈川県、埼玉県、千葉県
営業時間
9:30~17:30
定休日
日曜日・祝祭日・夏期及び年末年始
対応物件
戸建,マンション
ホームページ
https://www.tgrv.co.jp/

お気軽にご相談ください。
会員に関する苦情についてもお受けいたします。

10:00~12:00、13:00~17:00
(夏季休暇・年末年始・土日・祝日は除く)