広島県 株式会社マエダハウジング 安佐南店 詳細

「しまう」から始まる健康生活

女性のマンションお一人住まい。明るくお元気な方で、よくお子様とお孫さんが遊びに来る賑やかな生活をされています。
体が元気なうちに、今後も快適で健康に暮らせるようにリフォームしたいとのご希望です。

こだわりポイント
BeforeもしくはAfter図面あり / こだわりキッチン / ライフスタイルの変化提案 / 新しい生活様式提案
リフォーム部分
リビングダイニング / 寝室・個室 / キッチン / バス / 洗面室 / トイレ

広がりを生む可変の間仕切り

リビングに隣接する和室は、特に何にも使われていないお部屋でした。
「和風の部屋や畳は無くても良い、リビングを広くしたい」というご要望から、
床を繋げて壁紙を揃えて一体の空間となるようにコーディネートしました。
3枚片引き戸で仕切ることで、ご家族が遊びに来た際の客室としても使うことが出来ます。

視界が広がった大きな収納のキッチン

キッチン吊戸のための下がり壁は、リビングとキッチンを隔てる閉塞感の原因となっていました。
壁を撤去し、オープンな空間にすることで視界が抜け、LDKを一部屋の大きな空間として利用できるように設計しました。
背面に大きなキッチン収納を設けることで、以前よりも収納がたくさんとれるキッチンとなり、収納重視のお施主様も満足されています。

動線なめらかにするウォークスルークローゼット

以前は持て余していた洋室2部屋は、繋げて一つのお部屋とし、大きな収納を設けました。
この収納は廊下~洋室へと繋がるウィークスルークローゼットに。
洗面室にて、乾燥機付きの洗濯機で乾かした衣類を、廊下からすぐにクローゼットに収納出来ます。
また、趣味のミシンもクローゼットに収納し、使う際は洋室に出して、洋室を趣味部屋としても利用予定です。

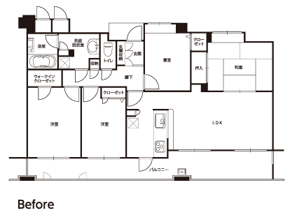
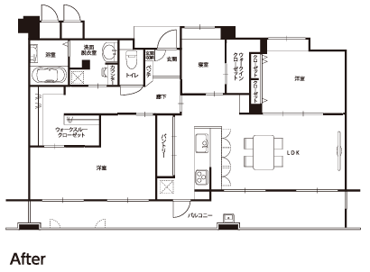
Before図面→After図面

お部屋も持て余すくらい、広いマンションでのお一人暮らしだったのに
「片付けてもなんだか物や棚がごちゃついてすっきりしない、一番良く過ごしているLDKが広く感じない」とお悩みだったお施主様。

キッチンの下がり壁を撤去し、可変の間仕切りで部屋を繋げる事で広くて明るいLDKに設計。
回遊性のある大きな収納と、しっかり隠せる収納を各場所に設置し、日々の動線をスムーズに整えました。
快適なお一人暮らしと、ご家族が気兼ねなく遊びに来られるお部屋を実現しました。

お客様のニーズ(リフォームへの要望)

▪体が元気なうちに、今後も快適で健康に暮らせるようにリフォームしたい
▪LDKを広く開放感ある空間にしたい
▪子世帯が泊まることが出来る部屋、お孫さんが遊ぶ部屋
▪物をすっきり収納して生活感を抑えたい

お客様ニーズへの自社の対応

▶キッチンの壁を撤去し、22帖の大きなLDKに変更。
▶リビングに隣接する和室を洋室に変更し3枚引戸で仕切ることで、ご家族用の部屋に。扉を開ければLDKと合わせて大空間になる。
▶廊下と洋室を大きなWTCで繋ぎました。複数の箪笥やミシン台もしっかり入るサイズ。
▶キッチンにパントリー、寝室に押入、洋室に本棚など用途に合わせた収納も沢山造作した。

リフォーム工事後のお客様の評価

LDを仕切る縦格子の格好良い扉と、たっぷりの収納がお気に入り。孫にも好評です。
沢山の物が、色々な場所にしっかり収納出来、生活しやすいのに部屋はすっきり片付きました。
内窓を付けたら、外の音が遮断されて聞こえなくなったので驚きました。
エアコンの効き目は期待通り良くなり快適です。
赤、水色など自分の好きな色をポイントに出来たのも良かったです。

所在地
広島県広島市安佐北区
施工日数
3ヶ月
施工完了
2024年07月
物件種別
マンション
構造
鉄筋コンクリート造
築年数
25年
面積
92m²
費用
1,200万円(税込)(補助金等の制度活用:無)
居住者構成

この作品の事業者については、下記の事業者情報をご参照ください。(赤字のホームページURLをクリックすると、さらに詳しく確認いただけます!)

事業所情報

事業所名
株式会社マエダハウジング 安佐南店
所在地
広島県広島市安佐南区西原4-25-25
営業エリア
広島市、安芸高田市
営業時間
9:00~18:00
定休日
水曜日
電話番号 / FAX
082-962-0322 / 082-962-1522
対応物件
戸建,マンション
ホームページ
http://www.maedahousing.co.jp/

お気軽にご相談ください。
会員に関する苦情についてもお受けいたします。

10:00~12:00、13:00~17:00
(夏季休暇・年末年始・土日・祝日は除く)