富山県 株式会社共栄ホームズ 詳細

中庭に光と風・人が集う リノベーション住宅

きっかけは、エアコン・給湯器・トイレの故障。子供部屋が必要になった。また外壁が汚れて意匠面も悪く防水面も痛んできた。当初は、これらの不便点のみのリフォームを検討していたが、見積をしたところ1000万円程度になり結局これだけかかるのなら その他の不満点も一気に解消するべくフルリノベーション工事を決意しました。
【改修後の建物性能】
●断熱等級7(UA値=0.26)●気密性(C値=0.72:第三者機関証明書付)●耐震性(IW値=1.66)

こだわりポイント
BeforeもしくはAfter図面あり / こだわりキッチン / こだわりトイレ / こだわりバス空間(洗面含む) / インテリア / インフィルリフォーム / エクステリア / グリーン化・SDGs達成(断熱・耐震含む) / プロとしてのアイデア / ライフスタイルの変化提案 / 新しい生活様式提案 / 補助金等のリフォーム制度利用
リフォーム部分
屋根・外装・外構・造園等

玄関アプローチ

カーポートから玄関扉まで屋根が無いので、雨に濡れてしまうという不満点を解消する為 玄関の位置を変えて屋根を取り付けました。また虫が湧き困っていた坪庭などの無駄なスペースを無くしタイル敷きの玄関アプローチとし、樹木も撤去し 奥行き有る玄関アプローチ空間へ甦らせました。

屋根が無いため雨に濡れながら玄関までアプローチしていた。また無駄な坪庭・樹木があり虫が湧いており 日々の手入れが大変でした。
屋根を付け、樹木を撤去し、坪庭だった場所へコンクリートを打設し玄関アプローチへ。人感センサー付き間接照明でアプローチを演出する事で奥行き有る空間へ。

玄関ホール

1坪程度しかなかった玄関ホール。除雪用具などを置くと雑多感が否めず雪国富山では明らかに収納力不足でしたので、収納力を確保できる広さを確保する為 旧水廻り空間と坪庭だった場所を玄関ホール空間へ改修し収納力を確保。冬用タイヤなどもカーポートの下に置いていて防犯面での不安も解消しました。またとても寒かった玄関ホール、基礎断熱(ネオマゼウス130mm)を施工し温度差の少ない空間へ改修しました。

除雪用具を置くと人を通るのがやっとの状態でした。タイヤなどを収納しようとすると別途外部収納庫などを設置する必要がありました。
既存玄関ホールの2倍程度に広げて、玄関クロークなども併設させ ゆったりと使用できる玄関ホールへ改修。また基礎断熱(ネオマゼウス130mm)を施工し温度差の少ない空間へ

LDK①

26帖あり暖房効率も悪く とにかく冬が寒く、また無駄なデッドスペースが多いLDK空間でした。少しでも暖房効率を上げる為21帖へ減築。窓はすべてトリプルガラスを採用。また中庭面の窓はトリプルガラスの木製(ヒノキ)サッシと障子との組み合わせで、一日の疲れを癒す和風旅館をイメージした仕上げとしました。仕上げ材は すべて珪藻土仕上げ(一部タイル)に 無垢の羽目板天井・無垢ナラフロア 自然素材のみの温かみある建物です。

26帖あり暖房効率も悪く、中庭面の大開口サッシはアルミサッシだった事もあり とにかく冬が寒く、また無駄なデッドスペースが多いLDK空間でした。
少しでも暖房効率を上げる為21帖へ減築。また窓はトリプルガラス木製サッシと障子戸との組み合わせで 一日の疲れを癒す和風旅館をイメージした仕上げにしました。断熱性はUA値=0.26へ改修。仕上げ材は すべて珪藻土仕上げ(一部タイル)に 無垢の羽目板天井・無垢ナラフロア 自然素材のみの温かみある建物です。

LDK②

隣地南面は畑となっており、朝から夕方まで農作業をしておられる為一日中カーテンを閉めて生活をしておりました。その為南面の日射取得は得られず役を果たしていない窓でした。その窓をトリプルガラスのスリ硝子(日射取得ガラス)の高窓としプライバシー性と日射取得確保を両立しました。小さくなったLDKの回遊性を保つためにキッチンは壁付けL型としました。既存の螺旋階段はそのまま利用しました。

隣地南面は畑となっており、朝から夕方まで農作業をしておられる為一日中カーテンを閉めて生活をしておりました。その為南面の日射取得は得られず役を果たしていない窓でした。
南面の窓をトリプルガラスのスリ硝子(日射取得ガラス)高窓としプライバシー性と日射取得確保を両立しました。既存の螺旋階段はそのまま利用しました。

中庭空間

四季折々を感じられたシンボルツリーのある中庭空間。ご主人は気に入っていましたが、奥様が一人になった時に手入れに困ると 樹木は撤去して欲しいとの強いご要望がありました。季節により様々な虫害にあっていました。改修後は樹木は撤去、タイルテラスとし水捌けの良い中庭空間としました。

四季折々を感じられたシンボルツリーのある中庭空間。ご主人は気に入っていましたが、奥様が一人になった時に手入れに困ると 樹木は撤去して欲しいとの強いご要望がありました。季節により様々な虫害にあっていました。
改修後 樹木は撤去、タイルテラスとし掃除のしやすい水捌けの良い中庭空間としました。

洗面・脱衣場・サンルーム水廻り空間

独立型の脱衣場が無かった為 誰かがお風呂に入ると使えなかった洗面所でした。改修後は、独立型の脱衣場とサンルーム空間を設けました。ベンチ型収納に座り中庭も望める明るく通風性の良い洗面空間です。仕上げ材もすべて珪藻土を使用しており、調湿効果にも期待しております。

独立型の脱衣場が無かった為 誰かがお風呂に入ると使えなかった洗面所でした。
改修後は、独立型の脱衣場とサンルーム空間を設けました。ベンチ型収納に座り中庭も望める明るく通風性の良い洗面空間です。

2階 子供部屋

既存建物の2階は 何人の子供に恵まれるかわからなかった為 ワンフロアの大きな空間となっておりました。この度 子供の高校進学にあたり子供部屋が必要になってきた為 作る事となりました。畳敷の小上がりで寝るスタイルでベッドは不要。デスクもタモ材で備え付けて買わない。旅館の個室をイメージした子供部屋が完成しました。ダクトレス熱交換第一種換気付きで機能性ある居室空間です。敷台の間接照明は夜間トイレ歩行用です。(夜間覚醒効果を低減)。また子供部屋間仕切りは防音仕様になっております。

既存建物の2階は 何人の子供に恵まれるかわからなかった為 ワンフロアの大きな空間となっておりました。
子供の高校進学にあたり子供部屋が必要になってきた為 作る事となりました。畳敷の小上がりで寝るスタイルでベッドは不要。デスクもタモ材で備え付けて買わない。旅館の個室をイメージした子供部屋が完成しました。ダクトレス熱交換第一種換気付きで機能性ある居室空間です。敷台の間接照明は夜間トイレ歩行用です。(夜間覚醒効果を低減)。また子供部屋間仕切りは防音仕様になっております。

外観

軒無しの外観だった為 塗り壁(ジョリパット)仕上げも汚れが目立ち、サッシ廻りには苔が生えていました。これらを改善する為に 軒無しでも雨汚れ風化に強いといわれるガルバニウム鋼板を外壁材に採用しました。また外壁~屋根の通気確保の為 専用通気金物を用いて二重屋根構造へと作り変えました。

軒無しの外観だった為 塗り壁(ジョリパット)仕上げも汚れが目立ち、サッシ廻りには苔が生えていました。
軒無しでも雨汚れ風化に強いといわれるガルバニウム鋼板を外壁材に採用しました。また外壁~屋根の通気確保の為 専用通気金物を用いて二重屋根構造へと作り変えました。

断熱仕様(断熱等級7:UA値=0.26) 気密測定風景(C値=0.72)

【Bfore】気密測定風景。中間測定C値=0.72ここから更に漏気箇所を特定し、修正施工し さらに気密性を向上させました。 気密シートには、可変透湿気密シートを使用。
【After 断熱仕様:等級7】(天井:グラスウール20K 250mm+可変透湿気密シート / 壁:外張りネオマフォーム付加断熱30mm + グラスウール36K 105mm+可変透湿気密シート / (床)ネオマゼウス大引き間65mm+垂木間60mm 合計125mm (基礎断熱)ネオマゼウス65mm+65mm=130mm (開口部)APW430 APW651 イノベストD70

【Bfore】気密測定風景です。中間測定C値=0.72ここから更に漏気箇所を特定し、修正施工し さらに気密性を向上させました。 気密シートには、可変透湿気密シートを使用。
【断熱仕様:等級7】(天井:グラスウール20K 250mm+可変透湿気密シート / 壁:外張りネオマフォーム付加断熱30mm + グラスウール36K 105mm+可変透湿気密シート / (床)ネオマゼウス大引き間65mm+垂木間60mm 合計125mm (基礎断熱)ネオマゼウス65mm+65mm=130mm (開口部)APW430 APW651 イノベストD70

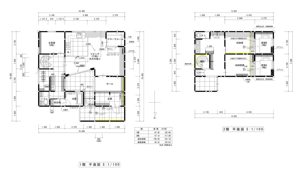
平面図【 Bfore → After 】

平面図【 Bfore → After 】  
●Bfore不満点①収納不足の玄関 ②広くて無駄の多いLDK(寒い)③中庭・坪庭の樹木等手入れ大変 ④ファミリークローゼットが独立型で寒い ⑤室内干しするスペースが無い ⑥お風呂にはいると洗面所が使えない ⑦LDK南面の窓がカーテン閉めっぱなし(プライバシー性が無い) ⑧カーポートから玄関まで屋根が無いので濡れる ⑨とにかく寒い ⑩各部屋の防音性が低い ⑪バルコニー使わない ⑫全体的に収納量不足 

●After改善点①玄関ホールを増築 ②減築 L型キッチンでコンパクトで回遊性ある空間へ ③中庭はタイルテラスへ 坪庭は玄関アプローチへ ④LDKに併設(ガラリで通気共有) ⑤サンルーム空間を独立で設けた ⑥脱衣場を独立型で設けた ⑦高窓+スリ硝子(日射取得トリプルガラス)へ変更 ⑧屋根を設置 ⑨断熱等級7へ改修 ⑩間仕切り壁にグラスウール36K施工+石膏ボード二重張り施工 ⑪納戸空間へ ⑫2階廊下すべて収納棚設置

平面図【Bfore】●不満点①収納不足の玄関 ②広くて無駄の多いLDK(寒い)③中庭・坪庭の樹木等手入れ大変 ④ファミリークローゼットが独立型で寒い ⑤室内干しするスペースが無い ⑥お風呂にはいると洗面所が使えない ⑦LDK南面の窓がカーテン閉めっぱなし(プライバシー性が無い) ⑧カーポートから玄関まで屋根が無いので濡れる ⑨とにかく寒い ⑩各部屋の防音性が低い ⑪バルコニー使わない ⑫全体的に収納量不足 
平面図【After】●After改善点①玄関ホールを増築 ②減築 L型キッチンでコンパクトで回遊性ある空間へ ③中庭はタイルテラスへ 坪庭は玄関アプローチへ ④LDKに併設(ガラリで通気共有) ⑤サンルーム空間を独立で設けた ⑥脱衣場を独立型で設けた ⑦高窓+スリ硝子(日射取得トリプルガラス)へ変更 ⑧屋根を設置 ⑨断熱等級7へ改修 ⑩間仕切り壁にグラスウール36K施工+石膏ボード二重張り施工 ⑪納戸空間へ ⑫2階廊下すべて収納棚設置

お客様のニーズ(リフォームへの要望)

●断熱改修 等級7へ改修(計算書付属)・気密施工性の向上(気密測定により証明書発行)
●間取りの不満点の改善
●耐震性への不安 IW値=1.66へ改修(計算書付属)
●メンテナンス性 (外壁材 通気工法の見直し)
●新築するよりも安く高性能にしたい

お客様ニーズへの自社の対応

●精密な3Dパースの提案(1mmの狂いもなくご提示) 「こんなイメージじゃなかった」を無くす
●現場施工性・状況を動画データーで共有。施工性を毎日目にして頂く事で、現場作業員も気をはって仕事をします
●断熱性 耐震性 気密性 すべて根拠ある書類にて具体的に示す事で安心感を持って頂く

リフォーム工事後のお客様の評価

富山の今季最大寒波 外気温-1℃の際に、就寝時にエアコンを消して無暖房で早朝室温が18℃以上もあってビックリしました。前の家とは信じられないくらいの別次元の暖かい空間になりました。まるで壁や天井 床が発熱しているかの様な感覚になりました。コストをかけた甲斐がありました。2度目の家づくりという事で 大変満足した間取りにもなりました。

所在地
富山県富山市
施工日数
6ヶ月
施工完了
2025年03月
物件種別
戸建
構造
木造
築年数
15年
面積
144.58m²
費用
2790万円(税込)(補助金等の制度活用:有)
居住者構成

この作品の事業者については、下記の事業者情報をご参照ください。(赤字のホームページURLをクリックすると、さらに詳しく確認いただけます!)

事業所情報

家づくりのプロが即座に解決。 上質な演出、確かなリフォームをお考えの方、豊富な施工実績をもとに、ご予算、ご要望に応じたご提案いたします。 共栄ホームズは再生住宅への30年の実績と最新の技術が評価され「先進的なリフォーム事業者」として経済産業大臣賞を受賞しました。

事業所名
株式会社共栄ホームズ
所在地
富山県富山市婦中町上田島52-3
営業エリア
富山県内
営業時間
9:00~18:00
定休日
水曜日
電話番号 / FAX
076-466-3091 / 076-466-3326
対応物件
戸建
ホームページ
http://kyoeihomes.com

お気軽にご相談ください。
会員に関する苦情についてもお受けいたします。

10:00~12:00、13:00~17:00
(夏季休暇・年末年始・土日・祝日は除く)