リフォームギャラリーコンテスト 特別賞
~古民家リノベーション~ 時を慈しみ新しい暮らしを重ねる場所へ
人が住まなくなり老朽化が気になっていた母屋と蔵は、明治時代に建築されたご家族の宝物。
古民家の良さを活かした快適な居住スペースに改修したいとご相談いただきました。
隣接する離れで暮らしながら特に気になっていたのは、長い軒のたわみとのこと。
その他にも見えない部分も修繕や補強をご提案しながら、ご希望の和モダン空間を実現しました。
- こだわりポイント
- BeforeもしくはAfter図面あり / こだわりキッチン / こだわりトイレ / インテリア / グリーン化・SDGs達成(断熱・耐震含む) / プロとしてのアイデア / ライフスタイルの変化提案 / 新しい生活様式提案 / 補助金等のリフォーム制度利用
- リフォーム部分
- リビングダイニング / キッチン / 洗面室 / トイレ / その他
まるでギャラリー!自慢の蔵へ
蔵と母屋をつなぐ蔵への入り口は、こだわりの空間に。
もともとある沓脱石(くつぬぎいし)の周りにアクセントとなる黒い玉砂利を敷き、和風らしさを強調しました。
ダイニングキッチンから見えるこの場所は、ご夫婦のお気に入りになりました。
職人技を感じる枠と引き戸
壁の厚みに合わせて、枠と引き戸は大工さんと一から製作しました。
壁は足場板張りにし、調和のとれた仕上がりに。
職人さんの知識や技をいかした空間は、行き来が楽しみな場所になりました。
奥様こだわりのダイニングキッチン
勾配天井で開放感を出し丸太梁を見せることで、古民家の良さがより感じられるようにしました。
明るさを出しつつ全体的に落ち着いた色でまとめ、シックな雰囲気になりました。
風情を眺めて楽しむ場所へ
ダイニングキッチンの床を下げて、入口との段差を解消しました。
生活の中心となる場所からは、歴史を感じる梁や鴨居と建具の風情を眺めて楽しめます。
和モダンなリビング
狭く感じるのがお悩みだったリビングは、天井を取り払い明るく開放的に。
空調効率を高めるため、シーリングファンを設置しました。
使いにくかった収納を壁に変え、ブルーグレーのアクセントクロスで引き締めました。
光の演出を加えた空間
勾配天井で丸太梁を見せるだけでなく、補強とデザイン性から新たに梁と柱を加えました。
意匠を損なわないよう塗装にも工夫し、新旧が馴染む美しい仕上がりになりました。
重厚な長い軒の支えを堅固に
たわみが生じて下がり気味だった長い軒を補強しました。
出入りの妨げになったりデザイン性を損ねたりしないよう、下から柱と桁を入れる工夫をしました。
京町家風の"持ち送り"を追加
大工さんのアドバイスを受け、"持ち送り"で均等な強度を維持しました。
寺社などでは彫刻を施した木製の物が使われますが、建築時の明治時代に合わせ京都の金物屋さんから取り寄せました。
夫婦自慢の秘密の小部屋
痛みが進みシロアリ被害もありましたが、徹底した構造補強を施し再生。
趣味などフレキシブルに使うことが出来る、オシャレで無駄のない空間に生まれ変わりました。
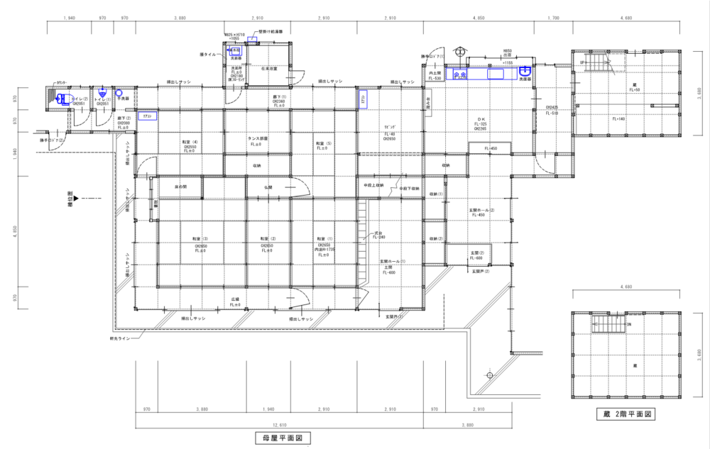
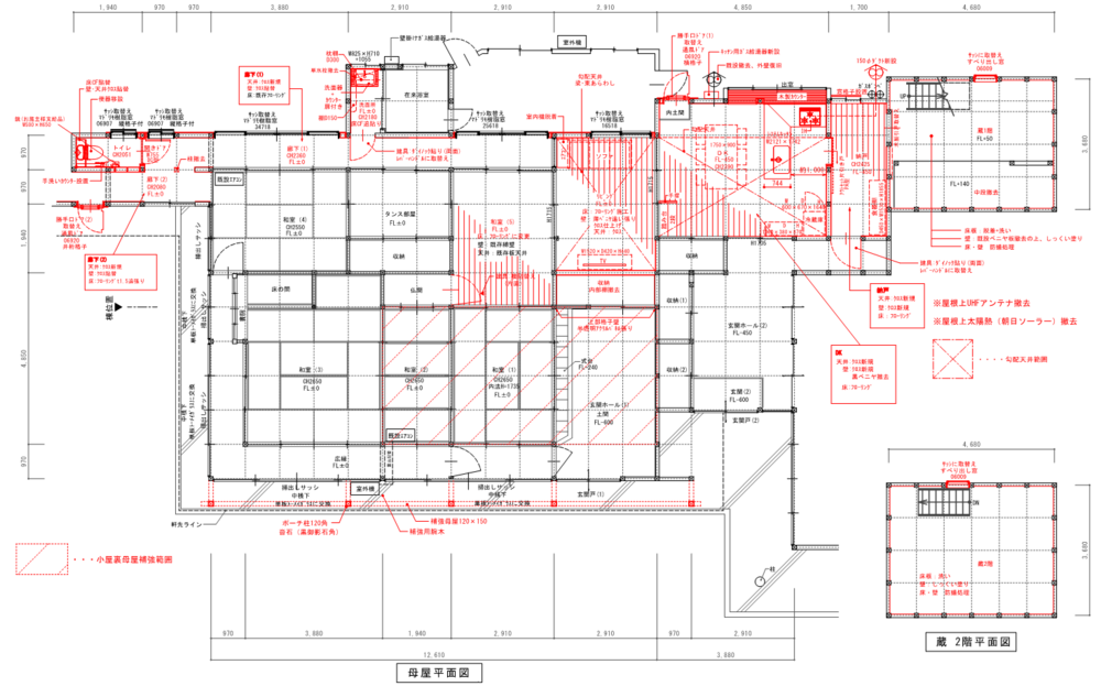
平面図
元の建築が素晴らしく、職人さんたちと楽しく取り組むことができました。
小屋裏で見つけた昔の木札や、原爆の爆風による傾き、床下から出てきた土砂災害時の泥なども確認でき、歴史の重みと責任を感じる学びの多い現場でした。
お客様のニーズ(リフォームへの要望)
蔵と母屋の老朽化が気になるので、修繕とあわせて住めるようにリフォームしたい。
ダイニングキッチンを一新し、使いやすくしたい。
壁に漆喰を塗りたい。
お客様ニーズへの自社の対応
老朽化の著しい蔵には、構造躯体の補強や防蟻対策を実施。
古民家の良さを残しつつ、快適に住めるよう断熱や補強を実施。
勾配天井にし既存の丸太梁を見せることで、古民家ならではの良さを演出。
キッチンは全体の内装に合うことと奥様の好みに合うことを両立できるよう、こだわって設備を選定。
リフォーム工事後のお客様の評価
和モダンがテーマとは決まっていましたが、デザイン性と使いやすさのバランスはあまりピンときていませんでした。
どちらも両立するよう細やかに工夫していただいたので、とても満足しています。
特に蔵の改修に関する提案は安全にかかわる所が多く、地震が来る前に改修できて一安心です。
私たちが気づかなかったり見えなかったりする部分もプロにしっかり確認して説明してもらい、納得してリフォームすることができました。
おかげさまで先祖が残してくれた家を次の時代につなぐという使命が果たせ、とても感謝しています。
- 所在地
- 広島県広島市安佐南区
- 施工日数
- 6ヶ月
- 施工完了
- 2025年10月
- 物件種別
- 戸建
- 構造
- 木造
- 築年数
- 100年以上
- 面積
- 130.13m²
- 費用
- 1760万円(税込)(補助金等の制度活用:有)
- 居住者構成
-
この作品の事業者については、下記の事業者情報をご参照ください。(赤字のホームページURLをクリックすると、さらに詳しく確認いただけます!)
事業所情報
- 定休日
- 土曜日、日曜日、祝日
- 電話番号 / FAX
- 082-962-5380 / 082-962-5381
- 対応物件
- 戸建,マンション
- ホームページ
- http://hokuei.hiroshima.jp/
この事業所の他の施工事例
-
2025
一年中快適に!家族みんなが心地よいダイニングキッチン
- 物件種別
- 戸建
- 所在地
- 広島県広島市安佐北区
- 費用
- 320万円(税込)
-
2025
毎日がより楽しく!水まわりのリフォーム
- 物件種別
- 戸建
- 築年数
- 38年
- 面積
- 147m²
- 所在地
- 広島県廿日市市
- 費用
- 380万円(税込)
-
2024
築40年のマンションが生まれ変わる
- 物件種別
- マンション
- 築年数
- 41年
- 所在地
- 広島県広島市中区
- 費用
- 680万円(税込)
-
2024
特別賞
一人暮らしの高齢者が安全に快適に暮らせる空間
- 物件種別
- 戸建
- 所在地
- 広島県広島市安佐北区
- 費用
- 350万円(税込)
-
2024
共働き夫婦の家事を助ける、大容量ファミリークローゼット
- 物件種別
- マンション
- 築年数
- 30年
- 面積
- 17.5m²
- 所在地
- 広島県広島市
- 費用
- 200万円(税込)
-
2023
ご両親との思い出の古民家を次の時代へ・・・
- 物件種別
- 戸建
- 所在地
- 広島県安芸太田町
- 費用
- 852万円(税込)
-
2023
ホテルライクな水まわり空間
- 物件種別
- その他
- 所在地
- 広島県広島市南区
- 費用
- 447万円(税込)
-
2022
大人の遊び心を詰め込んだ秘密基地
- 物件種別
- 戸建
- 築年数
- 3年
- 所在地
- 広島県廿日市市
- 費用
- 1,160万円(税込)
-
2021
特別賞
築123年の古き良き趣を残した古民家再生
- 物件種別
- 戸建
- 築年数
- 100年以上
- 所在地
- 広島県広島市佐伯区
- 費用
- 2,530万円(税込)