福井県 株式会社マイン企画 詳細

脳トレ間取り

間取り変更は、お客様の想いを組み、それに寄り添いながらも、いかに快適・実用的なプランとなるかの提案も大切と日々実感しています。なじみのお客様と家は3度建てようやく思い通りとなるとよく言ったものだとお話したことがあります。まさに皆さまの声の集積は明日の素敵な間取り提案の糧!

リフォーム部分
リビングダイニング / 寝室・個室 / キッチン / バス / 洗面室 / トイレ

間取り変更前

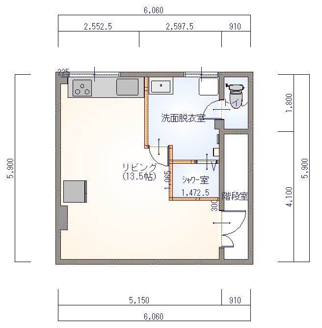
鉄骨造テナント兼自宅の2階一室、浴室はなく水廻りもミニキッチンとトイレのみの居室に、シャワールームを設置し、他水廻りのリニューアルをするのに最適な間取りを考えたいとのご希望からスタートしました。

施工前平面図
改修後平面図

キッチン入替

今回はクリナップのラクエラシリーズで決定。扉色はアイアングレーとシックな面立ちで、シンプルな居室内装とマッチングしていますね。

施工前
施工後

シャワー室設置

鉄骨造にて梁せいの影響で設置位置や、設置高にも配慮が必要でした。数社メーカーで見積りをとり寸法を見ましたが、唯一1社のみ天井高をクリアできるというところでした。室内の照明を電球色になさり、とても柔らかく温かい空間となりました。

シャワー室

脱衣スペースの空間演出

シャワールーム前の脱衣スペースにも間接照明を施し、脱衣室スペースも含めた全体的な演出となりました。

間接照明

洗面化粧台

クリナップのファンシオは、洗面ボールの中に1段階低めの物置スペースがあるから好まれること多いです。カラーがスムースミストグリーンと、白を基調とした空間に映えます。

洗面化粧台設置後

不採用案1

もともとの水廻りの壁は壊さず、また増設するシャワールームをもとの排水経路と近くして給排水設備工事、解体費用を最低限で押さえるプラン。
シャワールームは最小で当てはめても、天井高が低いゾーンであるため、ユニットが入らない!そして何より、既存のトイレの扉とぶつかってしまいます。
引戸にしても実用的なトイレの使用が不可能なため、却下となりました。

不採用案1

不採用案2

シャワールームを天井高が確保できる居室中央側に移動。また階段室と並行に洗面室通路を設け、そこへ並列にシャワールームを配置することで洗面室へ入ってすぐには脱衣場の様子が分からないように配慮しました。しかし、赤点線上に梁が走行し水色のゾーンよりシャワールームを南へはもってこれないため、洗面室入口は間口最大70㎝、またシャワールーム横壁にデッドスペースが生じそこを壁付け棚にするか…とご相談ののち、却下

不採用案2

不採用案3

ャワールームを図面向かって横置きに変更。キッチンを西面壁に平行配置へ。
まず、キッチンへ西日が差し込むため、食品扱いには不向き、トイレ利用時に脱衣スペースが見えてしまうこともあり却下となりました。

不採用案3

お客様のニーズ(リフォームへの要望)

・一部屋で全てが成立
・圧迫感のない間取り
・プライバシーの確保

お客様ニーズへの自社の対応

・一部屋に水廻り充実
・間仕切は洗面、シャワー、トイレで最小に
・洗面脱衣室への扉開き方向考慮

リフォーム工事後のお客様の評価

仕上がり、スタッフの対応、人柄等に好評を頂きました。
約1か月にわたる工期でしたが、ストレスがなくご満足いただけたとのこと                                                                                                                                                                                                                                                                                                                                                                                                                                                                                                                                                                                                                                                                                                                                                                                                                                                                                                                                                                                                                                                                                                                                                                                                                                                                                                                                                                                                                                                                                                                                                                                                                                                                                                                                                                                                                                                                                                                                                                                                       で、今後の励みにさせていたけました。

所在地
福井県福井市
施工日数
20日
施工完了
2025年08月
物件種別
その他
構造
鉄骨造
築年数
30年
面積
30m²
費用
500万円(税込)(補助金等の制度活用:有)
居住者構成

この作品の事業者については、下記の事業者情報をご参照ください。(赤字のホームページURLをクリックすると、さらに詳しく確認いただけます!)

事業所情報

・引き継がれる住まい造り ・よみがえる住まい造り ・想いを形に笑顔の絶えない住まい造り  リフォームを通じて、皆様に御満足いただける迄、お付合致します。

事業所名
株式会社マイン企画
所在地
福井県福井市木田町1914
営業エリア
福井県北部(福井市、坂井市、あわら市、越前市、鯖江市、大野市、勝山市 他)
営業時間
9:00~18:00
定休日
年末年始、お盆
電話番号 / FAX
0776-33-3501 / 0776-33-3502
対応物件
戸建,マンション
ホームページ
http://mine-k.co.jp

この事業所の他の施工事例

お気軽にご相談ください。
会員に関する苦情についてもお受けいたします。

10:00~12:00、13:00~17:00
(夏季休暇・年末年始・土日・祝日は除く)