リフォームギャラリーコンテスト アイデア部門賞
玄関と和室は、わが家のセカンドリビングへ ~趣味と団らんを叶えた多機能空間~
家を建てられてから過ごすにつれ、新築当初こだわることが出来なかったことや、家族構成や生活スタイルが変わり、今の住まいでは勝手が悪く解決したい想いで弊社へリフォームのご相談を頂きました。
漠然としていたご要望をまとめるだけでなく、リフォームを行うことでどのように環境や生活が変わっていくかなど話をさせていただき、メリットを感じて頂いたうえで弊社で工事を進めていく事に。
ですが打合せを進めていくと長期優良住宅に認定している建物だと判明...
当初ご案内していた計画や費用に変更が生じてしまう事が分かり、しっかりと説明させて頂き、一度はリフォームを断念するかもしれない場面もありましたが、ご夫婦でリフォームしてよかったねと言い合えることに期待頂き、改めて工事を進めていく決意を頂きました。
- こだわりポイント
- BeforeもしくはAfter図面あり / インテリア / プロとしてのアイデア
- リフォーム部分
- その他
玄関
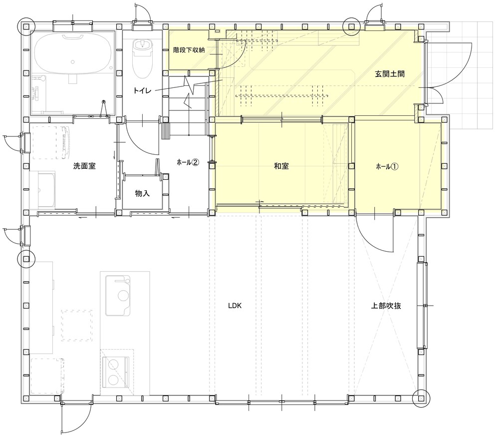
和室の一部を玄関に取り込み、収納や自転車のスペースを確保。
階段下も収納として活用。
間接照明をメイン照明にすることで、温かみのある空間に。
下がり天井部のはアイアンバーを設え、キャンプ後の服を干して臭い対策も考慮。
土間にキャンプ用のチェアを置いてゆったりする時間にも活用。
ホール
ホールの面積は変えず、玄関収納やフローリングは既存再利用するコストダウンをご提案。
和室
使い方に困っていた和室は狭くなったものの、リビングより居る時間が長くなるほど籠れる空間に。
和室からガラス戸越しに見える玄関がお気に入り。
玄関土間の下がり天井部の木目クロスと合わせることで、まとまりのある空間に。
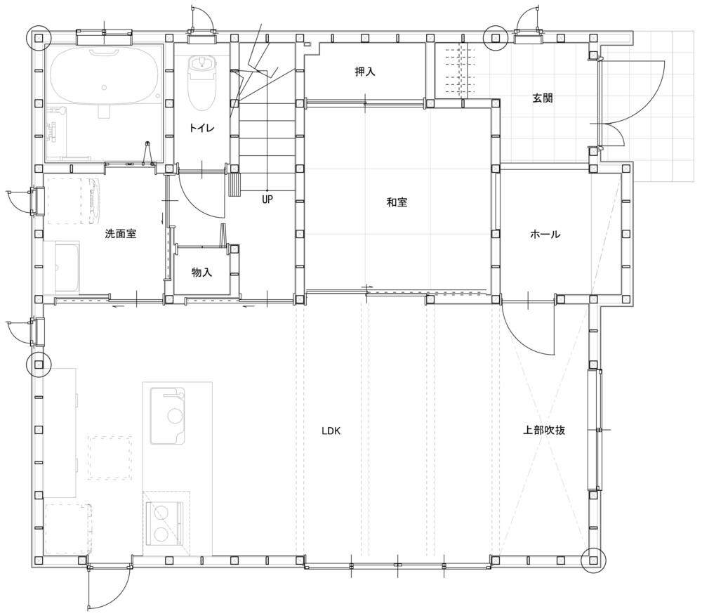
平面図
4.5帖の和室を3帖に変更・押入を撤去することで、広々とした土間兼収納スペースを確保。
階段下のスペースも活用し、階段下収納として造作。
お客様のニーズ(リフォームへの要望)
■家族の趣味であるキャンプのグッズやアイテムを玄関に置きたい・収納したい。
■外に置いている自転車を玄関に2台置けるスペースが欲しい。
■使い方に困っている和室を活用したい。
お客様ニーズへの自社の対応
■押入含め2.5帖分の和室スペースを玄関として拡張。
和室スペースは最低限に残し、キャンプグッズは収納のしやすさを重視して可動棚をご提案。
■和室を多様に利用できる空間に。
和室の段差(高さ)を利用して室内干し用のアイアンバーに服をかけたり、ガラスの反射を鏡代わりにダンスの練習をしたり、ピアノの練習をしたり。
和室縮小による狭さを感じさせない工夫として、和室と玄関土間の堺にガラス戸の設置をご提案。
ガラス戸越しにお気に入りの玄関を眺め、おこもり空間としても利用。
■長期優良住宅認定の建物の改装
打合せ中に長期優良住宅認定の建物だと判明。
耐震性や断熱性など定められた基準を守り、変更申請手続きを行い問題なく工事完了。
リフォーム工事後のお客様の評価
ふわっとした考えしかなかった私たちの要望に、的確なアドバイス・提案を頂き安心して最初から最後までお願いすることができました!
使い方の分からなかった和室は、リビングより居る時間が長くなった気がします(笑)
ひとり時間をつくれたり、時には家族とゆったりとくつろげたりと、様々な使い方ができる場所となり大満足です!
1番の問題点だった収納も、開放的で収納しやすいレイアウトにしてくださり工事をお願いして本当によかったと思います!
- 所在地
- 広島県熊野町
- 施工日数
- 45日
- 施工完了
- 2025年03月
- 物件種別
- 戸建
- 構造
- 木造
- 築年数
- 12年
- 面積
- 16m²
- 費用
- 295万円(税込)(補助金等の制度活用:無)
- 居住者構成
-
この作品の事業者については、下記の事業者情報をご参照ください。(赤字のホームページURLをクリックすると、さらに詳しく確認いただけます!)
事業所情報
この事業所の他の施工事例
-
2025
Do it "ONE TEAM" self
- 物件種別
- マンション
- 築年数
- 19年
- 面積
- 72m²
- 所在地
- 広島県広島市西区
- 費用
- 460万円(税込)
-
2025
Less is More~シンプルで美しい私たちの暮らし~
- 物件種別
- マンション
- 築年数
- 19年
- 面積
- 65m²
- 所在地
- 広島県広島市中区
- 費用
- 1100万円(税込)
-
2025
見えない敵から家族を守る!!安心+好きなもの=快適
- 物件種別
- 戸建
- 築年数
- 25年
- 面積
- 55m²
- 所在地
- 広島県広島市東区
- 費用
- 1300万円(税込)
-
2025
和の余白×暮らしの余裕
- 物件種別
- マンション
- 築年数
- 24年
- 面積
- 12m²
- 所在地
- 広島県広島市南区
- 費用
- 350万円(税込)
-
2024
籐の温もりで家族の新たな生活に彩りを
- 物件種別
- マンション
- 築年数
- 28年
- 面積
- 10m²
- 所在地
- 広島県呉市
- 費用
- 1700万円(税込)
-
2024
ほぼビルド~夫婦の手作りハウス
- 物件種別
- マンション
- 築年数
- 30年
- 面積
- 55m²
- 所在地
- 広島県広島市
- 費用
- 660万円(税込)
-
2023
70代の夫婦が選んだ終の棲家は"ワンルームスタイル"
- 物件種別
- マンション
- 築年数
- 32年
- 面積
- 85m²
- 所在地
- 広島県海田町
- 費用
- 1268万円(税込)
-
2023
これからのリフォーム提案!!~『壊さない、捨てない』 新たな価値の創造~
- 物件種別
- 戸建
- 築年数
- 28年
- 面積
- 115.9m²
- 所在地
- 広島県広島市安芸区
- 費用
- 900万円(税込)
-
2023
それぞれの生活リズムで暮らす~我が家はファミリーシェアハウス~
- 物件種別
- マンション
- 築年数
- 41年
- 面積
- 78m²
- 所在地
- 広島県広島市
- 費用
- 1100万円(税込)
-
2020
セカンドライフ 夫の退職を前に、老後の生活を より豊かにするためにリフォーム
- 物件種別
- 戸建
- 築年数
- 26年
- 面積
- 70m²
- 所在地
- 広島県広島市安芸区
- 費用
- 1,200万円(税込)