こだわりにメリハリ! 水まわり満足リモデル
ご自身の仕事の退職と出産を控えたお嬢様夫婦との同居、というお客さまのライフステージが変わるタイミングに合わせ、リモデルをご決断。
ご両親から受け継がれたお家で、以前から気になっていた水まわり設備を中心にアップデートされました。
ご家族が増えるということもあり、玄関ホールから階段下収納、パントリー、キッチンへとつながる動線を改善し、使い勝手の向上も図ることとなりました。
- こだわりポイント
- BeforeもしくはAfter図面あり / こだわりキッチン / こだわりトイレ / こだわりバス空間(洗面含む) / プロとしてのアイデア / ライフスタイルの変化提案 / 補助金等のリフォーム制度利用
- リフォーム部分
- リビングダイニング / キッチン / バス / 洗面室 / トイレ / その他
LDK
TOTO「ザ・クラッソ」のI型をご採用いただきました。
クリスタルカウンターのトップと一体感のあるスクエアすべり台シンク(クリスタル)です。
高い機能性と美しい表面仕上げを両立したトップグレードの仕様になっています。
大きなサイズの食洗機もしっかり収められています。 パントリーからの動線の見直しにともなって、レイアウト変更も提案いたしました。
あまり使っていなかった食器棚を移動し、キッチンカウンターにダイニングテーブルを寄せるセッティングとしました。ご両親から受け継いだテーブルに合わせて、カウンター背側のサイズや仕様も決めています。
浴室
TOTOの「シンラ」HLシリーズ(1620・1.25坪タイプ)を選ばれました。
ファーストクラス浴槽や楽湯など、最新機能を備えたラグジュアリーなデザインのバスルームです。
広めの1.25坪タイプですので、ゆったりとしたバスタイムを過ごしていただけます。
久しぶりにTOTOショールームを訪れたお客さまを驚かせたのは、柔らかく、冬場もひんやりしない「お掃除ラクラクほっカラリ床」でした。
心地良さと質感、お掃除の楽さを兼ね備えたTOTOならではの人気アイテムです。
断熱のために内窓(二重サッシ)を取り付けており、更にガラスの間にブラインドのスラットが封入されたブラインドイン複層ガラス(LIXIL)でより高い遮熱効果、光と視線のコントロールも実現しています。
洗面室
TOTOの「オクターブスリム」をご採用いただきました。空間を広く使える奥行き430㎜のスリムカウンターが特徴です。
豊富な収納オプションもセットされ、とても使いやすい洗面台となっています。
1Fトイレ
メンテナンス性に優れた「ピュアレストQR」と高機能な「アプリコットF3A」を採用。
独立した手洗い器(コンフォートシリーズ)を設けて利便性を高めつつ、こだわりのアクセントクロスで個性的で明るいレストルームに仕上げました。
2Fトイレ
1階同様「ピュアレストQR」を採用し、清掃性と予算のバランスを重視。
シンプルな中にも、お気に入りの柄物クロスを一面に取り入れることで、遊び心を感じられる落ち着いた空間になっています。
玄関ドア
国の補助金(子育てグリーン住宅支援事業)も利用して、断熱性・防犯性の高いものと交換しています。
ワンタッチ解錠できる電子キーのため、片手でも開けやすくなっています。採風窓のあるデザインを選ばれました。
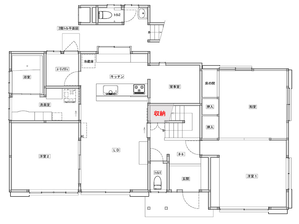
階段下収納
以前の階段下は、キッチン側からしか使えない奥行きのある暗い「物置」でした。
奥のものが取り出しにくく、せっかくのスペースが十分に活用されていない状態でした。
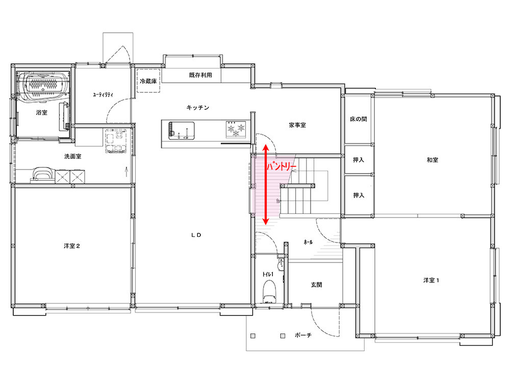
今回のリフォームでは、階段下の壁を思い切って開口し、キッチンから玄関ホールへと通り抜けられる「ウォークスルーパントリー」へと作り替えました。
買い物から帰宅後、玄関からパントリーへ直接荷物を運び込み、そのままキッチンへ。重い食材の運び入れもスムーズな「家事楽動線」が完成しました。
扉を開けるとパッと目を引く、鮮やかなライムイエローの北欧風アクセントクロスを採用。
暗くなりがちな階段下に明るさと彩りを与え、家事の合間に気分が上がる空間に仕上げました。
平面図【 Before → After 】
「階段下収納を『通り抜けられるパントリー』へ。劇的に向上した家事動線」
リフォーム前(Before図面)、玄関ホールとキッチンの間に位置する階段下は、ホール側からのみアクセスできる独立した「収納」スペースでした。
今回のリフォーム(After図面)では、この階段下収納の壁をキッチン側にも開口。
玄関ホールからパントリー(階段下)を通り、そのままキッチンへと抜けられる新たな回遊動線を創出しました。
これにより、買い物から帰宅後、重い荷物をそのままパントリーへ運び入れたり、キッチンから洗面・浴室への移動がスムーズになったりと、家事効率が大幅に向上。
家族が増える新生活に対応した、機能的な間取りへと生まれ変わりました。
お客様のニーズ(リフォームへの要望)
●ライフステージの変化(同居・出産)に伴う、家事動線の改善
●予算を抑えつつも、こだわりたい設備は妥協したくない(メリハリ)
●老朽化した水まわりの刷新と、冬場の寒さの解消
●大量に残された家財道具の整理(実家じまい)への不安
●遊び心ある内装(壁紙)にしたいが、派手になりすぎないか心配
お客様ニーズへの自社の対応
●階段下の収納スペースを改修し、玄関ホールからパントリー、キッチンへと直接抜けられる回遊動線を新たに確保することで、使い勝手を向上させました 。
●キッチンと浴室はハイグレードな仕様を採用する一方、トイレなどは機能性を重視した仕様にするなど、製品グレードにメリハリをつけることで、予算内で満足度の高いプランを提案しました 。
●浴室には「シンラ」や「お掃除ラクラクほっカラリ床」を採用し、さらに断熱内窓(ブラインドイン複層ガラス)を取り付けることで、断熱性と快適性を飛躍的に高めました 。
●ご両親から引き継いだ家具や不用品の処分・整理をリフォーム工事をきっかけとして、お客様に断捨離を提案しました 。
●柄のある個性的な壁紙を、部屋全体ではなく一面のみのアクセントクロスとして採用するようアドバイスし、コストを抑えつつ上品で落ち着いた空間に仕上げました 。
リフォーム工事後のお客様の評価
「片付けからのスタートでしたが、二人三脚で理想の住まいが叶いました」
両親から受け継いだ家は荷物が多く、「実家じまい」からのスタートでした。「そもそもリフォームできるのか」と不安でしたが、担当の方が家具の処分や整理まで手厚くサポートしてくださり、無事に工事を終えることができました。
<リモデルして良かったポイント>
予算と仕様の「メリハリ」 こだわりたい水まわりはハイグレードに、その他はプロにお任せ。
予算を抑えつつ、家族全員が納得できる満足度の高いプランになりました。
遊び心のある内装 「派手かな?」と思う柄物の壁紙も、プロのアドバイスでアクセントクロスとして採用。
コストを抑えながら、お気に入りの空間に仕上がりました。
家族のイメージ共有 ショールームへ家族全員で足を運び、新しい暮らしのイメージを共有できたことが、家づくりの楽しい思い出になりました。
- 所在地
- 東京都世田谷区
- 施工日数
- 16日
- 施工完了
- 2025年06月
- 物件種別
- 戸建
- 築年数
- 40年
- 面積
- 42.3m²
- 費用
- 850万円(税込)(補助金等の制度活用:有)
- 居住者構成
-
この作品の事業者については、下記の事業者情報をご参照ください。(赤字のホームページURLをクリックすると、さらに詳しく確認いただけます!)
事業所情報
- 定休日
- 日・祝日、GW、夏季休暇、年末年始
- 電話番号 / FAX
- 093-951-2733 / 093-951-2884
- 対応物件
- 戸建,マンション
- ホームページ
- https://trs.jp.toto.com/
この事業所の他の施工事例
-
2025
扉一枚の安心動線。40年の旧家を完全バリアフリーへ
- 物件種別
- 戸建
- 築年数
- 40年
- 面積
- 97.55m²
- 所在地
- 滋賀県竜王町
- 費用
- 1800万円(税込)
-
2025
造作で叶えるオリジナル洗面化粧台
- 物件種別
- 戸建
- 築年数
- 23年
- 面積
- 7.5m²
- 所在地
- 東京都練馬区
- 費用
- 160万円(税込)
-
2025
夫婦のこだわり色で彩る理想の家
- 物件種別
- 戸建
- 築年数
- 23年
- 所在地
- 東京都世田谷区
- 費用
- 1011万円(税込)
-
2025
夫婦でくつろぐ、和と洋が調和した上質な住まい
- 物件種別
- マンション
- 築年数
- 23年
- 面積
- 8.6m²
- 所在地
- 東京都世田谷区
- 費用
- 347万円(税込)
-
2024
アーバンモダンでホテルライクな空間 ~ 機能的な家事動線で快適なランドリールーム ~
- 物件種別
- 戸建
- 築年数
- 38年
- 面積
- 12m²
- 所在地
- 東京都世田谷区
- 費用
- 1,140万円(税込)
-
2024
心地よい暮らしを叶えるリノベーション
- 物件種別
- マンション
- 築年数
- 36年
- 面積
- 36m²
- 所在地
- 滋賀県大津市
- 費用
- 847万円(税込)
-
2024
塗り壁とタイルで魅せるトイレリフォーム
- 物件種別
- 戸建
- 築年数
- 40年
- 面積
- 1.6m²
- 所在地
- 福岡県北九州市小倉南区
- 費用
- 200万円(税込)
-
2024
「間取り変更」で叶う、こだわりの住まい
- 物件種別
- マンション
- 築年数
- 35年
- 面積
- 96m²
- 所在地
- 福岡県北九州市小倉北区
- 費用
- 900万円(税込)
-
2023
ハイグレードな設備とお客様のこだわりが詰まった優しい空間
- 物件種別
- 戸建
- 築年数
- 20年
- 面積
- 7m²
- 所在地
- 福岡県北九州市小倉北区
- 費用
- 345万円(税込)
-
2023
家族が増えても対応できるダイニングキッチン
- 物件種別
- 戸建
- 築年数
- 30年
- 面積
- 18m²
- 所在地
- 滋賀県湖南市
- 費用
- 486万円(税込)
-
2023
光が差し込む、住み継ぐ家
- 物件種別
- 戸建
- 築年数
- 30年
- 面積
- 56m²
- 所在地
- 東京都世田谷区
- 費用
- 945万円(税込)
-
2023
お客さまと夢の空間を叶えたすっきりトイレ!
- 物件種別
- マンション
- 築年数
- 23年
- 所在地
- 東京都目黒区
- 費用
- 86万円(税込)
-
2023
コンパクトで安心な住まいへ
- 物件種別
- その他
- 築年数
- 49年
- 面積
- 17m²
- 所在地
- 東京都新宿区
- 費用
- 514万円(税込)
-
2023
収納プランもしっかり取り入れたスッキリキッチン!!
- 物件種別
- 戸建
- 所在地
- 東京都世田谷区
- 費用
- 435万円(税込)
-
2023
親子のコミュニケーション育む素敵なキッチンリフォーム
- 物件種別
- その他
- 築年数
- 25年
- 面積
- 25m²
- 所在地
- 福岡県北九州市小倉北区
- 費用
- 460万円(税込)
-
2023
特別賞
生活の変化も「バリアフリー」リフォームで解決
- 物件種別
- 戸建
- 築年数
- 50年
- 面積
- 40m²
- 所在地
- 滋賀県湖南市
- 費用
- 458万円(税込)
-
2022
水まわりリフォームで「 ホテルライク 」を楽しむ
- 物件種別
- マンション
- 築年数
- 19年
- 所在地
- 東京都目黒区
- 費用
- 456万円(税込)
-
2022
暮らしやすさに合わせた住まいづくり
- 物件種別
- マンション
- 築年数
- 40年
- 面積
- 40.9m²
- 所在地
- 福岡県北九州市小倉北区
- 費用
- 670万円(税込)
-
2022
スマートで快適な暮らしをつくる
- 物件種別
- 戸建
- 築年数
- 60年
- 所在地
- 東京都世田谷区
- 費用
- 950万円(税込)
-
2022
ラグジュアリーホテルライクな浴室
- 物件種別
- マンション
- 築年数
- 16年
- 面積
- 6m²
- 所在地
- 福岡県北九州市小倉北区
- 費用
- 370万円(税込)
-
2022
大胆な柄のクロスで、素敵な空間に!
- 物件種別
- マンション
- 築年数
- 10年
- 面積
- 1.3m²
- 所在地
- 福岡県北九州市小倉北区
- 費用
- 110万円(税込)
-
2022
「 素材 」と「 技術 」が織りなす魅せる洗面室
- 物件種別
- 戸建
- 築年数
- 20年
- 面積
- 5.5m²
- 所在地
- 福岡県北九州市小倉北区
- 費用
- 137万円(税込)
-
2022
こだわりトイレ空間部門賞
暮らしを安心・快適に「オストメイト対応トイレ」
- 物件種別
- 戸建
- 築年数
- 40年
- 面積
- 8.5m²
- 所在地
- 福岡県北九州市小倉北区
- 費用
- 245万円(税込)
-
2021
シンプルモダンでも、工夫がつまった洗面室
- 物件種別
- 戸建
- 築年数
- 14年
- 面積
- 8.3m²
- 所在地
- 東京都世田谷区
- 費用
- 376万円(税込)
-
2021
バリアフリーで、動線もスムーズな「トイレ・洗面・浴室」
- 物件種別
- 戸建
- 築年数
- 30年
- 面積
- 7m²
- 所在地
- 東京都世田谷区
- 費用
- 432万円(税込)
-
2021
リフォームで叶える理想の「終の棲家(ついのすみか)」
- 物件種別
- 戸建
- 築年数
- 40年
- 面積
- 61m²
- 所在地
- 滋賀県大津市
- 費用
- 1,190万円(税込)
-
2021
100年の古民家をモダンリフォーム
- 物件種別
- 戸建
- 築年数
- 100年以上
- 面積
- 167m²
- 所在地
- 滋賀県竜王町
- 費用
- 2950万円(税込)
-
2021
こだわりトイレ部門賞
やわらかフォルムの和モダントイレ
- 物件種別
- 戸建
- 所在地
- 福岡県北九州市八幡東区
- 費用
- 200万円(税込)