夫婦でくつろぐ、和と洋が調和した上質な住まい
マンションをご購入されて22年。
お子様が独立されたことを機に、「これからは夫婦でくつろげる空間を」とリフォームをご依頼いただきました。
ご主人の書斎だった洋室は、ご実家から受け継いだ大切な掛け軸を飾るための「床の間」がある、趣深い和の空間へ。
また、奥様とお子様が好きな建築家、フランク・ロイド・ライトの建築をイメージし、月日を重ねた住まいに新たな価値とくつろぎをもたらすリフォームが完成しました。
- こだわりポイント
- BeforeもしくはAfter図面あり / インテリア
- リフォーム部分
- リビングダイニング / 寝室・個室
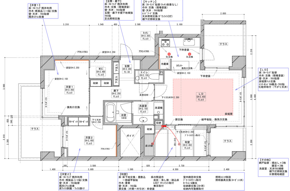
洋室 → 和室
ご主人の書斎として使われていた洋室を、ご要望の和室へと大胆にリフォームしました。
【 こだわりの床の間 】
ご実家から受け継がれた大切な掛け軸を美しく飾るため、空間の中心となる床の間を造作しました。
天井には和の趣を深める網代(あじろ)模様のクロス、床柱には天然赤松を採用し、選び抜かれた素材の風合いを大切にしています。
また、床をあえて9mm高くすることで空間にメリハリをつけました 。
【 心地よい床材 】
畳は「茶室風に」というご要望を受け、畳縁は無地で選定しています。
清々しい天然い草の香りが、和室ならではの特別感を高めてくれます 。
リビングとの境目の縁甲板には、素足に心地よい「なぐり加工」が施されたウッドワン社の「ピノアース足感フロア」を選定しました 。
【 細部へのこだわり 】
襖の引手は、お客さまご自身が上野の専門店「東京松屋」で見つけられたこだわりの「ナツメ」を使用 。
お客さまの想いが加わることで、空間全体への愛着が深まります。
窓には障子ではなく、採光調整と目隠しが両立できるプリーツスクリーンをセレクト。既存のエアコンやカーテンボックスを活かしながら、モダンですっきりとした印象にまとめました 。
リビングダイニング
長年の暮らしで傷や汚れが気になっていた内装を一新。
お客さまが好きな建築家フランク・ロイド・ライトの世界観をシンプルに表現しました 。
【 上質なデザイン 】
代表作「ヨドコウ迎賓館」を彷彿とさせる、落ち着いた色合いの壁紙を吟味 。
光の当たり方や広い面積で見たときの印象も計算し、安らぎと気品に満ちた空間を目指しました。
リビングの下がり天井に飾り板を設けることで、空間に奥行きとデザイン性を加えました 。
【 統一感のある仕上がり 】
フローリングの張り替えに合わせ、巾木は無塗装のものを採用し、既存の建具枠の色に合わせて現場で塗装しました 。
また、和室への入り口として新設したドアも同様に色を合わせることで、リフォームした部分と既存部分が美しく調和しています 。
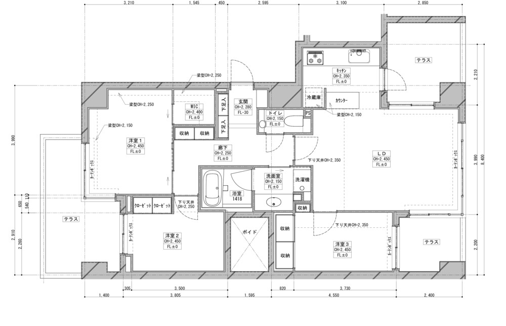
平面図【 Before → After 】
経年による内装の傷みを刷新し、現代的な意匠と機能性を加えたリフォーム工事。
既存の「洋室3」を「和室」へと用途変更。
また、既存の床暖マットの耐用年数を考慮して、これからも安心して床暖房が使えるよう、床暖マットの入替と、仕上のフローリングの張り替えを行いました。
お客様のニーズ(リフォームへの要望)
お客さまのご要望
・長年暮らしてきた家の、壁紙の汚れや巾木の傷が気になっていた。
・畳の上でゆったりとくつろげる和室が欲しい。
・実家から譲り受けた大切な掛け軸を、きちんと飾れる場所をつくりたい。
- 所在地
- 東京都世田谷区
- 施工日数
- 60日
- 施工完了
- 2025年07月
- 物件種別
- マンション
- 構造
- 鉄筋コンクリート造
- 築年数
- 23年
- 面積
- 8.6m²
- 費用
- 347万円(税込)(補助金等の制度活用:無)
- 居住者構成
-
この作品の事業者については、下記の事業者情報をご参照ください。(赤字のホームページURLをクリックすると、さらに詳しく確認いただけます!)
事業所情報
- 定休日
- 日・祝日、GW、夏季休暇、年末年始
- 電話番号 / FAX
- 093-951-2733 / 093-951-2884
- 対応物件
- 戸建,マンション
- ホームページ
- https://trs.jp.toto.com/
この事業所の他の施工事例
-
2025
扉一枚の安心動線。40年の旧家を完全バリアフリーへ
- 物件種別
- 戸建
- 築年数
- 40年
- 面積
- 97.55m²
- 所在地
- 滋賀県竜王町
- 費用
- 1800万円(税込)
-
2025
造作で叶えるオリジナル洗面化粧台
- 物件種別
- 戸建
- 築年数
- 23年
- 面積
- 7.5m²
- 所在地
- 東京都練馬区
- 費用
- 160万円(税込)
-
2025
夫婦のこだわり色で彩る理想の家
- 物件種別
- 戸建
- 築年数
- 23年
- 所在地
- 東京都世田谷区
- 費用
- 1011万円(税込)
-
2025
こだわりにメリハリ! 水まわり満足リモデル
- 物件種別
- 戸建
- 築年数
- 40年
- 面積
- 42.3m²
- 所在地
- 東京都世田谷区
- 費用
- 850万円(税込)
-
2024
アーバンモダンでホテルライクな空間 ~ 機能的な家事動線で快適なランドリールーム ~
- 物件種別
- 戸建
- 築年数
- 38年
- 面積
- 12m²
- 所在地
- 東京都世田谷区
- 費用
- 1,140万円(税込)
-
2024
心地よい暮らしを叶えるリノベーション
- 物件種別
- マンション
- 築年数
- 36年
- 面積
- 36m²
- 所在地
- 滋賀県大津市
- 費用
- 847万円(税込)
-
2024
塗り壁とタイルで魅せるトイレリフォーム
- 物件種別
- 戸建
- 築年数
- 40年
- 面積
- 1.6m²
- 所在地
- 福岡県北九州市小倉南区
- 費用
- 200万円(税込)
-
2024
「間取り変更」で叶う、こだわりの住まい
- 物件種別
- マンション
- 築年数
- 35年
- 面積
- 96m²
- 所在地
- 福岡県北九州市小倉北区
- 費用
- 900万円(税込)
-
2023
ハイグレードな設備とお客様のこだわりが詰まった優しい空間
- 物件種別
- 戸建
- 築年数
- 20年
- 面積
- 7m²
- 所在地
- 福岡県北九州市小倉北区
- 費用
- 345万円(税込)
-
2023
家族が増えても対応できるダイニングキッチン
- 物件種別
- 戸建
- 築年数
- 30年
- 面積
- 18m²
- 所在地
- 滋賀県湖南市
- 費用
- 486万円(税込)
-
2023
光が差し込む、住み継ぐ家
- 物件種別
- 戸建
- 築年数
- 30年
- 面積
- 56m²
- 所在地
- 東京都世田谷区
- 費用
- 945万円(税込)
-
2023
お客さまと夢の空間を叶えたすっきりトイレ!
- 物件種別
- マンション
- 築年数
- 23年
- 所在地
- 東京都目黒区
- 費用
- 86万円(税込)
-
2023
コンパクトで安心な住まいへ
- 物件種別
- その他
- 築年数
- 49年
- 面積
- 17m²
- 所在地
- 東京都新宿区
- 費用
- 514万円(税込)
-
2023
収納プランもしっかり取り入れたスッキリキッチン!!
- 物件種別
- 戸建
- 所在地
- 東京都世田谷区
- 費用
- 435万円(税込)
-
2023
親子のコミュニケーション育む素敵なキッチンリフォーム
- 物件種別
- その他
- 築年数
- 25年
- 面積
- 25m²
- 所在地
- 福岡県北九州市小倉北区
- 費用
- 460万円(税込)
-
2023
特別賞
生活の変化も「バリアフリー」リフォームで解決
- 物件種別
- 戸建
- 築年数
- 50年
- 面積
- 40m²
- 所在地
- 滋賀県湖南市
- 費用
- 458万円(税込)
-
2022
水まわりリフォームで「 ホテルライク 」を楽しむ
- 物件種別
- マンション
- 築年数
- 19年
- 所在地
- 東京都目黒区
- 費用
- 456万円(税込)
-
2022
暮らしやすさに合わせた住まいづくり
- 物件種別
- マンション
- 築年数
- 40年
- 面積
- 40.9m²
- 所在地
- 福岡県北九州市小倉北区
- 費用
- 670万円(税込)
-
2022
スマートで快適な暮らしをつくる
- 物件種別
- 戸建
- 築年数
- 60年
- 所在地
- 東京都世田谷区
- 費用
- 950万円(税込)
-
2022
ラグジュアリーホテルライクな浴室
- 物件種別
- マンション
- 築年数
- 16年
- 面積
- 6m²
- 所在地
- 福岡県北九州市小倉北区
- 費用
- 370万円(税込)
-
2022
大胆な柄のクロスで、素敵な空間に!
- 物件種別
- マンション
- 築年数
- 10年
- 面積
- 1.3m²
- 所在地
- 福岡県北九州市小倉北区
- 費用
- 110万円(税込)
-
2022
「 素材 」と「 技術 」が織りなす魅せる洗面室
- 物件種別
- 戸建
- 築年数
- 20年
- 面積
- 5.5m²
- 所在地
- 福岡県北九州市小倉北区
- 費用
- 137万円(税込)
-
2022
こだわりトイレ空間部門賞
暮らしを安心・快適に「オストメイト対応トイレ」
- 物件種別
- 戸建
- 築年数
- 40年
- 面積
- 8.5m²
- 所在地
- 福岡県北九州市小倉北区
- 費用
- 245万円(税込)
-
2021
シンプルモダンでも、工夫がつまった洗面室
- 物件種別
- 戸建
- 築年数
- 14年
- 面積
- 8.3m²
- 所在地
- 東京都世田谷区
- 費用
- 376万円(税込)
-
2021
バリアフリーで、動線もスムーズな「トイレ・洗面・浴室」
- 物件種別
- 戸建
- 築年数
- 30年
- 面積
- 7m²
- 所在地
- 東京都世田谷区
- 費用
- 432万円(税込)
-
2021
リフォームで叶える理想の「終の棲家(ついのすみか)」
- 物件種別
- 戸建
- 築年数
- 40年
- 面積
- 61m²
- 所在地
- 滋賀県大津市
- 費用
- 1,190万円(税込)
-
2021
100年の古民家をモダンリフォーム
- 物件種別
- 戸建
- 築年数
- 100年以上
- 面積
- 167m²
- 所在地
- 滋賀県竜王町
- 費用
- 2950万円(税込)
-
2021
こだわりトイレ部門賞
やわらかフォルムの和モダントイレ
- 物件種別
- 戸建
- 所在地
- 福岡県北九州市八幡東区
- 費用
- 200万円(税込)