耐震リフォームで守る安心、次世代へつなぐ住まい
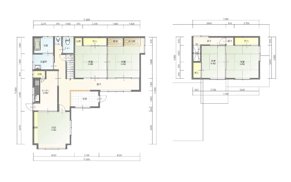
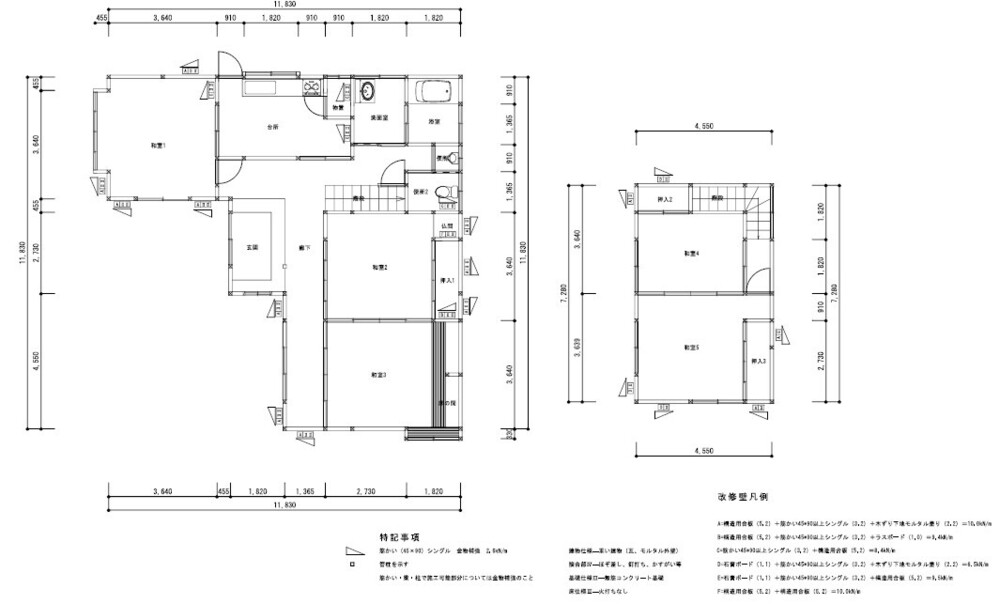
築45年の空き家だった叔母様の家を、姪ご夫婦が住み継ぐためのフルリノベーション事例です。最優先の耐震補強に加え、断熱サッシや最新設備で住宅性能を向上。危険だった急勾配の階段も架け替え、安全性も確保しました。青森ヒバの趣ある既存住宅の良さを活かしつつ、次世代が長く安心して暮らせる「住み継ぎ」リフォームを実現しました。
- こだわりポイント
- BeforeもしくはAfter図面あり / こだわりキッチン / こだわりバス空間(洗面含む) / グリーン化・SDGs達成(断熱・耐震含む) / 補助金等のリフォーム制度利用
- リフォーム部分
- キッチン / バス / 洗面室 / 屋根・外装・外構・造園等
キッチンの改修
納戸を解体し、開放的なLDKへ。TOTO「ミッテ」を採用し、IHや深型食洗機も導入。収納性と機能性を高め、家族が集まりやすい空間とした。
浴室の刷新
癒しの空間をテーマにTOTO「シンラ」を採用。「ほっカラリ床」などで冬の寒さを解消し、快適なバスタイムを実現した。
水まわり全体の快適化
洗面室は施主支給にてこだわりの洗面台で内装を一新し、清潔で機能的な空間へと生まれかわりました。
階段・廊下の安全性向上
急勾配だった階段を緩やかに改修、安全性を向上。廊下や玄関ホールもクロス貼替えで明るく清潔感のある空間に仕上げた。
間取り
市の助成制度を活用し耐震補強を計画。大きな間取り変更はせず、必要な箇所を重点的に補強。特に縁側の大開口サッシ部分は壁の新設とサッシ交換を行い、耐震性能と断熱性を同時に改善した。
お客様のニーズ(リフォームへの要望)
・今後も長く安心して住み続けるため、構造面での耐震性を最優先で強化したい。
・昔の建物特有の急な階段が危険なため、緩やかにして安全性を高めたい。
・経年劣化したキッチンや浴室、使い勝手の悪い水まわり設備を一新したい。
・冬の冷え込みが厳しい在来工法の寒さと、結露の悩みを解消したい。
・空き家期間があったため、建物の傷み具合をプロに診断・修繕してほしい。
お客様ニーズへの自社の対応
・補助金を活用し、大開口部への壁新設やサッシ交換で耐震性能を大幅に向上。
・階段を緩やかに架け替え、手すりも設置することで毎日の上り下りの安全を確保。
・最高級バス「シンラ」や高機能キッチン「ミッテ」を導入し、快適性と家事効率を改善。
・断熱窓「APW330」と断熱浴槽を採用し、家全体の温熱環境を根本から改善。
・納戸を解体してLDKを拡張し、家族が集まりやすい明るく開放的な空間へ刷新。
リフォーム工事後のお客様の評価
「補助金を使って、思っていた以上に性能の高い製品を導入できました。耐震改修は地震があって初めて効果がわかるものですが、気持ち的に安心してすごせています。窓も見た目がきれいになって、防犯防災面でも安心できます。」
- 所在地
- 宮城県塩竈市
- 施工日数
- 3ヶ月
- 施工完了
- 2024年12月
- 物件種別
- 戸建
- 構造
- 木造
- 築年数
- 45年
- 面積
- 134.92m²
- 費用
- 995万円(税込)(補助金等の制度活用:有)
- 居住者構成
-
この作品の事業者については、下記の事業者情報をご参照ください。(赤字のホームページURLをクリックすると、さらに詳しく確認いただけます!)
事業所情報
“自分の家と思って仕事します!”この言葉は我々のスローガンです。 お客様の立場になって、お客様と共に現状の問題点を洗い出し、お客様のこれからのライフスタイル、 ライフプランに沿って住環境における問題解決のお手伝いをしていきます。
- 事業所名
- 株式会社スイコー
- 所在地
- 宮城県仙台市泉区松森字陣ヶ原50-1
- 営業エリア
- 仙台市(泉区、青葉区、宮城野区、若林区、太白区)、多賀城市、塩竈市、名取市、岩沼市、富谷市、大和町、利府町
- 営業時間
- 10:00~12:00、13:00~17:00
この事業所の他の施工事例
-
2025
冬も暖かく掃除も簡単、安心して過ごせる浴室リモデル
- 物件種別
- 戸建
- 築年数
- 40年
- 面積
- 1.6m²
- 所在地
- 宮城県仙台市
- 費用
- 242万円(税込)
-
2025
「ただいま」が待ち遠しくなる、心地よい玄関リフォーム
- 物件種別
- 戸建
- 築年数
- 31年
- 面積
- 48m²
- 所在地
- 宮城県仙台市泉区
- 費用
- 300万円(税込)
-
2025
冷めないお湯が、家族を包む
- 物件種別
- 戸建
- 築年数
- 29年
- 面積
- 24.700085m²
- 所在地
- 宮城県利府町
- 費用
- 532万円(税込)
-
2025
1年後、3年後、5年後にどんどん個性が詰め込まれていくアトリエ
- 物件種別
- 戸建
- 築年数
- 27年
- 面積
- 55.2m²
- 所在地
- 宮城県七ヶ浜町
- 費用
- 709万円(税込)
-
2025
耐震評点0.29からの再生、家族の記憶を継ぐリノベーション
- 物件種別
- 戸建
- 築年数
- 50年
- 面積
- 144.49m²
- 所在地
- 宮城県仙台市太白区
- 費用
- 1,604万円(税込)
-
2024
水漏れ修繕から始まる、新たな浴室の快適空間づくり 〜SYNLAシリーズのシステムバスで日常をもっと便利に〜
- 物件種別
- 戸建
- 築年数
- 30年
- 面積
- 4m²
- 所在地
- 宮城県仙台市泉区
- 費用
- 350万円(税込)
-
2024
50年の歴史を刻む家に、新たな光と広さを 〜将来を見据えたトイレと洗面所のリフォームで、住まいの快適さを向上〜
- 物件種別
- 戸建
- 築年数
- 50年
- 面積
- 9.4m²
- 所在地
- 宮城県仙台市若林区
- 費用
- 290万円(税込)
-
2024
家族の新しい拠点と共に始まるリフォーム〜宮城での新生活を支える、自然素材と職人技が光る住まい〜
- 物件種別
- 戸建
- 築年数
- 41年
- 面積
- 39.37m²
- 所在地
- 宮城県仙台市泉区
- 費用
- 1718万円(税込)
-
2023
家族の歴史を残した家へ
- 物件種別
- 戸建
- 築年数
- 50年
- 面積
- 149m²
- 所在地
- 宮城県仙台市泉区
- 費用
- 1200万円(税込)
-
2023
これからも夫婦なかよく
- 物件種別
- 戸建
- 築年数
- 34年
- 面積
- 13.20m²
- 所在地
- 宮城県仙台市泉区
- 費用
- 590万円(税込)
-
2023
最愛の妻が、笑顔になるように
- 物件種別
- 戸建
- 築年数
- 33年
- 面積
- 33m²
- 所在地
- 宮城県利府町
- 費用
- 300万円(税込)
-
2023
きっかけは窓でした
- 物件種別
- 戸建
- 築年数
- 26年
- 面積
- 40m²
- 所在地
- 宮城県富谷町
- 費用
- 515万円(税込)
-
2023
これからを生きる子どもたちのために
- 物件種別
- 戸建
- 築年数
- 47年
- 面積
- 6m²
- 所在地
- 宮城県仙台市泉区
- 費用
- 440万円(税込)
-
2023
水回り空間部門賞
四世代の想いをつなぐ
- 物件種別
- 戸建
- 築年数
- 50年
- 面積
- 127.98m²
- 所在地
- 宮城県塩竈市
- 費用
- 2000万円(税込)
-
2023
健やかに育つ安心した住まいへ
- 物件種別
- 戸建
- 築年数
- 32年
- 面積
- 115m²
- 所在地
- 宮城県仙台市泉区
- 費用
- 2000万円(税込)
-
2023
この自宅でこれからも
- 物件種別
- 戸建
- 築年数
- 41年
- 面積
- 30m²
- 所在地
- 宮城県仙台市青葉区
- 費用
- 800万円(税込)
-
2023
娘を育てた父から、息子を育てる父へ
- 物件種別
- 戸建
- 築年数
- 41年
- 面積
- 99.92m²
- 所在地
- 宮城県仙台市泉区
- 費用
- 1700万円(税込)
-
2023
うちのお風呂、キレイだし暖かいの!
- 物件種別
- 戸建
- 築年数
- 34年
- 面積
- 6.6m²
- 所在地
- 宮城県仙台市青葉区
- 費用
- 170万円(税込)
-
2023
両親が安心して住めるように
- 物件種別
- 戸建
- 築年数
- 35年
- 面積
- 45m²
- 所在地
- 宮城県仙台市青葉区
- 費用
- 1430万円(税込)
-
2023
暖かい我が家へ
- 物件種別
- 戸建
- 築年数
- 25年
- 面積
- 10m²
- 所在地
- 宮城県仙台市泉区
- 費用
- 216万円(税込)
-
2023
人生最後のリフォームを
- 物件種別
- 戸建
- 築年数
- 30年
- 面積
- 30m²
- 所在地
- 宮城県仙台市泉区
- 費用
- 435万円(税込)
-
2022
愛する妻へ、お部屋をプレゼント
- 物件種別
- 戸建
- 築年数
- 30年
- 面積
- 11m²
- 所在地
- 宮城県仙台市泉区
- 費用
- 557万円(税込)
-
2022
三世帯で住み繋ぐ家へ
- 物件種別
- 戸建
- 築年数
- 27年
- 面積
- 161.58m²
- 所在地
- 宮城県仙台市宮城野区
- 費用
- 1000万円(税込)
-
2022
子供の笑顔
- 物件種別
- 戸建
- 築年数
- 10年
- 面積
- 61.9m²
- 所在地
- 宮城県仙台市青葉区
- 費用
- 759万円(税込)
-
2022
親からわたしたちへ
- 物件種別
- 戸建
- 築年数
- 30年
- 面積
- 25m²
- 所在地
- 宮城県仙台市泉区
- 費用
- 292万円(税込)
-
2022
優秀賞
25年を経て理想の家へ
- 物件種別
- 戸建
- 築年数
- 25年
- 面積
- 25m²
- 所在地
- 宮城県仙台市太白区
- 費用
- 180万円(税込)
-
2022
お嫁さんにキッチンをプレゼント!
- 物件種別
- 戸建
- 築年数
- 22年
- 面積
- 8.281m²
- 所在地
- 宮城県仙台市泉区
- 費用
- 380万円(税込)
-
2022
ボロボロでガタガタ・・
- 物件種別
- 戸建
- 築年数
- 32年
- 面積
- 7m²
- 所在地
- 宮城県仙台市青葉区
- 費用
- 187万円(税込)
-
2022
閉店から始まる、新しい生活
- 物件種別
- 戸建
- 築年数
- 35年
- 面積
- 50m²
- 所在地
- 宮城県仙台市若林区
- 費用
- 1,500万円(税込)
-
2022
自慢の『中古住宅』へ
- 物件種別
- 戸建
- 築年数
- 46年
- 面積
- 94m²
- 所在地
- 宮城県仙台市青葉区
- 費用
- 866万円(税込)
-
2022
我が家がバーに
- 物件種別
- 戸建
- 所在地
- 宮城県仙台市泉区
- 費用
- 264万円(税込)
-
2021
友達に自慢できる家
- 物件種別
- 戸建
- 所在地
- 宮城県仙台市青葉区
- 費用
- 920万円(税込)
-
2021
想いと思い出が残る家
- 物件種別
- 戸建
- 所在地
- 宮城県富谷町
- 費用
- 243万円(税込)
-
2021
定年後の愛猫との楽しみを
- 物件種別
- 戸建
- 所在地
- 宮城県仙台市宮城野区
- 費用
- 1800万円(税込)
-
2021
夢のLDK
- 物件種別
- 戸建
- 所在地
- 宮城県仙台市若林区
- 費用
- 814万円(税込)
-
2021
大切なバスタイムだったのに・・・
- 物件種別
- 戸建
- 築年数
- 19年
- 面積
- 5m²
- 所在地
- 宮城県仙台市青葉区
- 費用
- 260万円(税込)
-
2021
家の印象を変える
- 物件種別
- 戸建
- 所在地
- 宮城県仙台市泉区
- 費用
- 197万円(税込)
-
2021
お風呂の床はコンクリート
- 物件種別
- 戸建
- 所在地
- 宮城県仙台市宮城野区
- 費用
- 310万円(税込)
-
2021
次のライフステージへ
- 物件種別
- 戸建
- 築年数
- 35年
- 面積
- 112m²
- 所在地
- 宮城県富谷町
- 費用
- 1042万円(税込)
-
2021
ずっと安心して
- 物件種別
- 戸建
- 面積
- 20m²
- 所在地
- 宮城県仙台市青葉区
- 費用
- 315万円(税込)
-
2021
きっかけは白蟻
- 物件種別
- 戸建
- 所在地
- 宮城県仙台市泉区
- 費用
- 80万円(税込)
-
2021
お家でよーいどん!!
- 物件種別
- 戸建
- 所在地
- 宮城県仙台市宮城野区
- 費用
- 352万円(税込)
-
2021
2回目の新婚生活
- 物件種別
- 戸建
- 所在地
- 宮城県仙台市太白区
- 費用
- 295万円(税込)
-
2021
毎日キャンプができる家
- 物件種別
- 戸建
- 築年数
- 39年
- 所在地
- 宮城県仙台市泉区
- 費用
- 1,700万円(税込)
-
2021
まさか主人が・・・
- 物件種別
- 戸建
- 築年数
- 32年
- 面積
- 18.65m²
- 所在地
- 宮城県仙台市宮城野区
- 費用
- 1,500万円(税込)
-
2020
私色~長年集めてきた小物たちを同居しても飾りたい~
- 物件種別
- 戸建
- 所在地
- 宮城県仙台市青葉区
- 費用
- 2,000万円(税込)
-
2020
ワタシとネコの終の棲家
- 物件種別
- 戸建
- 所在地
- 宮城県仙台市宮城野区
- 費用
- 1,000万円(税込)
-
2020
こだわりトイレ部門賞
いいじゃろぉ!ワシのトイレ
- 物件種別
- 戸建
- 所在地
- 宮城県富谷町
- 費用
- 60万円(税込)
-
2020
ひとりになる妻へ
- 物件種別
- 戸建
- 所在地
- 宮城県塩竈市
- 費用
- 1,200万円(税込)
-
2020
30年目の新婚生活
- 物件種別
- 戸建
- 所在地
- 宮城県仙台市泉区
- 費用
- 600万円(税込)
-
2020
日本庭園を眺めながら、フランスの生活を
- 物件種別
- 戸建
- 築年数
- 41年
- 所在地
- 宮城県仙台市泉区
- 費用
- 2,530万円(税込)
-
2020
目線をずらして開放的に
- 物件種別
- 戸建
- 築年数
- 17年
- 所在地
- 宮城県仙台市青葉区
- 費用
- 1,250万円(税込)
-
2020
家族と過ごす 大切な時間
- 物件種別
- 戸建
- 築年数
- 17年
- 所在地
- 宮城県仙台市青葉区
- 費用
- 1,250万円(税込)
-
2020
珈琲一杯漢の浪漫
- 物件種別
- 戸建
- 築年数
- 9年
- 所在地
- 宮城県仙台市泉区
- 費用
- 102万円(税込)
-
2020
初孫と過ごすために
- 物件種別
- 戸建
- 所在地
- 宮城県仙台市太白区
- 費用
- 400万円(税込)