耐震評点0.29からの再生、家族の記憶を継ぐリノベーション
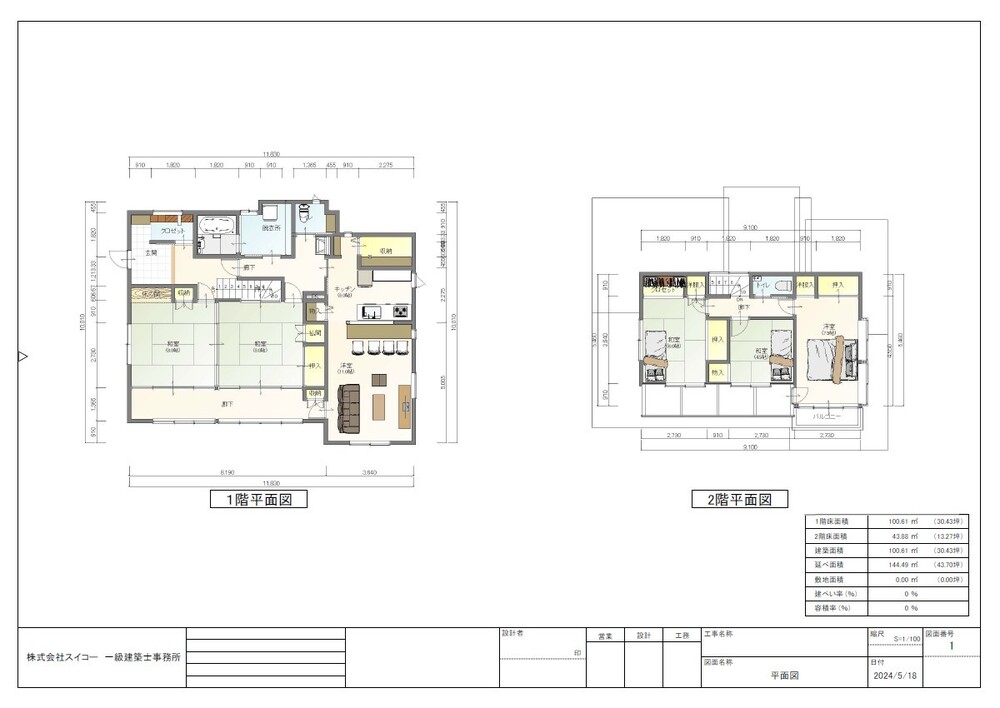
築49年・評点0.29の倒壊危機にあった木造住宅を、安全最優先で改修。既存基礎を補修し、構造用合板と筋かいによる高耐力壁をバランス良く配置。金物設置も徹底し、コストを考慮しつつ評点1.0以上をクリアしました。結果、評点は1.05へ劇的に向上。特に1階は1.5以上を達成し、「倒壊しない」最高レベルの安全性を持つ住まいへと再生しました。
- こだわりポイント
- BeforeもしくはAfter図面あり / こだわりキッチン / こだわりバス空間(洗面含む) / インテリア / グリーン化・SDGs達成(断熱・耐震含む) / 補助金等のリフォーム制度利用
- リフォーム部分
- リビングダイニング / キッチン / バス / 洗面室 / トイレ / その他
既存の和室や縁側を一体化し、開放的なLDKへ
耐震補強に伴い、既存の和室や縁側を一体化し、開放的なLDKへと間取りを刷新しました 。
使いやすさと広さを兼ね備えたキッチン
キッチンはTOTO「ミッテ」 を採用
カウンターからLDKを一望し、家族の団らんをより愉しめる空間へ
キッチン収納をしっかり確保
キッチン後ろに新しくパントリーを設計
以前は和室の床の間があった場所です
毎日のお風呂ライフを快適に
TOTOシンラに変え冬でもあたたかい浴室に
廊下には「思い出」を残しました
施主様のご要望で
旧和室にあった美しい欄間を、思い出として廊下に残しました
動線を考えた新しい洗面台
脱衣所には洗面所を設置せず、あえて廊下へ洗面所を設置することで、手洗いにアクセスがしやすくなりました。
脱衣所兼ランドリールームを設置
廊下と浴室の間に脱衣所兼ランドリールームを新たに設置しました。
これにより洗濯物の管理がしやすく作業スペースが広くなったほか、洗面台を廊下に設置したことですみわけができ混雑が緩和されました。
玄関収納を広く
家族分の靴ですぐあふれてしまう玄関収納を、もっと使いやすく、広くするために、シューズクロークを設置し、玄関からも廊下からもアクセスしやすいです。
広いLDKを新設し、家族が集まる空間を提案
動線の不便さを解消し、耐震強度を高めて安全性を確保。
広くて暖かいリビングで家族が集まる空間になりました。
お客様のニーズ(リフォームへの要望)
・ご両親宅を息子さんが住み継ぐ
・耐震性の抜本的な改善
・省エネ性能の向上
・水まわりの劣化対策
・収納面の向上
お客様ニーズへの自社の対応
・耐震補強による耐震性能の向上
・既存の和室や縁側を一体化し、開放的なLDKへと間取りを刷新
・水まわり設備一新
・和室にあった既存の美しい欄間を廊下に再設置
・玄関ドア、玄関周りの収納改善
リフォーム工事後のお客様の評価
「性能向上改修をしながらも既存の思い出を残す配慮に感動した」
- 所在地
- 宮城県仙台市太白区
- 施工日数
- 60日
- 施工完了
- 2024年10月
- 物件種別
- 戸建
- 構造
- 木造
- 築年数
- 50年
- 面積
- 144.49m²
- 費用
- 1,604万円(税込)(補助金等の制度活用:有)
- 居住者構成
-
この作品の事業者については、下記の事業者情報をご参照ください。(赤字のホームページURLをクリックすると、さらに詳しく確認いただけます!)
事業所情報
“自分の家と思って仕事します!”この言葉は我々のスローガンです。 お客様の立場になって、お客様と共に現状の問題点を洗い出し、お客様のこれからのライフスタイル、 ライフプランに沿って住環境における問題解決のお手伝いをしていきます。
- 事業所名
- 株式会社スイコー
- 所在地
- 宮城県仙台市泉区松森字陣ヶ原50-1
- 営業エリア
- 仙台市(泉区、青葉区、宮城野区、若林区、太白区)、多賀城市、塩竈市、名取市、岩沼市、富谷市、大和町、利府町
- 営業時間
- 10:00~12:00、13:00~17:00
この事業所の他の施工事例
-
2025
冬も暖かく掃除も簡単、安心して過ごせる浴室リモデル
- 物件種別
- 戸建
- 築年数
- 40年
- 面積
- 1.6m²
- 所在地
- 宮城県仙台市
- 費用
- 242万円(税込)
-
2025
「ただいま」が待ち遠しくなる、心地よい玄関リフォーム
- 物件種別
- 戸建
- 築年数
- 31年
- 面積
- 48m²
- 所在地
- 宮城県仙台市泉区
- 費用
- 300万円(税込)
-
2025
冷めないお湯が、家族を包む
- 物件種別
- 戸建
- 築年数
- 29年
- 面積
- 24.700085m²
- 所在地
- 宮城県利府町
- 費用
- 532万円(税込)
-
2025
1年後、3年後、5年後にどんどん個性が詰め込まれていくアトリエ
- 物件種別
- 戸建
- 築年数
- 27年
- 面積
- 55.2m²
- 所在地
- 宮城県七ヶ浜町
- 費用
- 709万円(税込)
-
2025
耐震リフォームで守る安心、次世代へつなぐ住まい
- 物件種別
- 戸建
- 築年数
- 45年
- 面積
- 134.92m²
- 所在地
- 宮城県塩竈市
- 費用
- 995万円(税込)
-
2024
水漏れ修繕から始まる、新たな浴室の快適空間づくり 〜SYNLAシリーズのシステムバスで日常をもっと便利に〜
- 物件種別
- 戸建
- 築年数
- 30年
- 面積
- 4m²
- 所在地
- 宮城県仙台市泉区
- 費用
- 350万円(税込)
-
2024
50年の歴史を刻む家に、新たな光と広さを 〜将来を見据えたトイレと洗面所のリフォームで、住まいの快適さを向上〜
- 物件種別
- 戸建
- 築年数
- 50年
- 面積
- 9.4m²
- 所在地
- 宮城県仙台市若林区
- 費用
- 290万円(税込)
-
2024
家族の新しい拠点と共に始まるリフォーム〜宮城での新生活を支える、自然素材と職人技が光る住まい〜
- 物件種別
- 戸建
- 築年数
- 41年
- 面積
- 39.37m²
- 所在地
- 宮城県仙台市泉区
- 費用
- 1718万円(税込)
-
2023
家族の歴史を残した家へ
- 物件種別
- 戸建
- 築年数
- 50年
- 面積
- 149m²
- 所在地
- 宮城県仙台市泉区
- 費用
- 1200万円(税込)
-
2023
これからも夫婦なかよく
- 物件種別
- 戸建
- 築年数
- 34年
- 面積
- 13.20m²
- 所在地
- 宮城県仙台市泉区
- 費用
- 590万円(税込)
-
2023
最愛の妻が、笑顔になるように
- 物件種別
- 戸建
- 築年数
- 33年
- 面積
- 33m²
- 所在地
- 宮城県利府町
- 費用
- 300万円(税込)
-
2023
きっかけは窓でした
- 物件種別
- 戸建
- 築年数
- 26年
- 面積
- 40m²
- 所在地
- 宮城県富谷町
- 費用
- 515万円(税込)
-
2023
これからを生きる子どもたちのために
- 物件種別
- 戸建
- 築年数
- 47年
- 面積
- 6m²
- 所在地
- 宮城県仙台市泉区
- 費用
- 440万円(税込)
-
2023
水回り空間部門賞
四世代の想いをつなぐ
- 物件種別
- 戸建
- 築年数
- 50年
- 面積
- 127.98m²
- 所在地
- 宮城県塩竈市
- 費用
- 2000万円(税込)
-
2023
健やかに育つ安心した住まいへ
- 物件種別
- 戸建
- 築年数
- 32年
- 面積
- 115m²
- 所在地
- 宮城県仙台市泉区
- 費用
- 2000万円(税込)
-
2023
この自宅でこれからも
- 物件種別
- 戸建
- 築年数
- 41年
- 面積
- 30m²
- 所在地
- 宮城県仙台市青葉区
- 費用
- 800万円(税込)
-
2023
娘を育てた父から、息子を育てる父へ
- 物件種別
- 戸建
- 築年数
- 41年
- 面積
- 99.92m²
- 所在地
- 宮城県仙台市泉区
- 費用
- 1700万円(税込)
-
2023
うちのお風呂、キレイだし暖かいの!
- 物件種別
- 戸建
- 築年数
- 34年
- 面積
- 6.6m²
- 所在地
- 宮城県仙台市青葉区
- 費用
- 170万円(税込)
-
2023
両親が安心して住めるように
- 物件種別
- 戸建
- 築年数
- 35年
- 面積
- 45m²
- 所在地
- 宮城県仙台市青葉区
- 費用
- 1430万円(税込)
-
2023
暖かい我が家へ
- 物件種別
- 戸建
- 築年数
- 25年
- 面積
- 10m²
- 所在地
- 宮城県仙台市泉区
- 費用
- 216万円(税込)
-
2023
人生最後のリフォームを
- 物件種別
- 戸建
- 築年数
- 30年
- 面積
- 30m²
- 所在地
- 宮城県仙台市泉区
- 費用
- 435万円(税込)
-
2022
愛する妻へ、お部屋をプレゼント
- 物件種別
- 戸建
- 築年数
- 30年
- 面積
- 11m²
- 所在地
- 宮城県仙台市泉区
- 費用
- 557万円(税込)
-
2022
三世帯で住み繋ぐ家へ
- 物件種別
- 戸建
- 築年数
- 27年
- 面積
- 161.58m²
- 所在地
- 宮城県仙台市宮城野区
- 費用
- 1000万円(税込)
-
2022
子供の笑顔
- 物件種別
- 戸建
- 築年数
- 10年
- 面積
- 61.9m²
- 所在地
- 宮城県仙台市青葉区
- 費用
- 759万円(税込)
-
2022
親からわたしたちへ
- 物件種別
- 戸建
- 築年数
- 30年
- 面積
- 25m²
- 所在地
- 宮城県仙台市泉区
- 費用
- 292万円(税込)
-
2022
優秀賞
25年を経て理想の家へ
- 物件種別
- 戸建
- 築年数
- 25年
- 面積
- 25m²
- 所在地
- 宮城県仙台市太白区
- 費用
- 180万円(税込)
-
2022
お嫁さんにキッチンをプレゼント!
- 物件種別
- 戸建
- 築年数
- 22年
- 面積
- 8.281m²
- 所在地
- 宮城県仙台市泉区
- 費用
- 380万円(税込)
-
2022
ボロボロでガタガタ・・
- 物件種別
- 戸建
- 築年数
- 32年
- 面積
- 7m²
- 所在地
- 宮城県仙台市青葉区
- 費用
- 187万円(税込)
-
2022
閉店から始まる、新しい生活
- 物件種別
- 戸建
- 築年数
- 35年
- 面積
- 50m²
- 所在地
- 宮城県仙台市若林区
- 費用
- 1,500万円(税込)
-
2022
自慢の『中古住宅』へ
- 物件種別
- 戸建
- 築年数
- 46年
- 面積
- 94m²
- 所在地
- 宮城県仙台市青葉区
- 費用
- 866万円(税込)
-
2022
我が家がバーに
- 物件種別
- 戸建
- 所在地
- 宮城県仙台市泉区
- 費用
- 264万円(税込)
-
2021
友達に自慢できる家
- 物件種別
- 戸建
- 所在地
- 宮城県仙台市青葉区
- 費用
- 920万円(税込)
-
2021
想いと思い出が残る家
- 物件種別
- 戸建
- 所在地
- 宮城県富谷町
- 費用
- 243万円(税込)
-
2021
定年後の愛猫との楽しみを
- 物件種別
- 戸建
- 所在地
- 宮城県仙台市宮城野区
- 費用
- 1800万円(税込)
-
2021
夢のLDK
- 物件種別
- 戸建
- 所在地
- 宮城県仙台市若林区
- 費用
- 814万円(税込)
-
2021
大切なバスタイムだったのに・・・
- 物件種別
- 戸建
- 築年数
- 19年
- 面積
- 5m²
- 所在地
- 宮城県仙台市青葉区
- 費用
- 260万円(税込)
-
2021
家の印象を変える
- 物件種別
- 戸建
- 所在地
- 宮城県仙台市泉区
- 費用
- 197万円(税込)
-
2021
お風呂の床はコンクリート
- 物件種別
- 戸建
- 所在地
- 宮城県仙台市宮城野区
- 費用
- 310万円(税込)
-
2021
次のライフステージへ
- 物件種別
- 戸建
- 築年数
- 35年
- 面積
- 112m²
- 所在地
- 宮城県富谷町
- 費用
- 1042万円(税込)
-
2021
ずっと安心して
- 物件種別
- 戸建
- 面積
- 20m²
- 所在地
- 宮城県仙台市青葉区
- 費用
- 315万円(税込)
-
2021
きっかけは白蟻
- 物件種別
- 戸建
- 所在地
- 宮城県仙台市泉区
- 費用
- 80万円(税込)
-
2021
お家でよーいどん!!
- 物件種別
- 戸建
- 所在地
- 宮城県仙台市宮城野区
- 費用
- 352万円(税込)
-
2021
2回目の新婚生活
- 物件種別
- 戸建
- 所在地
- 宮城県仙台市太白区
- 費用
- 295万円(税込)
-
2021
毎日キャンプができる家
- 物件種別
- 戸建
- 築年数
- 39年
- 所在地
- 宮城県仙台市泉区
- 費用
- 1,700万円(税込)
-
2021
まさか主人が・・・
- 物件種別
- 戸建
- 築年数
- 32年
- 面積
- 18.65m²
- 所在地
- 宮城県仙台市宮城野区
- 費用
- 1,500万円(税込)
-
2020
私色~長年集めてきた小物たちを同居しても飾りたい~
- 物件種別
- 戸建
- 所在地
- 宮城県仙台市青葉区
- 費用
- 2,000万円(税込)
-
2020
ワタシとネコの終の棲家
- 物件種別
- 戸建
- 所在地
- 宮城県仙台市宮城野区
- 費用
- 1,000万円(税込)
-
2020
こだわりトイレ部門賞
いいじゃろぉ!ワシのトイレ
- 物件種別
- 戸建
- 所在地
- 宮城県富谷町
- 費用
- 60万円(税込)
-
2020
ひとりになる妻へ
- 物件種別
- 戸建
- 所在地
- 宮城県塩竈市
- 費用
- 1,200万円(税込)
-
2020
30年目の新婚生活
- 物件種別
- 戸建
- 所在地
- 宮城県仙台市泉区
- 費用
- 600万円(税込)
-
2020
日本庭園を眺めながら、フランスの生活を
- 物件種別
- 戸建
- 築年数
- 41年
- 所在地
- 宮城県仙台市泉区
- 費用
- 2,530万円(税込)
-
2020
目線をずらして開放的に
- 物件種別
- 戸建
- 築年数
- 17年
- 所在地
- 宮城県仙台市青葉区
- 費用
- 1,250万円(税込)
-
2020
家族と過ごす 大切な時間
- 物件種別
- 戸建
- 築年数
- 17年
- 所在地
- 宮城県仙台市青葉区
- 費用
- 1,250万円(税込)
-
2020
珈琲一杯漢の浪漫
- 物件種別
- 戸建
- 築年数
- 9年
- 所在地
- 宮城県仙台市泉区
- 費用
- 102万円(税込)
-
2020
初孫と過ごすために
- 物件種別
- 戸建
- 所在地
- 宮城県仙台市太白区
- 費用
- 400万円(税込)