家族の笑顔と穏やかな時間が生まれる、築30年のマンションリノベ。
大田区にお住まいのK様から、奥様のご実家である築30年のマンションについてリノベーションのご相談をいただきました。ご実家にはお父様がお一人で、隣にK様ご家族がお住まいでしたが、2人のお嬢様の成長に伴いお部屋を交換しリノベーションすることになりました。
主に水まわりや建具交換と壁紙・床の張り替えで、間取りの変更はなし。床は廊下も含め全室を淡いグレー系のフローリングで揃え、統一感をもたせました。
ホワイト系のシンプルで優しい印象のコーディネートでまとめ、デザインクロスやアイアン調のアイテムを効かせたことでメリハリが生まれました。
- こだわりポイント
- BeforeもしくはAfter図面あり / こだわりキッチン / こだわりトイレ / こだわりバス空間(洗面含む) / インテリア / インフィルリフォーム / プロとしてのアイデア / ライフスタイルの変化提案 / 新しい生活様式提案
- リフォーム部分
- リビングダイニング / 寝室・個室 / キッチン / バス / 洗面室 / トイレ
リビング
床を淡いグレーのフローリングで統一。優しい色合いにブラックを効かせたコーディネートです。
洋室
改修した洋室は、アクセントクロスを入れて表情豊かな空間に。ご主人のご希望で窓際に懸垂バーを設置しました。
お嬢様たちの部屋
お嬢様たちのお部屋。ストライプのアクセントクロスが爽やかです。
キッチン
キッチンはLIXIL「ノクト」を採用。キッチンパネルにマットなグレーを採用し引き締まった印象に。
洗面所
すっきりしたデザインが魅力のPanasonic「シーライン」。奥様ご自身で貼ったモザイク柄のタイルシートが良いアクセントになっています。
浴室
浴室内はホワイト&グレーのモノトーンでまとめました。
トイレ
トイレのクロスは淡いグレーのモザイク柄で、落ち着く空間に。
玄関
玄関まわりに大きな鏡の付いた収納棚を設置。収納下の空間にも普段使いの靴を収納でき、たたきが広く使えます。
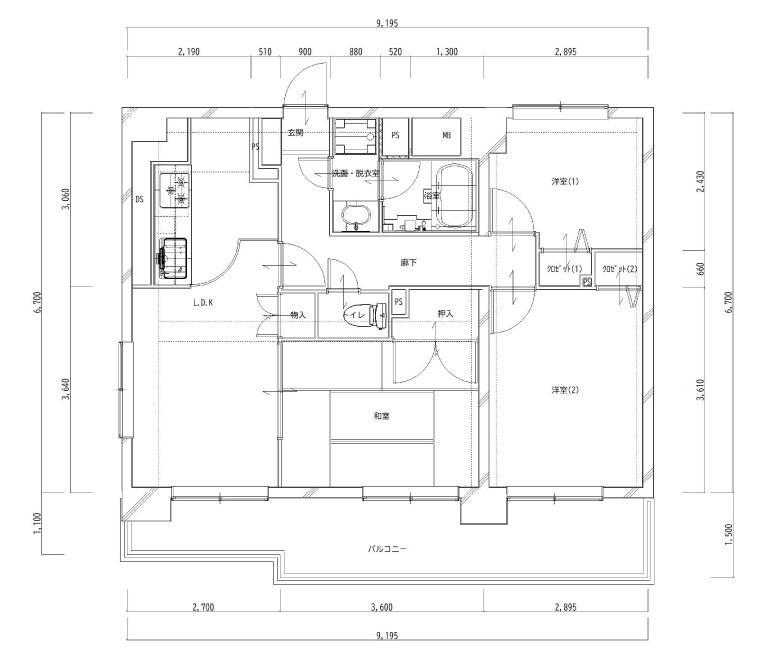
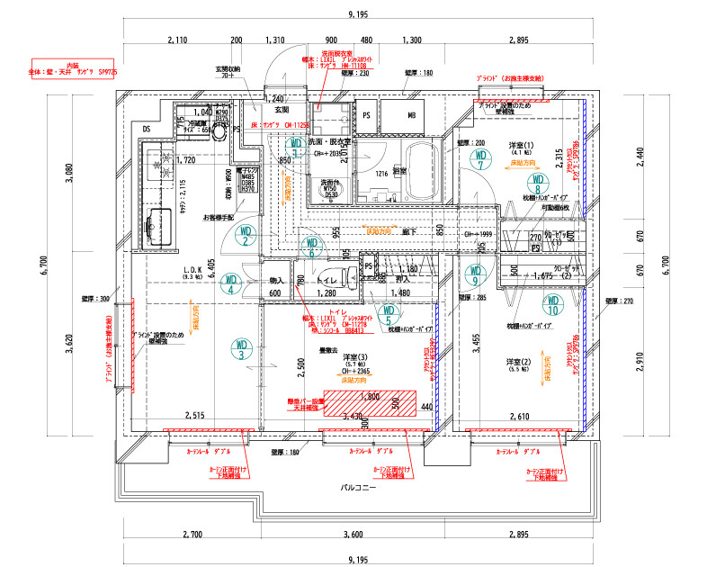
図面
現状をいかした間取りで、収納スペースのつくり方で広さのバランスを調整しました。
お客様のニーズ(リフォームへの要望)
・元々住んでいた自宅を気に入っていたので、内装は同じようなイメージにしたい。
・広さの違う洋室を、お嬢様たちの勉強部屋として公平に同じ広さにしたい。
・ご主人用に懸垂バーを設置したい。
お客様ニーズへの自社の対応
・主に水まわりや建具交換と壁紙・床の張り替えで、間取りの変更はなし。
・ホワイト系のシンプルで優しい印象のコーディネートでまとめ、床は廊下も含め全室を淡いグレー系のフローリングで揃え、統一感をもたせた。
・2つの子供部屋(洋室1と洋室2)を同じ広さにするために、廊下も含めた間取り変更プランを何度もつくり打ち合わせを重ねたが、一番良い形として、現在の間取りを活かし、収納スペースのつくり方で広さを揃えるプランでご納得いただいた。
・リビング横の和室を洋室に改修し、懸垂バーを設置。
リフォーム工事後のお客様の評価
住み心地は最高です。水まわりの使い勝手が良く、今まで嫌だなと思っていた家事も気持ちよくできるようになりました。
間取りのことで営業さんが何度もご提案くださいました。結局間取りは変えなかったのですが、ご提案自体がありがたかったです。
実は引っ越してきて最初の数日間、リフォームした我が家を見回して涙が出ることがありました。ここは実家ですし、以前住んでいた、亡くなった母の面影を思い出したせいかもしれませんね。
- 所在地
- 東京都大田区
- 施工日数
- 45日
- 施工完了
- 2024年06月
- 物件種別
- マンション
- 築年数
- 30年
- 面積
- 57.68m²
- 費用
- 950万円(税込)(補助金等の制度活用:無)
- 居住者構成
-
この作品の事業者については、下記の事業者情報をご参照ください。(赤字のホームページURLをクリックすると、さらに詳しく確認いただけます!)
事業所情報
リフォームは新築とは違い「お客さまの困った」を解消することのできる仕事です。また、お客様の「ああしたい、こうしたい」を形にして、喜んでいただける仕事です。 私達にとって、お客様とのつながりは、リフォーム工事が終わっても終わることはありません。むしろ、そこからが本当のお付き合いの始まりだと思っています。 だからこそ、これからも地域の人たちのつながりを大切にして「ありがとう」と言われる仕事をしていきます。
- 定休日
- 日曜・月曜・祝日/年末年始・夏季休暇
- 電話番号 / FAX
- 03-3774-4415 / 03-3774-9577
- 対応物件
- 戸建,マンション
- ホームページ
- http://www.kitasetsu.co.jp
この事業所の他の施工事例
-
2025
断熱・段差解消で10年先も暮らしやすく。築40年マンションを快適リノベーション
- 物件種別
- マンション
- 築年数
- 40年
- 面積
- 57.42m²
- 所在地
- 東京都大田区
- 費用
- 1,340万円(税込)
-
2025
築35年の賃貸物件を再生。ナチュラルモダンで住み心地の良い空間へ
- 物件種別
- その他
- 築年数
- 35年
- 面積
- 27.83m²
- 所在地
- 東京都大田区
- 費用
- 600万円(税込)
-
2025
カフェのようにくつろげる上質な空間。
- 物件種別
- その他
- 築年数
- 30年
- 面積
- 96.91m²
- 所在地
- 東京都大田区
- 費用
- 1580万円(税込)
-
2025
20年先まで安心して暮らせるお家
- 物件種別
- 戸建
- 築年数
- 25年
- 所在地
- 東京都大田区
- 費用
- 600万円(税込)
-
2025
帰るのが嬉しくなるお家
- 物件種別
- 戸建
- 築年数
- 20年
- 所在地
- 東京都大田区
- 費用
- 275万円(税込)
-
2025
青空に映えるアイボリーのお家
- 物件種別
- 戸建
- 築年数
- 20年
- 所在地
- 東京都大田区
- 費用
- 350万円(税込)
-
2025
特別賞
中古戸建てを自分らしく!シンプル&モダンにまとめたリノベーション。
- 物件種別
- 戸建
- 築年数
- 18年
- 面積
- 86.7m²
- 所在地
- 東京都大田区
- 費用
- 990万円(税込)
-
2025
和室から洋室へ!塗り壁塗材『キララ』で空気がキレイに!
- 物件種別
- 戸建
- 築年数
- 25年
- 所在地
- 東京都大田区
- 費用
- 550万円(税込)
-
2025
構造補強&水まわり一新で、安心して長く住めるお住まいが完成。
- 物件種別
- 戸建
- 築年数
- 30年
- 面積
- 99.27m²
- 所在地
- 東京都大田区
- 費用
- 2,600万円(税込)
-
2024
プレイルームに、楽しいスキップフロアをつくりました♪
- 物件種別
- 戸建
- 所在地
- 東京都大田区
- 費用
- 170万円(税込)
-
2024
居心地抜群!生まれ変わった浴室&洗面空間
- 物件種別
- 戸建
- 築年数
- 12年
- 所在地
- 東京都大田区
- 費用
- 330万円(税込)
-
2024
機能性と居心地の良さを高めた、ホテルライクな空間。
- 物件種別
- その他
- 所在地
- 東京都大田区
- 費用
- 1260万円(税込)
-
2024
親子で使える"一生もの"のデスク。
- 物件種別
- 戸建
- 所在地
- 東京都品川区
- 費用
- 170万円(税込)
-
2024
家族を育ててくれた家から、家族が帰ってこられるオーシャンリゾートへ。
- 物件種別
- マンション
- 築年数
- 53年
- 所在地
- 東京都品川区
- 費用
- 1220万円(税込)
-
2024
懐かしさと新しさが同居する、母と娘のマンションリノベーション
- 物件種別
- マンション
- 築年数
- 50年
- 所在地
- 東京都大田区
- 費用
- 1140万円(税込)
-
2024
五つ星ホテルより家が好き!大満足の戸建てリノベ
- 物件種別
- 戸建
- 築年数
- 29年
- 所在地
- 東京都大田区
- 費用
- 1130万円(税込)
-
2024
使いやすく居心地抜群の洗面空間
- 物件種別
- 戸建
- 築年数
- 17年
- 所在地
- 東京都大田区
- 費用
- 80万円(税込)
-
2024
仲良し家族の絆が深まるリノベーション。
- 物件種別
- マンション
- 築年数
- 16年
- 所在地
- 東京都大田区
- 費用
- 800万円(税込)
-
2023
これで安心・安全!万年塀を撤去しフェンスを設置
- 物件種別
- 戸建
- 築年数
- 32年
- 所在地
- 東京都品川区
- 費用
- 290万円(税込)
-
2023
築35年の屋根外壁リフォーム!安心して暮らせるお家になりました
- 物件種別
- 戸建
- 築年数
- 35年
- 所在地
- 東京都大田区
- 費用
- 1,170万円(税込)
-
2023
既存の間取りを活かした、ご夫婦のためのくつろぎ空間。
- 物件種別
- マンション
- 築年数
- 32年
- 所在地
- 東京都大田区
- 費用
- 1160万円(税込)
-
2023
白アリ対策→玄関ドアのリフォームで快適なエントランスに!
- 物件種別
- 戸建
- 築年数
- 54年
- 所在地
- 東京都大田区
- 費用
- 100万円(税込)
-
2023
アンティークなデザインが魅力的!玄関リフォームで気分一新
- 物件種別
- 戸建
- 築年数
- 100年以上
- 所在地
- 東京都大田区
- 費用
- 57万円(税込)
-
2023
水まわりを一新し、快適でくつろぎ感のある多目的スペースが完成
- 物件種別
- マンション
- 築年数
- 28年
- 所在地
- 東京都大田区
- 費用
- 1400万円(税込)
-
2023
水まわりを一新!ご夫婦の会話も弾むオープンキッチン
- 物件種別
- 戸建
- 築年数
- 22年
- 所在地
- 東京都大田区
- 費用
- 460万円(税込)
-
2023
特別賞
収納と動線のお悩みを解決し、家族の団らんとプライベート空間を両立。
- 物件種別
- マンション
- 築年数
- 22年
- 所在地
- 東京都大田区
- 費用
- 1750万円(税込)
-
2023
進化したキッチンとお風呂で、毎日をエンジョイ&リフレッシュ!
- 物件種別
- マンション
- 築年数
- 20年
- 所在地
- 東京都大田区
- 費用
- 500万円(税込)
-
2023
ご夫婦の作品を最大限に引き立てるリノベーション
- 物件種別
- 戸建
- 築年数
- 30年
- 所在地
- 東京都大田区
- 費用
- 1160万円(税込)
-
2023
お孫さんへの愛情あふれる、築27年のマンションリノベ
- 物件種別
- マンション
- 築年数
- 27年
- 所在地
- 東京都大田区
- 費用
- 1240万円(税込)
-
2023
ライフスタイルに寄り添って、快適・機能的な住まいを実現
- 物件種別
- マンション
- 築年数
- 25年
- 所在地
- 東京都大田区
- 費用
- 1120万円(税込)
-
2022
特別賞
5人家族が、笑顔でのびのびと暮らせる家。
- 物件種別
- マンション
- 築年数
- 34年
- 所在地
- 東京都大田区
- 費用
- 1140万円(税込)
-
2022
理想を形に!世界で1つのオリジナル家具
- 物件種別
- 戸建
- 築年数
- 18年
- 所在地
- 東京都品川区
- 費用
- 150万円(税込)
-
2022
大好きな色に囲まれて、お孫さんと笑顔で過ごせる空間。
- 物件種別
- 戸建
- 築年数
- 39年
- 所在地
- 東京都大田区
- 費用
- 1300万円(税込)
-
2022
リビングでくつろぐような、至福のバスタイムが過ごせます
- 物件種別
- 戸建
- 所在地
- 東京都大田区
- 費用
- 347万円(税込)
-
2022
真っ白な内装と落ち着いたBGMで、トイレが癒しの空間に
- 物件種別
- マンション
- 築年数
- 23年
- 所在地
- 東京都港区
- 費用
- 130万円(税込)
-
2022
20年先も快適で安心!くつろぎ度満点のリノベーション。
- 物件種別
- マンション
- 築年数
- 20年
- 所在地
- 東京都品川区
- 費用
- 1840万円(税込)
-
2022
快適さとカッコ良さを叶えた水まわりのトータルコーディネート
- 物件種別
- マンション
- 築年数
- 28年
- 所在地
- 東京都大田区
- 費用
- 200万円(税込)
-
2022
壁紙のコーディネートで、トイレがくつろぎの空間に生まれ変わりました。
- 物件種別
- マンション
- 築年数
- 20年
- 所在地
- 東京都大田区
- 費用
- 73万円(税込)
-
2022
和室から洋室へ、ライフスタイルに合わせてリノベーション。
- 物件種別
- マンション
- 築年数
- 12年
- 面積
- 39.9m²
- 所在地
- 東京都大田区
- 費用
- 194万円(税込)
-
2022
間取りの工夫と断熱対策で、快適な暮らしを実現。
- 物件種別
- その他
- 築年数
- 42年
- 面積
- 32m²
- 所在地
- 東京都大田区
- 費用
- 830万円(税込)
-
2022
こだわりキッチン空間部門賞
訪れたゲストから歓声があがる、ラグジュアリーなおもてなしキッチン。
- 物件種別
- マンション
- 築年数
- 22年
- 所在地
- 東京都大田区
- 費用
- 977万円(税込)
-
2022
30代ご夫婦が快適に暮らせる、2人らしい住まい。
- 物件種別
- 戸建
- 築年数
- 16年
- 面積
- 約86m²
- 所在地
- 東京都品川区
- 費用
- 1360万円(税込)
-
2022
暮らしの楽しみが広がる、大人のためのホテルライクな空間。
- 物件種別
- 戸建
- 築年数
- 17年
- 面積
- 約48m²
- 所在地
- 東京都大田区
- 費用
- 891万円(税込)
-
2021
こだわりキッチン部門賞
機能性とデザイン性の高いキッチンで楽しむ料理の時間。
- 物件種別
- マンション
- 築年数
- 27年
- 面積
- 30m²
- 所在地
- 東京都大田区
- 費用
- 300万円(税込)
-
2021
時間をかけて選んだキッチンで毎日が快適に。
- 物件種別
- 戸建
- 築年数
- 20年
- 面積
- 20m²
- 所在地
- 東京都大田区
- 費用
- 250万円(税込)
-
2021
間取り変更と収納力アップで、暮らしやすさを大改革。
- 物件種別
- マンション
- 築年数
- 15年
- 所在地
- 東京都大田区
- 費用
- 1500万円(税込)
-
2021
上質感が生み出すアーバンインダストリアルな大人空間。
- 物件種別
- 戸建
- 築年数
- 12年
- 面積
- 70m²
- 所在地
- 東京都大田区
- 費用
- 750万円(税込)
-
2021
インナーテラスからのやさしい光に包まれる暮らし。
- 物件種別
- マンション
- 築年数
- 30年
- 所在地
- 東京都大田区
- 費用
- 1480万円(税込)
-
2021
目指したのは光と風が通り抜ける居心地の良い空間。
- 物件種別
- マンション
- 築年数
- 17年
- 面積
- 68m²
- 所在地
- 東京都品川区
- 費用
- 950万円(税込)
-
2021
長年の悩みを解決!断熱リフォームで快適バスタイム♪
- 物件種別
- 戸建
- 築年数
- 30年
- 面積
- 4m²
- 所在地
- 東京都大田区
- 費用
- 188万円(税込)
-
2021
迫力いっぱいの壁紙でトイレ&洗面室が大変身!
- 物件種別
- 戸建
- 築年数
- 30年
- 面積
- 2.5m²
- 所在地
- 東京都品川区
- 費用
- 100万円(税込)
-
2021
トイレと洗面台を一新!お手入れのしやすさが魅力です。
- 物件種別
- 戸建
- 所在地
- 東京都大田区
- 費用
- 288万円(税込)
-
2021
生活動線を意識した、"家事ラク" で居心地の良い住まい。
- 物件種別
- 戸建
- 築年数
- 40年
- 所在地
- 東京都大田区
- 費用
- 2,000万円(税込)
-
2021
優秀賞
ナチュラルとクールをバランスよく取り入れた上質空間。
- 物件種別
- マンション
- 築年数
- 37年
- 所在地
- 東京都品川区
- 費用
- 1,150万円(税込)
-
2020
北欧の香り漂う、ナチュラルで住み心地のよい 二世帯住宅
- 物件種別
- 戸建
- 築年数
- 32年
- 所在地
- 東京都大田区
- 費用
- 3,000万円(税込)
-
2020
料理研究家が選ぶ 暮らしに馴染むナチュラルなキッチンリフォーム
- 物件種別
- マンション
- 築年数
- 18年
- 所在地
- 東京都世田谷区
- 費用
- 235万円(税込)
-
2020
特別賞
わずか7坪の家~全方位にムダなし!
- 物件種別
- 戸建
- 築年数
- 39年
- 所在地
- 東京都大田区
- 費用
- 1,450万円(税込)
-
2020
光冷暖で体にいいリフォームが実現。2人の時間も、自分の時間も楽しめる家
- 物件種別
- マンション
- 築年数
- 20年
- 所在地
- 東京都大田区
- 費用
- 1,300万円(税込)
-
2020
憧れの海外風インテリアを纏って生まれ変わった住まい
- 物件種別
- マンション
- 築年数
- 50年
- 所在地
- 東京都品川区
- 費用
- 1,500万円(税込)
-
2020
古き良きものを受け継ぎ、次世代向けに新しくデザイン
- 物件種別
- 戸建
- 築年数
- 12年
- 所在地
- 東京都大田区
- 費用
- 2,200万円(税込)
-
2020
40年のときを経て、あたたかく快適に生まれ変わった家
- 物件種別
- 戸建
- 築年数
- 40年
- 所在地
- 東京都大田区
- 費用
- 2,000万円(税込)
-
2020
機能性とデザイン性の融合で生まれ変わった、家族の理想の空間
- 物件種別
- 戸建
- 築年数
- 31年
- 所在地
- 東京都大田区
- 費用
- 1,580万円(税込)
-
2020
心躍る 大人の贅沢空間。"好き" を楽しめる趣味部屋のある家
- 物件種別
- 戸建
- 築年数
- 31年
- 所在地
- 東京都大田区
- 費用
- 736万円(税込)
-
2020
一番近い楽園~日常にあるヴィラリゾート
- 物件種別
- マンション
- 築年数
- 31年
- 所在地
- 東京都大田区
- 費用
- 990万円(税込)
-
2020
築40年をリミックス~「これまで」と「これから」が交差する家
- 物件種別
- マンション
- 築年数
- 40年
- 所在地
- 東京都大田区
- 費用
- 1,270万円(税込)