断熱・段差解消で10年先も暮らしやすく。築40年マンションを快適リノベーション
築40年のマンションにお住まいのI様より、将来を見据えたリノベーションのご相談をいただきました。
間取りと動線を見直し、和室と洋室をつなげて広々としたLDKに改修。寝室〜ウォークインクローゼットまでスムーズに行き来できる設計にしました。
寝室には調湿性に優れた塗り壁材「キララ」を採用し、アーチ開口で開放感を演出。
段差解消や断熱対策も行い、これから先も快適に暮らせる住まいへと生まれ変わりました。
- こだわりポイント
- BeforeもしくはAfter図面あり / こだわりキッチン / こだわりトイレ / こだわりバス空間(洗面含む) / プロとしてのアイデア / 補助金等のリフォーム制度利用
- リフォーム部分
- リビングダイニング / 寝室・個室 / キッチン / バス / 洗面室 / トイレ
リビング
大きな窓から明るい光が差し込むリビング空間。テーブル側の壁にはエコカラットを採用しました。
リビング
ダイケンのテレビボードを採用し、大容量の収納スペースをつくりました。
寝室
寝室には調湿性に優れた塗り壁材「キララ」を採用。淡いイエローでくつろぎ感をアップ。
ウォークインクローゼット
寝室の先にウォークインクローゼットをつくりました。猫ちゃん柄のクロスに和みます。
土間スペース
I様のご希望で、玄関先に横長の土間スペースをつくりました。物干しスペースやコート掛けとして有効活用できるハンギングバーを設置。
キッチン
キッチンはクリナップ「ステディア」を採用。水が流れやすいステンレスシンクが優秀です。
洗面所
お手入れしやすく、収納が多いことからTOTO「オクターブ」を選ばれました。ストライプ柄のクロスが爽やかです。
浴室
TOTO「シンラ」に肩湯と腰湯のオプションを付けました。
「マローネ」というモカブラウンの色味も大変お気に入りです。
トイレ
一段低くなっていた廊下の高さを上げて、トイレと洗面空間の出入口をフラットに。将来のバリアフリー対策です。
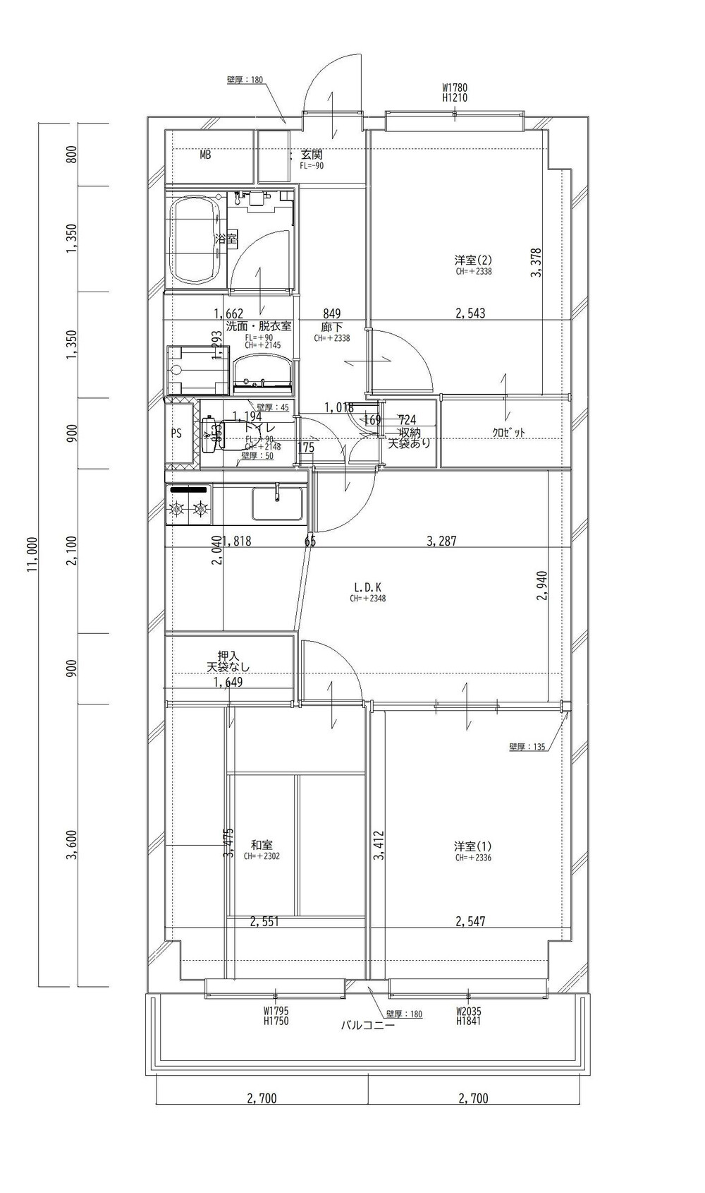
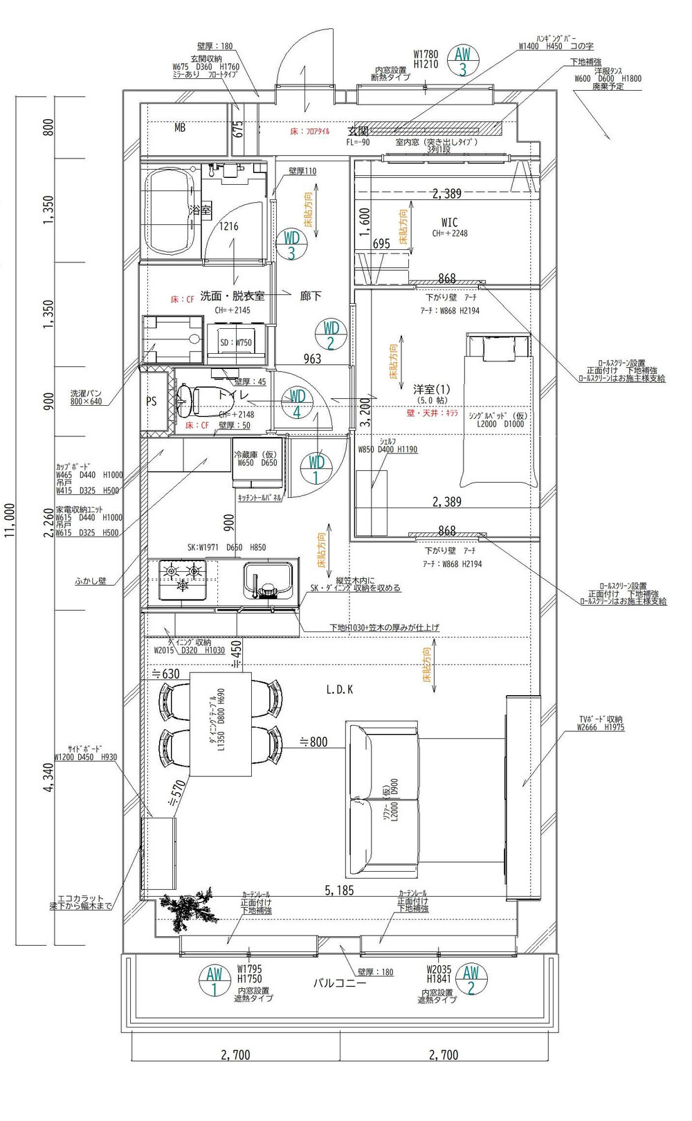
図面
動線を見直し、間取りを変更し、断熱やバリアフリーを意識してプランニング。
窓側に面していた和室と洋室を改修して広いLDKをつくり、リビングから寝室、寝室とウォークインクローゼットを行き来できるようになりました。
お客様のニーズ(リフォームへの要望)
・バリアフリーを意識して、歳を重ねても自宅で快適に過ごせる住まいにしたい。
・キッチン等水まわりを新しくしたい。
・リビングから寝室まで、エアコン1台でまかないたい。
お客様ニーズへの自社の対応
・いつまでも健康で快適に暮らしていただける住まいづくりを心掛けた。
・廊下の高さを洗面脱衣所やトイレに合わせて段差を解消。
・生活動線を見直し間取りを変更。広いLDKから寝室、寝室とウォークインクローゼット間に扉をつくらず、光と風が通りやすい開放感を演出。
・寝室には、調湿性に優れた塗り壁材「キララ」をご提案。
・北向きの窓は断熱、南向きの窓は遮熱と使い分けて設置。
リフォーム工事後のお客様の評価
キタセツさんには何かあった時にすぐに来てくれる安心感があり、助成金に対応されていたことも決め手になりました。
住み始めて4ヶ月、リフォームして良かったと満足しています。段差が解消され、お掃除しやすく移動が楽になりました。
二重サッシにしたことで、夏に帰宅した時のむっとする暑さがなくなり涼しく感じています。リビングと寝室でエアコンを兼用したいと希望したら「それならパワーを上げたものが良い」といった提案も助かりました。
- 所在地
- 東京都大田区
- 施工日数
- 3ヶ月
- 施工完了
- 2025年02月
- 物件種別
- マンション
- 築年数
- 40年
- 面積
- 57.42m²
- 費用
- 1,340万円(税込)(補助金等の制度活用:有)
- 居住者構成
-
この作品の事業者については、下記の事業者情報をご参照ください。(赤字のホームページURLをクリックすると、さらに詳しく確認いただけます!)
事業所情報
リフォームは新築とは違い「お客さまの困った」を解消することのできる仕事です。また、お客様の「ああしたい、こうしたい」を形にして、喜んでいただける仕事です。 私達にとって、お客様とのつながりは、リフォーム工事が終わっても終わることはありません。むしろ、そこからが本当のお付き合いの始まりだと思っています。 だからこそ、これからも地域の人たちのつながりを大切にして「ありがとう」と言われる仕事をしていきます。
- 定休日
- 日曜・月曜・祝日/年末年始・夏季休暇
- 電話番号 / FAX
- 03-3774-4415 / 03-3774-9577
- 対応物件
- 戸建,マンション
- ホームページ
- http://www.kitasetsu.co.jp
この事業所の他の施工事例
-
2025
築35年の賃貸物件を再生。ナチュラルモダンで住み心地の良い空間へ
- 物件種別
- その他
- 築年数
- 35年
- 面積
- 27.83m²
- 所在地
- 東京都大田区
- 費用
- 600万円(税込)
-
2025
カフェのようにくつろげる上質な空間。
- 物件種別
- その他
- 築年数
- 30年
- 面積
- 96.91m²
- 所在地
- 東京都大田区
- 費用
- 1580万円(税込)
-
2025
20年先まで安心して暮らせるお家
- 物件種別
- 戸建
- 築年数
- 25年
- 所在地
- 東京都大田区
- 費用
- 600万円(税込)
-
2025
帰るのが嬉しくなるお家
- 物件種別
- 戸建
- 築年数
- 20年
- 所在地
- 東京都大田区
- 費用
- 275万円(税込)
-
2025
青空に映えるアイボリーのお家
- 物件種別
- 戸建
- 築年数
- 20年
- 所在地
- 東京都大田区
- 費用
- 350万円(税込)
-
2025
中古戸建てを自分らしく!シンプル&モダンにまとめたリノベーション。
- 物件種別
- 戸建
- 築年数
- 18年
- 面積
- 86.7m²
- 所在地
- 東京都大田区
- 費用
- 990万円(税込)
-
2025
和室から洋室へ!塗り壁塗材『キララ』で空気がキレイに!
- 物件種別
- 戸建
- 築年数
- 25年
- 所在地
- 東京都大田区
- 費用
- 550万円(税込)
-
2025
構造補強&水まわり一新で、安心して長く住めるお住まいが完成。
- 物件種別
- 戸建
- 築年数
- 30年
- 面積
- 99.27m²
- 所在地
- 東京都大田区
- 費用
- 2,600万円(税込)
-
2025
家族の笑顔と穏やかな時間が生まれる、築30年のマンションリノベ。
- 物件種別
- マンション
- 築年数
- 30年
- 面積
- 57.68m²
- 所在地
- 東京都大田区
- 費用
- 950万円(税込)
-
2024
プレイルームに、楽しいスキップフロアをつくりました♪
- 物件種別
- 戸建
- 所在地
- 東京都大田区
- 費用
- 170万円(税込)
-
2024
居心地抜群!生まれ変わった浴室&洗面空間
- 物件種別
- 戸建
- 築年数
- 12年
- 所在地
- 東京都大田区
- 費用
- 330万円(税込)
-
2024
機能性と居心地の良さを高めた、ホテルライクな空間。
- 物件種別
- その他
- 所在地
- 東京都大田区
- 費用
- 1260万円(税込)
-
2024
親子で使える"一生もの"のデスク。
- 物件種別
- 戸建
- 所在地
- 東京都品川区
- 費用
- 170万円(税込)
-
2024
家族を育ててくれた家から、家族が帰ってこられるオーシャンリゾートへ。
- 物件種別
- マンション
- 築年数
- 53年
- 所在地
- 東京都品川区
- 費用
- 1220万円(税込)
-
2024
懐かしさと新しさが同居する、母と娘のマンションリノベーション
- 物件種別
- マンション
- 築年数
- 50年
- 所在地
- 東京都大田区
- 費用
- 1140万円(税込)
-
2024
五つ星ホテルより家が好き!大満足の戸建てリノベ
- 物件種別
- 戸建
- 築年数
- 29年
- 所在地
- 東京都大田区
- 費用
- 1130万円(税込)
-
2024
使いやすく居心地抜群の洗面空間
- 物件種別
- 戸建
- 築年数
- 17年
- 所在地
- 東京都大田区
- 費用
- 80万円(税込)
-
2024
仲良し家族の絆が深まるリノベーション。
- 物件種別
- マンション
- 築年数
- 16年
- 所在地
- 東京都大田区
- 費用
- 800万円(税込)
-
2023
これで安心・安全!万年塀を撤去しフェンスを設置
- 物件種別
- 戸建
- 築年数
- 32年
- 所在地
- 東京都品川区
- 費用
- 290万円(税込)
-
2023
築35年の屋根外壁リフォーム!安心して暮らせるお家になりました
- 物件種別
- 戸建
- 築年数
- 35年
- 所在地
- 東京都大田区
- 費用
- 1,170万円(税込)
-
2023
既存の間取りを活かした、ご夫婦のためのくつろぎ空間。
- 物件種別
- マンション
- 築年数
- 32年
- 所在地
- 東京都大田区
- 費用
- 1160万円(税込)
-
2023
白アリ対策→玄関ドアのリフォームで快適なエントランスに!
- 物件種別
- 戸建
- 築年数
- 54年
- 所在地
- 東京都大田区
- 費用
- 100万円(税込)
-
2023
アンティークなデザインが魅力的!玄関リフォームで気分一新
- 物件種別
- 戸建
- 築年数
- 100年以上
- 所在地
- 東京都大田区
- 費用
- 57万円(税込)
-
2023
水まわりを一新し、快適でくつろぎ感のある多目的スペースが完成
- 物件種別
- マンション
- 築年数
- 28年
- 所在地
- 東京都大田区
- 費用
- 1400万円(税込)
-
2023
水まわりを一新!ご夫婦の会話も弾むオープンキッチン
- 物件種別
- 戸建
- 築年数
- 22年
- 所在地
- 東京都大田区
- 費用
- 460万円(税込)
-
2023
特別賞
収納と動線のお悩みを解決し、家族の団らんとプライベート空間を両立。
- 物件種別
- マンション
- 築年数
- 22年
- 所在地
- 東京都大田区
- 費用
- 1750万円(税込)
-
2023
進化したキッチンとお風呂で、毎日をエンジョイ&リフレッシュ!
- 物件種別
- マンション
- 築年数
- 20年
- 所在地
- 東京都大田区
- 費用
- 500万円(税込)
-
2023
ご夫婦の作品を最大限に引き立てるリノベーション
- 物件種別
- 戸建
- 築年数
- 30年
- 所在地
- 東京都大田区
- 費用
- 1160万円(税込)
-
2023
お孫さんへの愛情あふれる、築27年のマンションリノベ
- 物件種別
- マンション
- 築年数
- 27年
- 所在地
- 東京都大田区
- 費用
- 1240万円(税込)
-
2023
ライフスタイルに寄り添って、快適・機能的な住まいを実現
- 物件種別
- マンション
- 築年数
- 25年
- 所在地
- 東京都大田区
- 費用
- 1120万円(税込)
-
2022
特別賞
5人家族が、笑顔でのびのびと暮らせる家。
- 物件種別
- マンション
- 築年数
- 34年
- 所在地
- 東京都大田区
- 費用
- 1140万円(税込)
-
2022
理想を形に!世界で1つのオリジナル家具
- 物件種別
- 戸建
- 築年数
- 18年
- 所在地
- 東京都品川区
- 費用
- 150万円(税込)
-
2022
大好きな色に囲まれて、お孫さんと笑顔で過ごせる空間。
- 物件種別
- 戸建
- 築年数
- 39年
- 所在地
- 東京都大田区
- 費用
- 1300万円(税込)
-
2022
リビングでくつろぐような、至福のバスタイムが過ごせます
- 物件種別
- 戸建
- 所在地
- 東京都大田区
- 費用
- 347万円(税込)
-
2022
真っ白な内装と落ち着いたBGMで、トイレが癒しの空間に
- 物件種別
- マンション
- 築年数
- 23年
- 所在地
- 東京都港区
- 費用
- 130万円(税込)
-
2022
20年先も快適で安心!くつろぎ度満点のリノベーション。
- 物件種別
- マンション
- 築年数
- 20年
- 所在地
- 東京都品川区
- 費用
- 1840万円(税込)
-
2022
快適さとカッコ良さを叶えた水まわりのトータルコーディネート
- 物件種別
- マンション
- 築年数
- 28年
- 所在地
- 東京都大田区
- 費用
- 200万円(税込)
-
2022
壁紙のコーディネートで、トイレがくつろぎの空間に生まれ変わりました。
- 物件種別
- マンション
- 築年数
- 20年
- 所在地
- 東京都大田区
- 費用
- 73万円(税込)
-
2022
和室から洋室へ、ライフスタイルに合わせてリノベーション。
- 物件種別
- マンション
- 築年数
- 12年
- 面積
- 39.9m²
- 所在地
- 東京都大田区
- 費用
- 194万円(税込)
-
2022
間取りの工夫と断熱対策で、快適な暮らしを実現。
- 物件種別
- その他
- 築年数
- 42年
- 面積
- 32m²
- 所在地
- 東京都大田区
- 費用
- 830万円(税込)
-
2022
こだわりキッチン空間部門賞
訪れたゲストから歓声があがる、ラグジュアリーなおもてなしキッチン。
- 物件種別
- マンション
- 築年数
- 22年
- 所在地
- 東京都大田区
- 費用
- 977万円(税込)
-
2022
30代ご夫婦が快適に暮らせる、2人らしい住まい。
- 物件種別
- 戸建
- 築年数
- 16年
- 面積
- 約86m²
- 所在地
- 東京都品川区
- 費用
- 1360万円(税込)
-
2022
暮らしの楽しみが広がる、大人のためのホテルライクな空間。
- 物件種別
- 戸建
- 築年数
- 17年
- 面積
- 約48m²
- 所在地
- 東京都大田区
- 費用
- 891万円(税込)
-
2021
こだわりキッチン部門賞
機能性とデザイン性の高いキッチンで楽しむ料理の時間。
- 物件種別
- マンション
- 築年数
- 27年
- 面積
- 30m²
- 所在地
- 東京都大田区
- 費用
- 300万円(税込)
-
2021
時間をかけて選んだキッチンで毎日が快適に。
- 物件種別
- 戸建
- 築年数
- 20年
- 面積
- 20m²
- 所在地
- 東京都大田区
- 費用
- 250万円(税込)
-
2021
間取り変更と収納力アップで、暮らしやすさを大改革。
- 物件種別
- マンション
- 築年数
- 15年
- 所在地
- 東京都大田区
- 費用
- 1500万円(税込)
-
2021
上質感が生み出すアーバンインダストリアルな大人空間。
- 物件種別
- 戸建
- 築年数
- 12年
- 面積
- 70m²
- 所在地
- 東京都大田区
- 費用
- 750万円(税込)
-
2021
インナーテラスからのやさしい光に包まれる暮らし。
- 物件種別
- マンション
- 築年数
- 30年
- 所在地
- 東京都大田区
- 費用
- 1480万円(税込)
-
2021
目指したのは光と風が通り抜ける居心地の良い空間。
- 物件種別
- マンション
- 築年数
- 17年
- 面積
- 68m²
- 所在地
- 東京都品川区
- 費用
- 950万円(税込)
-
2021
長年の悩みを解決!断熱リフォームで快適バスタイム♪
- 物件種別
- 戸建
- 築年数
- 30年
- 面積
- 4m²
- 所在地
- 東京都大田区
- 費用
- 188万円(税込)
-
2021
迫力いっぱいの壁紙でトイレ&洗面室が大変身!
- 物件種別
- 戸建
- 築年数
- 30年
- 面積
- 2.5m²
- 所在地
- 東京都品川区
- 費用
- 100万円(税込)
-
2021
トイレと洗面台を一新!お手入れのしやすさが魅力です。
- 物件種別
- 戸建
- 所在地
- 東京都大田区
- 費用
- 288万円(税込)
-
2021
生活動線を意識した、"家事ラク" で居心地の良い住まい。
- 物件種別
- 戸建
- 築年数
- 40年
- 所在地
- 東京都大田区
- 費用
- 2,000万円(税込)
-
2021
優秀賞
ナチュラルとクールをバランスよく取り入れた上質空間。
- 物件種別
- マンション
- 築年数
- 37年
- 所在地
- 東京都品川区
- 費用
- 1,150万円(税込)
-
2020
北欧の香り漂う、ナチュラルで住み心地のよい 二世帯住宅
- 物件種別
- 戸建
- 築年数
- 32年
- 所在地
- 東京都大田区
- 費用
- 3,000万円(税込)
-
2020
料理研究家が選ぶ 暮らしに馴染むナチュラルなキッチンリフォーム
- 物件種別
- マンション
- 築年数
- 18年
- 所在地
- 東京都世田谷区
- 費用
- 235万円(税込)
-
2020
特別賞
わずか7坪の家~全方位にムダなし!
- 物件種別
- 戸建
- 築年数
- 39年
- 所在地
- 東京都大田区
- 費用
- 1,450万円(税込)
-
2020
光冷暖で体にいいリフォームが実現。2人の時間も、自分の時間も楽しめる家
- 物件種別
- マンション
- 築年数
- 20年
- 所在地
- 東京都大田区
- 費用
- 1,300万円(税込)
-
2020
憧れの海外風インテリアを纏って生まれ変わった住まい
- 物件種別
- マンション
- 築年数
- 50年
- 所在地
- 東京都品川区
- 費用
- 1,500万円(税込)
-
2020
古き良きものを受け継ぎ、次世代向けに新しくデザイン
- 物件種別
- 戸建
- 築年数
- 12年
- 所在地
- 東京都大田区
- 費用
- 2,200万円(税込)
-
2020
40年のときを経て、あたたかく快適に生まれ変わった家
- 物件種別
- 戸建
- 築年数
- 40年
- 所在地
- 東京都大田区
- 費用
- 2,000万円(税込)
-
2020
機能性とデザイン性の融合で生まれ変わった、家族の理想の空間
- 物件種別
- 戸建
- 築年数
- 31年
- 所在地
- 東京都大田区
- 費用
- 1,580万円(税込)
-
2020
心躍る 大人の贅沢空間。"好き" を楽しめる趣味部屋のある家
- 物件種別
- 戸建
- 築年数
- 31年
- 所在地
- 東京都大田区
- 費用
- 736万円(税込)
-
2020
一番近い楽園~日常にあるヴィラリゾート
- 物件種別
- マンション
- 築年数
- 31年
- 所在地
- 東京都大田区
- 費用
- 990万円(税込)
-
2020
築40年をリミックス~「これまで」と「これから」が交差する家
- 物件種別
- マンション
- 築年数
- 40年
- 所在地
- 東京都大田区
- 費用
- 1,270万円(税込)