中古戸建てを自分らしく!シンプル&モダンにまとめたリノベーション。
品川区の中古戸建てを購入されたO様ご夫婦。
間取りは変えず、構造を活かしながら“自分たちらしい住まい”を実現しました。
タイル調フローリングとモノトーンでホテルライクな空間に仕上げ、
照明の演出で昼と夜それぞれの表情を楽しめる住まいになりました。
- こだわりポイント
- BeforeもしくはAfter図面あり / こだわりキッチン / こだわりトイレ / こだわりバス空間(洗面含む)
- リフォーム部分
- リビングダイニング / 寝室・個室 / キッチン / バス / 洗面室 / トイレ
リビング
リビングには、明るいセラミック調のフローリングを施工。ダイニングキッチンはシックな色合いでまとめました。間接照明や照明器具の使い方に工夫し、コストを抑えながらも空間に変化と奥行きを持たせることを意識しました。
キッチン
キッチンはLIXIL「シエラS」。片付けやお手入れのしやすさが魅力です。
階段
階段に沿った格子窓をアクリル板に変更したことで空間全体がより開放的で洗練された印象になりました。遮るものが減り、照明の光が階段や廊下にも広がり、明るさと抜け感が増して理想のホテルライクな空間が叶いました。
寝室
寝室。アクセントクロスに、濃淡のある柔らかなグレーを採用。
洗面台
リフォーム前は洗面台と洗濯機が並んでいましたが、洗濯機を移設し洗面台のスペースを広げました。
トイレ
丸みのある柔らかいフォルムが特長的なTOTO「ネオレスト」。
浴室
浴室も落ち着いた色調でまとめました。
玄関
玄関は、使い勝手と、来客を迎える際の第一印象の良さ、限られたスペースをどれだけ有効活用できるかにもこだわりました。収納棚も使いやすい位置に移動でき、特にベビーカーをスムーズに出し入れできるようになりました。
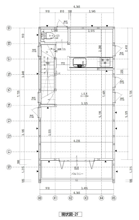
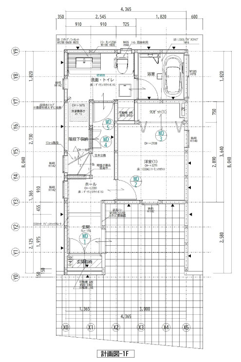
1階図面
1階の図面です。洗面空間を広く使えるようになりました。
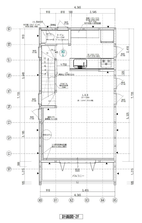
2F図面
2階の図面です。間取りの変更はありませんが、印象がガラリと変わりました。
お客様のニーズ(リフォームへの要望)
・間取りは変えず、既存の構造を活かしながら「自分達らしい住まい」をつくりたい。
・インテリアについては、「ホテルライクな空間」という明確なイメージあり。
・コストを抑えながらも空間に変化と奥行きを持たせることを意識
・玄関は、使い勝手と、来客を迎える際の第一印象の良さ、限られたスペースをどれだけ有効活用できるか
・限られた予算内で、自分達らしい空間を実現したいと考え、業者選びも重視。
お客様ニーズへの自社の対応
・全室にタイル調のフローリングを採用し、モノトーンの配分を意識したホテルライクな空間に。
・2Fは間取りそのままだが、階段もホワイトに統一したことでリビングからの繋がりを感じさせ雰囲気を一新。
・お客様をお迎えする玄関まわりや洗面・トイレ空間には、鏡面仕上げの光沢あるフローリングを採用し高級感を演出。
・今回のリフォームで最も難しかったのは工期の調整で、当初のご希望は、ご相談から約2カ月での完工と非常にタイトなスケジュールだった。建物の構造やご希望の内容をふまえると、工程を省略してまで工期を優先するのは適切ではないため、丁寧に説明を重ねご納得いただいたうえで、可能な限り短期間で完了できるスケジュールを組み立てた。
リフォーム工事後のお客様の評価
希望がきちんと伝わるか不安がありましたが、丁寧な連絡・確認で安心できました。床材にはこだわりがなかったが、提案されたものが想像以上に良く満足しています。昼は明るい照明で子どもと遊び、夜は間接照明でくつろげて快適です。空間の表情や奥行きが生まれ理想通りの仕上がりになりました。
納期やスケジュールをしっかり守り、豊富な経験に基づいた的確なご提案をいただけたことで、安心して工事をお任せできました。
- 所在地
- 東京都大田区
- 施工日数
- 4ヶ月
- 施工完了
- 2025年03月
- 物件種別
- 戸建
- 築年数
- 18年
- 面積
- 86.7m²
- 費用
- 990万円(税込)(補助金等の制度活用:無)
- 居住者構成
-
この作品の事業者については、下記の事業者情報をご参照ください。(赤字のホームページURLをクリックすると、さらに詳しく確認いただけます!)
事業所情報
リフォームは新築とは違い「お客さまの困った」を解消することのできる仕事です。また、お客様の「ああしたい、こうしたい」を形にして、喜んでいただける仕事です。 私達にとって、お客様とのつながりは、リフォーム工事が終わっても終わることはありません。むしろ、そこからが本当のお付き合いの始まりだと思っています。 だからこそ、これからも地域の人たちのつながりを大切にして「ありがとう」と言われる仕事をしていきます。
- 定休日
- 日曜・月曜・祝日/年末年始・夏季休暇
- 電話番号 / FAX
- 03-3774-4415 / 03-3774-9577
- 対応物件
- 戸建,マンション
- ホームページ
- http://www.kitasetsu.co.jp
この事業所の他の施工事例
-
2025
断熱・段差解消で10年先も暮らしやすく。築40年マンションを快適リノベーション
- 物件種別
- マンション
- 築年数
- 40年
- 面積
- 57.42m²
- 所在地
- 東京都大田区
- 費用
- 1,340万円(税込)
-
2025
築35年の賃貸物件を再生。ナチュラルモダンで住み心地の良い空間へ
- 物件種別
- その他
- 築年数
- 35年
- 面積
- 27.83m²
- 所在地
- 東京都大田区
- 費用
- 600万円(税込)
-
2025
カフェのようにくつろげる上質な空間。
- 物件種別
- その他
- 築年数
- 30年
- 面積
- 96.91m²
- 所在地
- 東京都大田区
- 費用
- 1580万円(税込)
-
2025
20年先まで安心して暮らせるお家
- 物件種別
- 戸建
- 築年数
- 25年
- 所在地
- 東京都大田区
- 費用
- 600万円(税込)
-
2025
帰るのが嬉しくなるお家
- 物件種別
- 戸建
- 築年数
- 20年
- 所在地
- 東京都大田区
- 費用
- 275万円(税込)
-
2025
青空に映えるアイボリーのお家
- 物件種別
- 戸建
- 築年数
- 20年
- 所在地
- 東京都大田区
- 費用
- 350万円(税込)
-
2025
和室から洋室へ!塗り壁塗材『キララ』で空気がキレイに!
- 物件種別
- 戸建
- 築年数
- 25年
- 所在地
- 東京都大田区
- 費用
- 550万円(税込)
-
2025
構造補強&水まわり一新で、安心して長く住めるお住まいが完成。
- 物件種別
- 戸建
- 築年数
- 30年
- 面積
- 99.27m²
- 所在地
- 東京都大田区
- 費用
- 2,600万円(税込)
-
2025
家族の笑顔と穏やかな時間が生まれる、築30年のマンションリノベ。
- 物件種別
- マンション
- 築年数
- 30年
- 面積
- 57.68m²
- 所在地
- 東京都大田区
- 費用
- 950万円(税込)
-
2024
プレイルームに、楽しいスキップフロアをつくりました♪
- 物件種別
- 戸建
- 所在地
- 東京都大田区
- 費用
- 170万円(税込)
-
2024
居心地抜群!生まれ変わった浴室&洗面空間
- 物件種別
- 戸建
- 築年数
- 12年
- 所在地
- 東京都大田区
- 費用
- 330万円(税込)
-
2024
機能性と居心地の良さを高めた、ホテルライクな空間。
- 物件種別
- その他
- 所在地
- 東京都大田区
- 費用
- 1260万円(税込)
-
2024
親子で使える"一生もの"のデスク。
- 物件種別
- 戸建
- 所在地
- 東京都品川区
- 費用
- 170万円(税込)
-
2024
家族を育ててくれた家から、家族が帰ってこられるオーシャンリゾートへ。
- 物件種別
- マンション
- 築年数
- 53年
- 所在地
- 東京都品川区
- 費用
- 1220万円(税込)
-
2024
懐かしさと新しさが同居する、母と娘のマンションリノベーション
- 物件種別
- マンション
- 築年数
- 50年
- 所在地
- 東京都大田区
- 費用
- 1140万円(税込)
-
2024
五つ星ホテルより家が好き!大満足の戸建てリノベ
- 物件種別
- 戸建
- 築年数
- 29年
- 所在地
- 東京都大田区
- 費用
- 1130万円(税込)
-
2024
使いやすく居心地抜群の洗面空間
- 物件種別
- 戸建
- 築年数
- 17年
- 所在地
- 東京都大田区
- 費用
- 80万円(税込)
-
2024
仲良し家族の絆が深まるリノベーション。
- 物件種別
- マンション
- 築年数
- 16年
- 所在地
- 東京都大田区
- 費用
- 800万円(税込)
-
2023
これで安心・安全!万年塀を撤去しフェンスを設置
- 物件種別
- 戸建
- 築年数
- 32年
- 所在地
- 東京都品川区
- 費用
- 290万円(税込)
-
2023
築35年の屋根外壁リフォーム!安心して暮らせるお家になりました
- 物件種別
- 戸建
- 築年数
- 35年
- 所在地
- 東京都大田区
- 費用
- 1,170万円(税込)
-
2023
既存の間取りを活かした、ご夫婦のためのくつろぎ空間。
- 物件種別
- マンション
- 築年数
- 32年
- 所在地
- 東京都大田区
- 費用
- 1160万円(税込)
-
2023
白アリ対策→玄関ドアのリフォームで快適なエントランスに!
- 物件種別
- 戸建
- 築年数
- 54年
- 所在地
- 東京都大田区
- 費用
- 100万円(税込)
-
2023
アンティークなデザインが魅力的!玄関リフォームで気分一新
- 物件種別
- 戸建
- 築年数
- 100年以上
- 所在地
- 東京都大田区
- 費用
- 57万円(税込)
-
2023
水まわりを一新し、快適でくつろぎ感のある多目的スペースが完成
- 物件種別
- マンション
- 築年数
- 28年
- 所在地
- 東京都大田区
- 費用
- 1400万円(税込)
-
2023
水まわりを一新!ご夫婦の会話も弾むオープンキッチン
- 物件種別
- 戸建
- 築年数
- 22年
- 所在地
- 東京都大田区
- 費用
- 460万円(税込)
-
2023
特別賞
収納と動線のお悩みを解決し、家族の団らんとプライベート空間を両立。
- 物件種別
- マンション
- 築年数
- 22年
- 所在地
- 東京都大田区
- 費用
- 1750万円(税込)
-
2023
進化したキッチンとお風呂で、毎日をエンジョイ&リフレッシュ!
- 物件種別
- マンション
- 築年数
- 20年
- 所在地
- 東京都大田区
- 費用
- 500万円(税込)
-
2023
ご夫婦の作品を最大限に引き立てるリノベーション
- 物件種別
- 戸建
- 築年数
- 30年
- 所在地
- 東京都大田区
- 費用
- 1160万円(税込)
-
2023
お孫さんへの愛情あふれる、築27年のマンションリノベ
- 物件種別
- マンション
- 築年数
- 27年
- 所在地
- 東京都大田区
- 費用
- 1240万円(税込)
-
2023
ライフスタイルに寄り添って、快適・機能的な住まいを実現
- 物件種別
- マンション
- 築年数
- 25年
- 所在地
- 東京都大田区
- 費用
- 1120万円(税込)
-
2022
特別賞
5人家族が、笑顔でのびのびと暮らせる家。
- 物件種別
- マンション
- 築年数
- 34年
- 所在地
- 東京都大田区
- 費用
- 1140万円(税込)
-
2022
理想を形に!世界で1つのオリジナル家具
- 物件種別
- 戸建
- 築年数
- 18年
- 所在地
- 東京都品川区
- 費用
- 150万円(税込)
-
2022
大好きな色に囲まれて、お孫さんと笑顔で過ごせる空間。
- 物件種別
- 戸建
- 築年数
- 39年
- 所在地
- 東京都大田区
- 費用
- 1300万円(税込)
-
2022
リビングでくつろぐような、至福のバスタイムが過ごせます
- 物件種別
- 戸建
- 所在地
- 東京都大田区
- 費用
- 347万円(税込)
-
2022
真っ白な内装と落ち着いたBGMで、トイレが癒しの空間に
- 物件種別
- マンション
- 築年数
- 23年
- 所在地
- 東京都港区
- 費用
- 130万円(税込)
-
2022
20年先も快適で安心!くつろぎ度満点のリノベーション。
- 物件種別
- マンション
- 築年数
- 20年
- 所在地
- 東京都品川区
- 費用
- 1840万円(税込)
-
2022
快適さとカッコ良さを叶えた水まわりのトータルコーディネート
- 物件種別
- マンション
- 築年数
- 28年
- 所在地
- 東京都大田区
- 費用
- 200万円(税込)
-
2022
壁紙のコーディネートで、トイレがくつろぎの空間に生まれ変わりました。
- 物件種別
- マンション
- 築年数
- 20年
- 所在地
- 東京都大田区
- 費用
- 73万円(税込)
-
2022
和室から洋室へ、ライフスタイルに合わせてリノベーション。
- 物件種別
- マンション
- 築年数
- 12年
- 面積
- 39.9m²
- 所在地
- 東京都大田区
- 費用
- 194万円(税込)
-
2022
間取りの工夫と断熱対策で、快適な暮らしを実現。
- 物件種別
- その他
- 築年数
- 42年
- 面積
- 32m²
- 所在地
- 東京都大田区
- 費用
- 830万円(税込)
-
2022
こだわりキッチン空間部門賞
訪れたゲストから歓声があがる、ラグジュアリーなおもてなしキッチン。
- 物件種別
- マンション
- 築年数
- 22年
- 所在地
- 東京都大田区
- 費用
- 977万円(税込)
-
2022
30代ご夫婦が快適に暮らせる、2人らしい住まい。
- 物件種別
- 戸建
- 築年数
- 16年
- 面積
- 約86m²
- 所在地
- 東京都品川区
- 費用
- 1360万円(税込)
-
2022
暮らしの楽しみが広がる、大人のためのホテルライクな空間。
- 物件種別
- 戸建
- 築年数
- 17年
- 面積
- 約48m²
- 所在地
- 東京都大田区
- 費用
- 891万円(税込)
-
2021
こだわりキッチン部門賞
機能性とデザイン性の高いキッチンで楽しむ料理の時間。
- 物件種別
- マンション
- 築年数
- 27年
- 面積
- 30m²
- 所在地
- 東京都大田区
- 費用
- 300万円(税込)
-
2021
時間をかけて選んだキッチンで毎日が快適に。
- 物件種別
- 戸建
- 築年数
- 20年
- 面積
- 20m²
- 所在地
- 東京都大田区
- 費用
- 250万円(税込)
-
2021
間取り変更と収納力アップで、暮らしやすさを大改革。
- 物件種別
- マンション
- 築年数
- 15年
- 所在地
- 東京都大田区
- 費用
- 1500万円(税込)
-
2021
上質感が生み出すアーバンインダストリアルな大人空間。
- 物件種別
- 戸建
- 築年数
- 12年
- 面積
- 70m²
- 所在地
- 東京都大田区
- 費用
- 750万円(税込)
-
2021
インナーテラスからのやさしい光に包まれる暮らし。
- 物件種別
- マンション
- 築年数
- 30年
- 所在地
- 東京都大田区
- 費用
- 1480万円(税込)
-
2021
目指したのは光と風が通り抜ける居心地の良い空間。
- 物件種別
- マンション
- 築年数
- 17年
- 面積
- 68m²
- 所在地
- 東京都品川区
- 費用
- 950万円(税込)
-
2021
長年の悩みを解決!断熱リフォームで快適バスタイム♪
- 物件種別
- 戸建
- 築年数
- 30年
- 面積
- 4m²
- 所在地
- 東京都大田区
- 費用
- 188万円(税込)
-
2021
迫力いっぱいの壁紙でトイレ&洗面室が大変身!
- 物件種別
- 戸建
- 築年数
- 30年
- 面積
- 2.5m²
- 所在地
- 東京都品川区
- 費用
- 100万円(税込)
-
2021
トイレと洗面台を一新!お手入れのしやすさが魅力です。
- 物件種別
- 戸建
- 所在地
- 東京都大田区
- 費用
- 288万円(税込)
-
2021
生活動線を意識した、"家事ラク" で居心地の良い住まい。
- 物件種別
- 戸建
- 築年数
- 40年
- 所在地
- 東京都大田区
- 費用
- 2,000万円(税込)
-
2021
優秀賞
ナチュラルとクールをバランスよく取り入れた上質空間。
- 物件種別
- マンション
- 築年数
- 37年
- 所在地
- 東京都品川区
- 費用
- 1,150万円(税込)
-
2020
北欧の香り漂う、ナチュラルで住み心地のよい 二世帯住宅
- 物件種別
- 戸建
- 築年数
- 32年
- 所在地
- 東京都大田区
- 費用
- 3,000万円(税込)
-
2020
料理研究家が選ぶ 暮らしに馴染むナチュラルなキッチンリフォーム
- 物件種別
- マンション
- 築年数
- 18年
- 所在地
- 東京都世田谷区
- 費用
- 235万円(税込)
-
2020
特別賞
わずか7坪の家~全方位にムダなし!
- 物件種別
- 戸建
- 築年数
- 39年
- 所在地
- 東京都大田区
- 費用
- 1,450万円(税込)
-
2020
光冷暖で体にいいリフォームが実現。2人の時間も、自分の時間も楽しめる家
- 物件種別
- マンション
- 築年数
- 20年
- 所在地
- 東京都大田区
- 費用
- 1,300万円(税込)
-
2020
憧れの海外風インテリアを纏って生まれ変わった住まい
- 物件種別
- マンション
- 築年数
- 50年
- 所在地
- 東京都品川区
- 費用
- 1,500万円(税込)
-
2020
古き良きものを受け継ぎ、次世代向けに新しくデザイン
- 物件種別
- 戸建
- 築年数
- 12年
- 所在地
- 東京都大田区
- 費用
- 2,200万円(税込)
-
2020
40年のときを経て、あたたかく快適に生まれ変わった家
- 物件種別
- 戸建
- 築年数
- 40年
- 所在地
- 東京都大田区
- 費用
- 2,000万円(税込)
-
2020
機能性とデザイン性の融合で生まれ変わった、家族の理想の空間
- 物件種別
- 戸建
- 築年数
- 31年
- 所在地
- 東京都大田区
- 費用
- 1,580万円(税込)
-
2020
心躍る 大人の贅沢空間。"好き" を楽しめる趣味部屋のある家
- 物件種別
- 戸建
- 築年数
- 31年
- 所在地
- 東京都大田区
- 費用
- 736万円(税込)
-
2020
一番近い楽園~日常にあるヴィラリゾート
- 物件種別
- マンション
- 築年数
- 31年
- 所在地
- 東京都大田区
- 費用
- 990万円(税込)
-
2020
築40年をリミックス~「これまで」と「これから」が交差する家
- 物件種別
- マンション
- 築年数
- 40年
- 所在地
- 東京都大田区
- 費用
- 1,270万円(税込)